Ngôi nhà kết hợp ở, cho thuê có thiết kế ấn tượng ở Hà Nội

(PLO)- Không chỉ là ngôi nhà dành cho gia đình mà công trình còn có khu căn hộ cho thuê với thiết kế đầy ấn tượng.
Jasmine house có diện tích sàn 700 m² nằm trong một ngõ nhỏ ở quận Ba Đình, TP Hà Nội.

Jasmine house có diện tích sàn 700 m² nằm trong một ngõ nhỏ ở quận Ba Đình, TP Hà Nội.

Nhờ vào vị trí gần trung tâm thành phố và các trụ sở ngoại giao nên rất phù hợp thiết kế nhà ở kết hợp kinh doanh căn hộ.

Nhờ vào vị trí gần trung tâm thành phố và các trụ sở ngoại giao nên rất phù hợp thiết kế nhà ở kết hợp kinh doanh căn hộ.

Nhìn từ bên ngoài, từng căn hộ là khối nhà vuông liên kết lại thành công trình nhà ở kết hợp căn hộ đầy ấn tượng.

Nhìn từ bên ngoài, từng căn hộ là khối nhà vuông liên kết lại thành công trình nhà ở kết hợp căn hộ đầy ấn tượng.

Tầng một và lửng được thiết kế dành cho không gian cộng đồng, mở và liên thông.

Tầng một và lửng được thiết kế dành cho không gian cộng đồng, mở và liên thông.

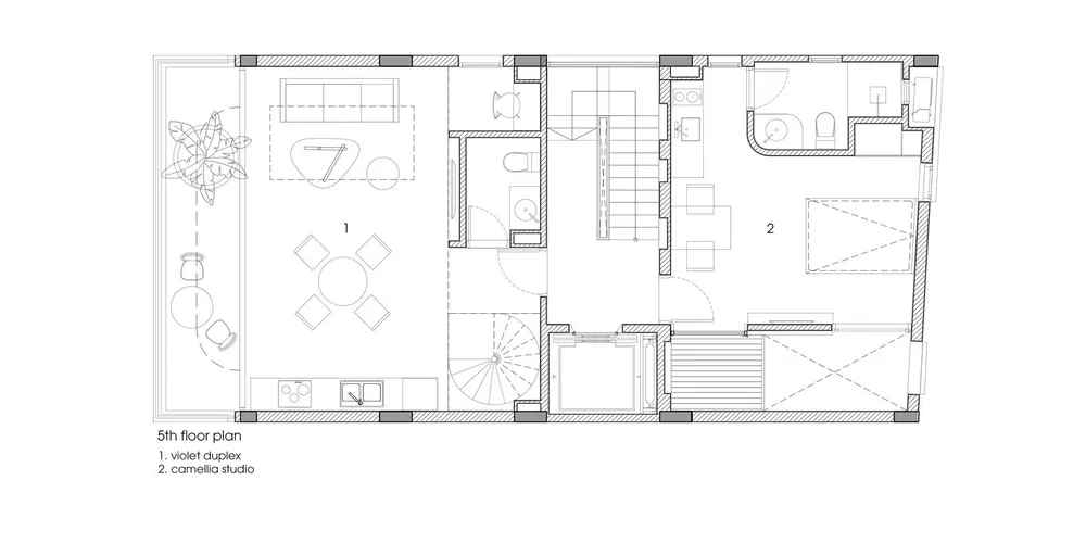
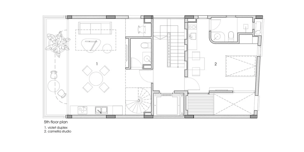
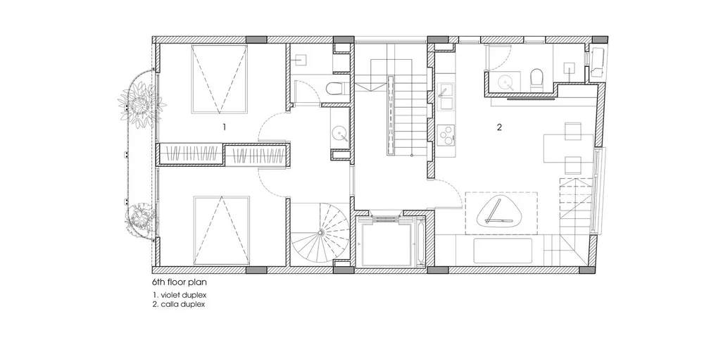
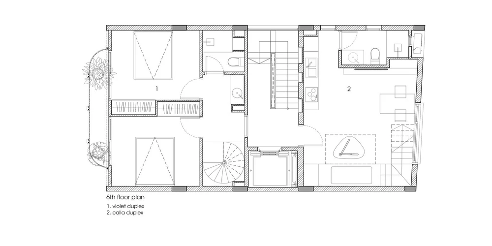
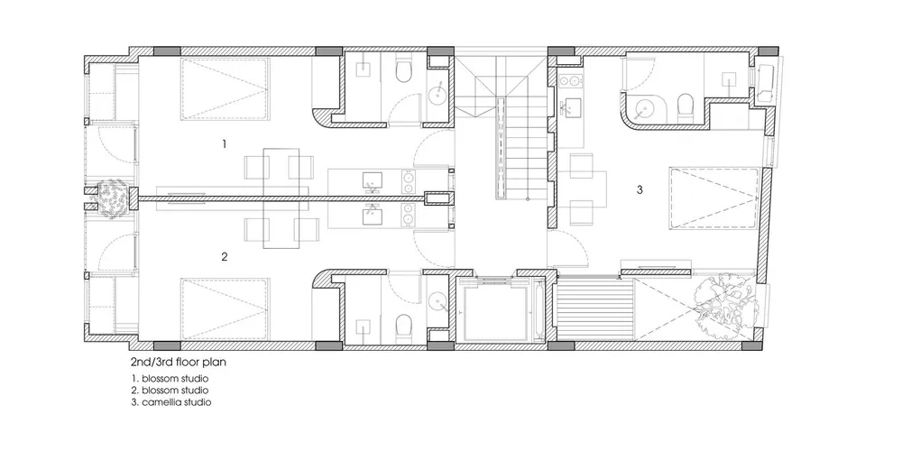
Từ tầng hai đến tầng bảy có nhiều loại hình căn hộ khác nhau. Trên tầng hai và tầng ba có các studio quy mô nhỏ.

Từ tầng hai đến tầng bảy có nhiều loại hình căn hộ khác nhau. Trên tầng hai và tầng ba có các studio quy mô nhỏ.

Kiến trúc sư của VUUV Architecture and Interior Design đã thiết kế ban công như một lớp đệm bảo vệ không gian chính trong căn hộ bởi ánh nắng trực tiếp từ mặt trời hướng tây.

Kiến trúc sư của VUUV Architecture and Interior Design đã thiết kế ban công như một lớp đệm bảo vệ không gian chính trong căn hộ bởi ánh nắng trực tiếp từ mặt trời hướng tây.

Các đường cong được nghiên cứu trong nội thất cũng được thể hiện bên ngoài mặt tiền.

Các đường cong được nghiên cứu trong nội thất cũng được thể hiện bên ngoài mặt tiền.

Ngoài các không gian cơ bản như bếp, ăn, phòng khách, phòng ngủ và phòng vệ sinh, mỗi căn hộ còn được thiết kế ban công.

Ngoài các không gian cơ bản như bếp, ăn, phòng khách, phòng ngủ và phòng vệ sinh, mỗi căn hộ còn được thiết kế ban công.

Ban công là sự kết hợp giữa không gian bên trong và bên ngoài; nó có thể là một không gian thư giãn hoặc không gian đọc sách.

Ban công là sự kết hợp giữa không gian bên trong và bên ngoài; nó có thể là một không gian thư giãn hoặc không gian đọc sách.

Nội thất bên trong nhà được kiến trúc sư khai thác từ sự khéo léo của các thợ thủ công Việt Nam từ các vật liệu cơ bản như đá granit, sắt, gỗ...

Nội thất bên trong nhà được kiến trúc sư khai thác từ sự khéo léo của các thợ thủ công Việt Nam từ các vật liệu cơ bản như đá granit, sắt, gỗ...

Ánh sáng và thiên nhiên trong công trình được kiến trúc sư chú trọng.

Ánh sáng và thiên nhiên trong công trình được kiến trúc sư chú trọng.

Nếu như ban công của các căn hộ ở phía trước nhà được thiết kế là không gian mở rộng thì ban công của căn hộ ở phía sau được thiết kế để lơ lửng trong giếng trời của tòa nhà.

Nếu như ban công của các căn hộ ở phía trước nhà được thiết kế là không gian mở rộng thì ban công của căn hộ ở phía sau được thiết kế để lơ lửng trong giếng trời của tòa nhà.

Không gian bán công cộng được thiết kế riêng cho từng căn hộ nhưng những người sống trong các căn hộ liền kề vẫn có thể tiếp xúc với nhau.

Không gian bán công cộng được thiết kế riêng cho từng căn hộ nhưng những người sống trong các căn hộ liền kề vẫn có thể tiếp xúc với nhau.

Không gian sinh hoạt chung, bố trí bên cạnh giếng trời.

Không gian sinh hoạt chung, bố trí bên cạnh giếng trời.

Đừng bỏ lỡ

Video đang xem nhiều

Đọc thêm