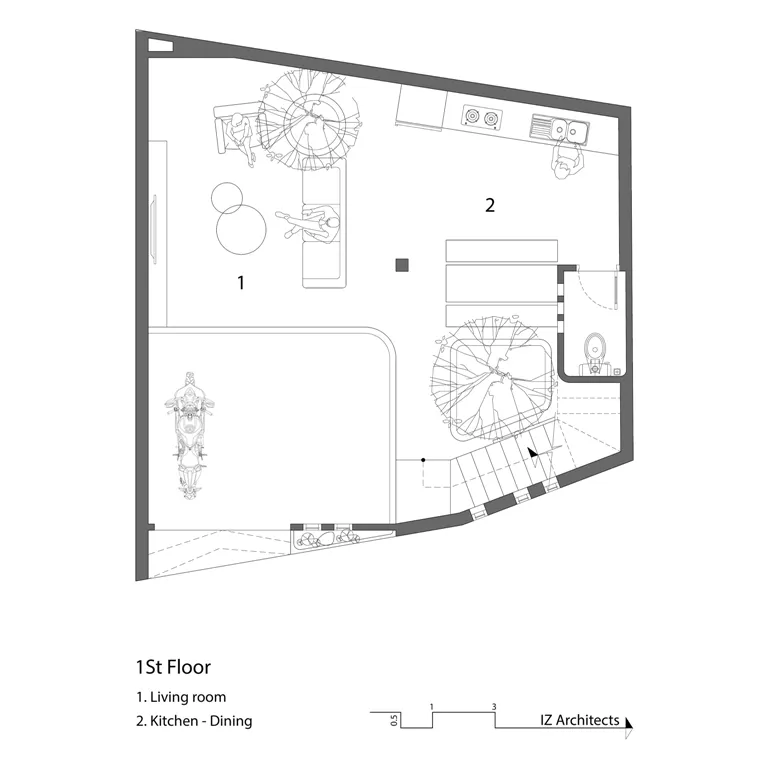
Daisy house được xây dựng trên khu đất có diện tích 60 m2, tọa lạc tại quận Cẩm Lệ, TP Đà Nẵng.
Loài cúc họa mi chỉ với hai màu vàng trắng nhưng mang vẻ tinh khôi đầy mê hoặc. Hình ảnh và màu sắc của loài hoa này được KTS IZ Architects thiết kế một cách ẩn dụ, lồng ghép vào từng chi tiết của ngôi nhà.
Daisy house được xây dựng trên khu đất xéo và nhỏ.
Không gian trong ngôi nhà được sắp xếp khéo léo theo từng khối vuông.
Phòng khách và phòng bếp có sự liên kết chặt chẽ giữa hai không gian mở.
Với một diện tích xéo và nhỏ, KTS IZ Architects triển khai thiết kế cho công trình những khối vuông bên trong và các không gian thông thủy phụ trợ đảm bảo tất cả không gian đều có được nắng và gió tự nhiên.
Mặt tiền và các phần hông ngôi nhà trang trí những cửa sổ nhỏ và mở liên tục khiến cho tổng thể như một cỗ máy điều hòa.
Ngoài ra, KTS còn sử dụng một giải pháp nữa là trồng cây xanh trong nhà tại những khoảng thông tầng.
Hình ảnh cúc họa mi được in trên những khoảng tường.
Mặt khác giúp ngôi nhà có điểm nhấn, thể hiện được ý tưởng và mong muốn của chủ nhà.
Chính các khung cửa hoa cúc giúp lấy tối đa nguồn sáng và gió tự nhiên vào nhà.
Đây là một công trình rất thú vị, nó tiết kiệm năng lượng cực kỳ tốt. Chủ nhà hoàn toàn không phải quan tâm tới quạt hay đèn khi ở đây.
Chủ nhà còn có hẳn không gian thoáng đãng cho sở thích của mình.
Không gia phòng bếp hiện đại.
Tầng một là phòng ngủ và nơi gia chủ thư giãn với các thú vui riêng.
Tầng một.
Tầng hai.