Ngôi nhà như 'đôi cánh thiên thần' giữa Cố đô Huế

(PLO)-  Công trình House P&T được các kiến trúc sư thiết kế có hình dáng như "đôi cánh thiên thần" giữa không trung.
Hình dáng công trình House P&T rất độc, lạ tựa như đôi cánh thiên thần giữa không trung.

Hình dáng công trình House P&T rất độc, lạ tựa như đôi cánh thiên thần giữa không trung.

Ngôi nhà ba tầng là tổ ấm của gia đình có bốn thành viên ở TP Huế.

Ngôi nhà ba tầng là tổ ấm của gia đình có bốn thành viên ở TP Huế.

Chủ nhà muốn sống trong một ngôi nhà giúp tăng cường kết nối gia đình cũng như liên kết với các khu vườn xung quanh.

Chủ nhà muốn sống trong một ngôi nhà giúp tăng cường kết nối gia đình cũng như liên kết với các khu vườn xung quanh.

Cây xanh không thể thiếu trong công trình do kiến trúc sư BHA, SILAA Architects thiết kế.

Cây xanh không thể thiếu trong công trình do kiến trúc sư BHA, SILAA Architects thiết kế.

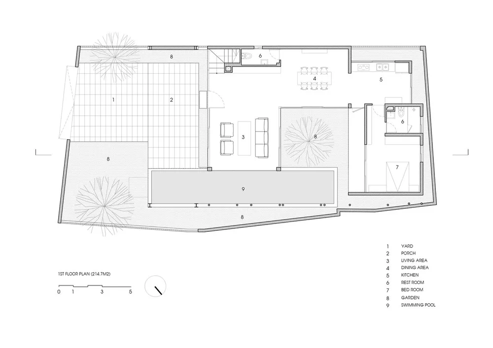
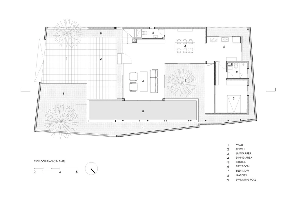
Bể bơi được bố trí bên cạnh khu vườn

Bể bơi được bố trí bên cạnh khu vườn

Kiến trúc sư đã thiết kế ngôi nhà để không gian sống đón được nhiều khí trời nhất có thể mà giảm được độ ẩm của khí hậu xứ Huế vào mùa mưa.

Kiến trúc sư đã thiết kế ngôi nhà để không gian sống đón được nhiều khí trời nhất có thể mà giảm được độ ẩm của khí hậu xứ Huế vào mùa mưa.

Thiết kế của kiến trúc sư giúp không khí tự nhiên có thể đi dọc theo ngôi nhà thông qua các khoảng trống và giúp giảm độ ẩm cao của môi trường nhiệt đới.

Thiết kế của kiến trúc sư giúp không khí tự nhiên có thể đi dọc theo ngôi nhà thông qua các khoảng trống và giúp giảm độ ẩm cao của môi trường nhiệt đới.

Kết nối hai khối nhà là khoảng trống lớn có trồng cây xanh cao.

Kết nối hai khối nhà là khoảng trống lớn có trồng cây xanh cao.

Phòng khách và bếp thiết kế gần nhau, hai không gian này đều hướng ra khoảng cây xanh bên ngoài giúp không gian sống trở nên thú vị hơn.

Phòng khách và bếp thiết kế gần nhau, hai không gian này đều hướng ra khoảng cây xanh bên ngoài giúp không gian sống trở nên thú vị hơn.

Kiến trúc sư sử dụng chất liệu gỗ làm trần nhà khiến công trình trở nên đẹp và gần gũi hơn.

Kiến trúc sư sử dụng chất liệu gỗ làm trần nhà khiến công trình trở nên đẹp và gần gũi hơn.

Dưới cầu thang kiến trúc sư thiết kế một tấm phản gỗ nhỏ.

Dưới cầu thang kiến trúc sư thiết kế một tấm phản gỗ nhỏ.

Các không gian riêng tư cũng được bao phủ bởi một mái nhà lớn nghiêng về phía một khu vườn ở trung tâm của ngôi nhà.

Các không gian riêng tư cũng được bao phủ bởi một mái nhà lớn nghiêng về phía một khu vườn ở trung tâm của ngôi nhà.

Đừng bỏ lỡ

Video đang xem nhiều

Đọc thêm