Ngôi nhà nổi bật với cây xanh phủ kín mặt tiền

(PLO)- Ngôi nhà nhiệt đới ở TP Nha Trang (Khánh Hòa) nổi bật giữa phố bởi cây xanh phủ kín mặt tiền.
ngoi-nha-nhiet-doi-2

Công trình mang tên “Sống bên dòng sông” được xây dựng trên mảnh đất 10 x 15 m ở TP Nha Trang với thiết kế đóng, mở linh hoạt.

ngoi-nha-nhiet-doi-3

Ngôi nhà nằm bên sông bao quanh bởi đồi núi, là tổ ấm của đôi vợ chồng trung niên. 

ngoi-nha-nhiet-doi-4

Với ngôi nhà này, gia chủ có thể mở cửa suốt ngày, tận hưởng gió mát từ bên ngoài thổi vào.

ngoi-nha-nhiet-doi-5

Theo KTS Quảng Chơn (Chơn architecture), ngôi nhà được xây dựng theo phong cách kiến trúc nhiệt đới mộc mạc, gần gũi. Đó là màu xanh của cây cỏ, ánh sáng tự nhiên và gió từ khoảng sân trước và hàng hiên tạo ra. 

ngoi-nha-nhiet-doi-6

KTS thiết kế hồ cá Koi, đây là nơi các thành viên cùng quây quần thư giãn bên nhau.

ngoi-nha-nhiet-doi-7

Tầng một là không gian của khoảng hiên trước, sân trước, hồ cá Koi, phòng khách, bếp...

ngoi-nha-nhiet-doi-8

Khu vực bếp và phòng ăn thiết kế liên thông phòng khách, điều đặc biệt là khu vực bếp như quầy bar trong nhà.

ngoi-nha-nhiet-doi-9

Tại vị trí cầu thang có cây xanh và ánh sáng len lỏi tạo nên hiệu ứng thị giác.

ngoi-nha-nhiet-doi-10

Gỗ và đá là những chất liệu tạo mạch cảm xúc tiếp nối tự nhiên giữa không gian bên trong và bên ngoài.

ngoi-nha-nhiet-doi-12

Giếng trời, thông tầng kết hợp cây leo là giải pháp lấy sáng và gió trong nhà.

ngoi-nha-nhiet-doi-13

Xung quanh nhà trưng bày nhiều xe đạp là niềm đam mê sưu tập xe của gia chủ.

ngoi-nha-nhiet-doi-14

Những tấm kính trong suốt hình vuông cũng là cách lấy sáng cho không gian trống của KTS.

ngoi-nha-nhiet-doi-15

Khoảng sân thượng và hàng hiên với tầm nhìn hướng về một dòng sông đẹp, xa xa là thành phố yên bình.

ngoi-nha-nhiet-doi-16
ngoi-nha-nhiet-doi-17

Tầng trên cùng là khoảng sân thượng, nơi tổ chức những buổi tiệc, nơi thư giãn của các thành viên trong gia đình.

ngoi-nha-nhiet-doi-18

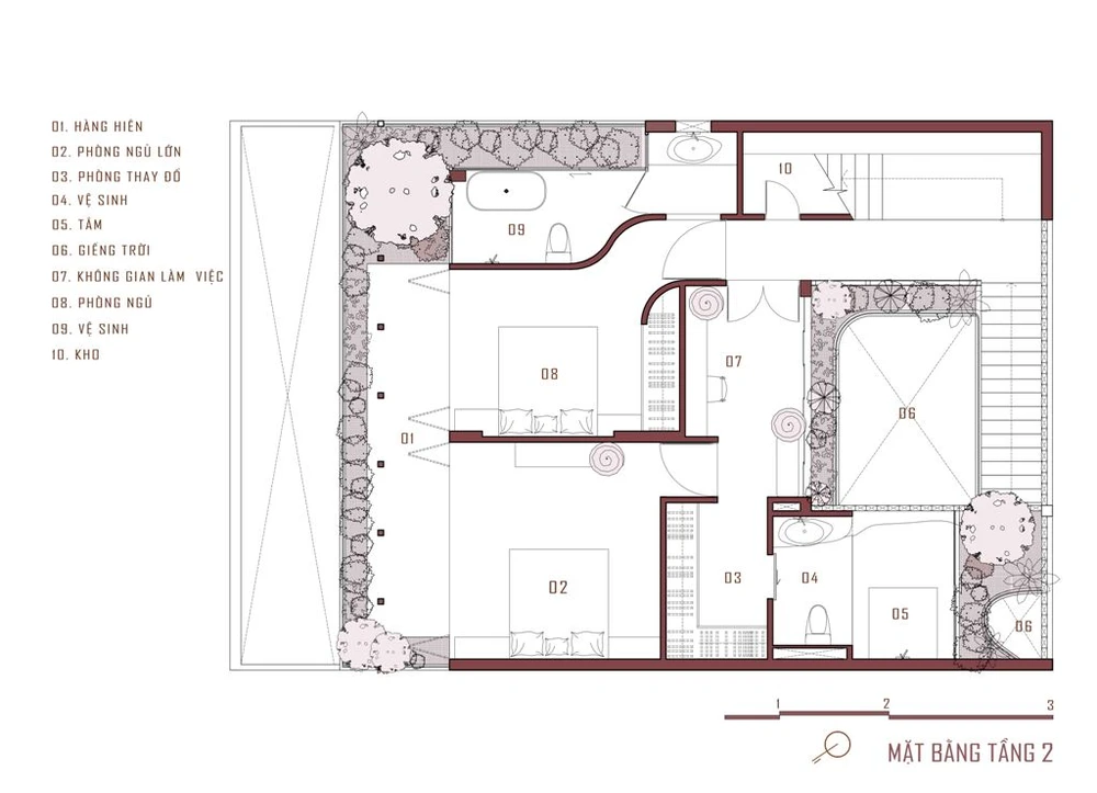
Những căn phòng ngủ sau hàng hiên lam gỗ, riêng tư thông qua qua lớp cửa song lam.

ngoi-nha-nhiet-doi-19

Khu vực tắm cũng gắn kết với thiên nhiên, có cây xanh và sàn bằng đá sỏi.

ngoi-nha-nhiet-doi-20

Khu vực vệ sinh tràn ngập ánh nắng.

ngoi-nha-nhiet-doi-21
ngoi-nha-nhiet-doi-22
ngoi-nha-nhiet-doi-23
ngoi-nha-nhiet-doi-24

Đừng bỏ lỡ

Video đang xem nhiều

Đọc thêm