Ngôi nhà tối giản ở Sài Gòn đón ngập ánh nắng và cây xanh

(PLO)- Chủ nhà muốn xây một "resort" giữa lòng Sài Gòn với không gian tràn ngập ánh nắng và cây xanh.
Mặt tiền của Lam house được bao phủ bởi cây xanh và hòa mình với thiên nhiên.

Mặt tiền của Lam house được bao phủ bởi cây xanh và hòa mình với thiên nhiên.

Kiến trúc sư MM++ architects đã mở rộng không gian và loại bỏ bức tường không cần thiết, thiết kế một không gian mở bên trong nhà.

Kiến trúc sư MM++ architects đã mở rộng không gian và loại bỏ bức tường không cần thiết, thiết kế một không gian mở bên trong nhà.

Không gian bếp mở, khu vườn bên trong có tầm nhìn bao quát ra bầu trời xanh từ tầng thượng bằng kính được đặt dọc theo hành lang.

Không gian bếp mở, khu vườn bên trong có tầm nhìn bao quát ra bầu trời xanh từ tầng thượng bằng kính được đặt dọc theo hành lang.

Khu vực sinh hoạt mở của nó có tầm nhìn toàn cảnh ra khu vườn xanh tươi ở sân trước.

Khu vực sinh hoạt mở của nó có tầm nhìn toàn cảnh ra khu vườn xanh tươi ở sân trước.

Phòng khách trang nhã nhưng có không gian bếp mở.

Phòng khách trang nhã nhưng có không gian bếp mở.

Ở không gian bếp, chủ nhà có thể chuẩn bị món ăn yêu thích và tận hưởng vẻ đẹp của ánh sáng và cây xanh từ bình minh đến hoàng hôn qua cửa kính suốt từ trần đến sàn.

Ở không gian bếp, chủ nhà có thể chuẩn bị món ăn yêu thích và tận hưởng vẻ đẹp của ánh sáng và cây xanh từ bình minh đến hoàng hôn qua cửa kính suốt từ trần đến sàn.

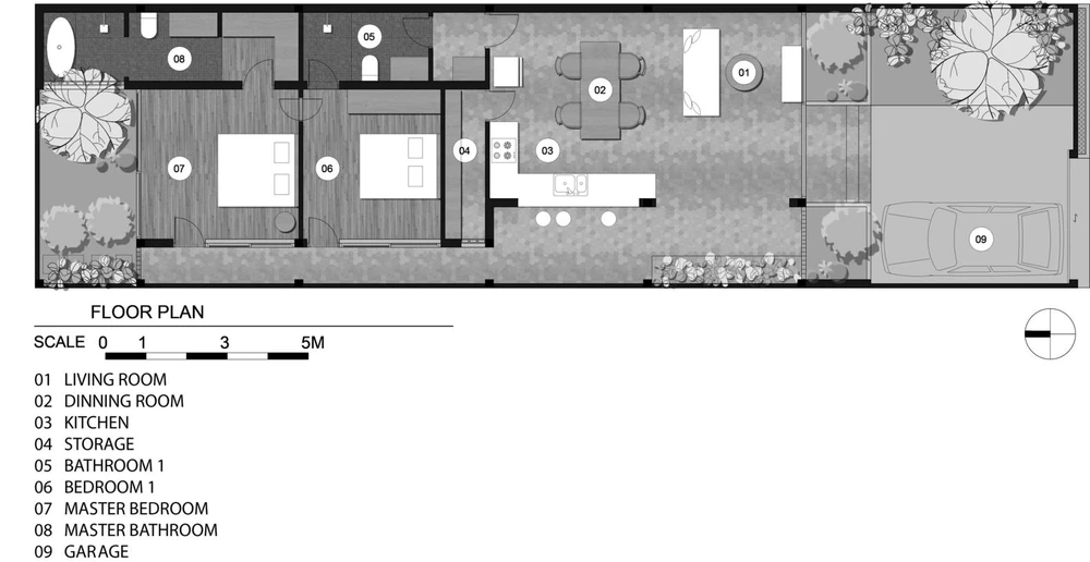
Không gian bếp bố trí theo hình chữ L, phù hợp với mặt bằng của ngôi nhà rộng 181 m².

Không gian bếp bố trí theo hình chữ L, phù hợp với mặt bằng của ngôi nhà rộng 181 m².

Bếp là vị trí đón nắng và gió trực tiếp.

Bếp là vị trí đón nắng và gió trực tiếp.

Không gian này luôn thông thoáng, khi nấu nướng chủ nhà có thể ngước lên bầu trời xanh mát.

Không gian này luôn thông thoáng, khi nấu nướng chủ nhà có thể ngước lên bầu trời xanh mát.

Sân thượng rộng mở dọc theo hành lang đón ánh sáng tự nhiên vào tất cả các khu vực phòng khách, phòng ngủ chính.

Sân thượng rộng mở dọc theo hành lang đón ánh sáng tự nhiên vào tất cả các khu vực phòng khách, phòng ngủ chính.

Kiến trúc sư thiết kế phòng ngủ tối giản, trọng tâm của phòng ngủ chính là vẻ đẹp của thiên nhiên.

Kiến trúc sư thiết kế phòng ngủ tối giản, trọng tâm của phòng ngủ chính là vẻ đẹp của thiên nhiên.

Bên trong phòng vệ sinh được thiết kế một cửa sổ nhỏ từ tầng thượng để lấy ánh sáng tự nhiên, tạo sự thông thoáng bên trong ngôi nhà.

Bên trong phòng vệ sinh được thiết kế một cửa sổ nhỏ từ tầng thượng để lấy ánh sáng tự nhiên, tạo sự thông thoáng bên trong ngôi nhà.

Đừng bỏ lỡ

Video đang xem nhiều

Đọc thêm