Nhà mặt tiền chỉ 3 m nhưng thiết kế tạo cảm giác... siêu rộng

(PLO)- Mặc dù ngôi nhà chỉ có diện tích 54 m² nhưng cách bài trí, thiết kế sáng tạo đã tạo ra một không gian sống thoáng đãng, rộng rãi.

Dự án có diện tích khoảng 54 m², mặt tiền hướng Đông Nam nằm trong khu dân cư đông đúc, xung quanh là những dãy nhà ba, bốn tầng có mật độ dày đặc.

Theo KTS 23o5Studio, cách bố trí không gian nhà dựa trên phân tích cẩn thận các điều kiện vi khí hậu, đảm bảo thông gió và ánh sáng thích hợp cho các hoạt động diễn ra bên trong.

Với chiều rộng mặt tiền chỉ 3 m, mỗi chức năng được bố trí trên một tầng riêng biệt. Nhà bếp và phòng ăn được nâng lên để giúp giải phóng tầng trệt. Phòng ngủ chính được bố trí trong một khối kết nối hai tầng ở phía trước.

nha-ong-mat-tien-hep-2

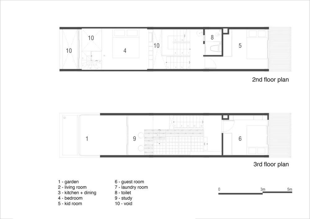
Bản vẽ ngôi nhà

nha-ong-mat-tien-hep-3

Ngôi nhà tọa lạc tại vùng đô thị ở Việt Nam với mật độ nhà cao tầng dày đặc.

nha-ong-mat-tien-hep-4

Dù mặt tiền chỉ có 3m nhưng đầy ấn tượng.

nha-ong-mat-tien-hep-1

Nhìn từ bên ngoài, công trình có nhiều ô cửa kính lớn, lan can được trồng nhiều cây xanh để làm xoa dịu bớt cái nóng của vùng đô thị.

nha-ong-mat-tien-hep-5
nha-ong-mat-tien-hep-6

Bao bọc ngôi nhà là lưới đục lỗ được sử dụng để tạo nên một mặt tiền ánh sáng, vừa làm sáng không gian vừa tạo sự riêng tư vừa đủ.

nha-ong-mat-tien-hep-7

Là gia đình trẻ, chủ nhà không cần sử dụng vật liệu quá đặc biệt. Họ thiên về xu hướng tự nhiên, kết hợp các phương pháp xây dựng mới mẻ cùng màu sắc đa dạng, tạo nên một ngôi nhà thoáng đãng, tươi mới.

nha-ong-mat-tien-hep-8

Nhà bếp và phòng ăn được nâng lên để giúp giải phóng tầng trệt vào một không gian liên tục và không giới hạn.

nha-ong-mat-tien-hep-9

Khu vực sinh hoạt chung cũng rất đơn giản.

nha-ong-mat-tien-hep-10

Lối vào nhà ấn tượng bởi thảm thực vực quanh lối đi. Những mảng bê tông tạo thành phòng khách lạ mắt, bên dưới rải đá dăm. Khi ngồi ở không gian này chủ nhà sẽ cảm nhận như ngôi trên ốc đảo.

nha-ong-mat-tien-hep-11

Lối đi vào không gian sinh hoạt cũng hết sức đặc biệt, mảng tường cong giúp giúp lối đi uyển chuyển hơn.

nha-ong-mat-tien-hep-12

Cầu thang thiết kế cong để tận dụng diện tích mà còn mang lại vẻ đẹp độc đáo cho ngôi nhà.

nha-ong-mat-tien-hep-13

Cầu thang ngắn dẫn lên các tầng. Bên dưới là kệ tủ trưng bày những tấm hình kỉ niệm của gia đình nhỏ.

nha-ong-mat-tien-hep-14
nha-ong-mat-tien-hep-15

Phần mái dốc lên cao tạo khoảng không gian rộng. Ban công rộng rãi, chủ nhà trồng nhiều loại hoa lá

nha-ong-mat-tien-hep-16
nha-ong-mat-tien-hep-17
nha-ong-mat-tien-hep-18

Đừng bỏ lỡ

Video đang xem nhiều

Đọc thêm