Độc đáo nhà Mệ Loan trong con hẻm 1,2 m ở Đà Nẵng

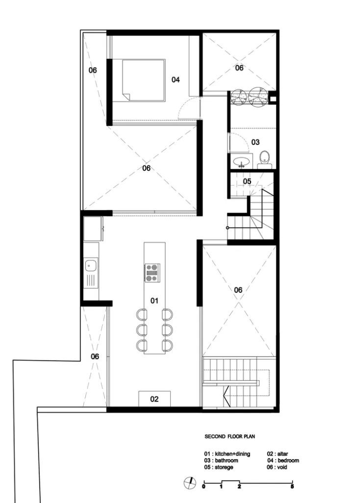
(PLO)- Công năng của ngôi nhà được sắp xếp lại theo chiều đứng và tách rời hoàn toàn thành ba block có kích thước và chức năng khác nhau.

Nhà Mệ Loan nằm trong con hẻm có chiều ngang 1,2 m ở TP Đà Nẵng, xung quanh là các công trình lân cận.

Công trình do KTS H-H Studio thiết kế, lấy cảm hứng từ ngôi nhà sân trong truyền thống.

Trong dự án này, các không gian và thể tích được cấu hình lại để xếp chồng lên nhau theo chiều dọc trong ba khối. Sau đó bù đắp theo chiều ngang để tạo ra các khoảng trống của không gian mở ở giữa các khối không gian kín.

nha-me-loan-19

KTS giải quyết được những thách thức của khu đất có diện tích 7,5 m x 14,3 m, bằng cách có nhiều không gian xanh, thoáng hơn trong khí hậu nóng và thị trấn đông đúc ở Đà Nẵng.

nha-me-loan-2

KTS đã tạo nên năm sân trong có kích thước khác nhau, điều này đã giải quyết các vấn đề đặc trưng của nhà ở nhỏ trong đô thị và khí hậu nhiệt đới.

nha-me-loan-3

Các không gian trồng được phủ bằng đất cho mục đích làm vườn theo mùa.

nha-me-loan-4

Với lựa chọn này KTS tạo ra ba sân trong xoay quanh mỗi block và đảo ngược tính chất của sân trong truyền thống: các không gian xoay quanh sân trong được đổi thành các sân trong xoay quanh không gian.

nha-me-loan-5

Để mang thiên nhiên đến gần hơn với cuộc sống, tầng chính và tầng 2 được kết nối với nhau bằng một cầu thang bên ngoài mở hoàn toàn ra bầu trời phía trên.

nha-me-loan-6
nha-me-loan-7

Không gian mở của tầng chính có thể trở thành mục đích sử dụng thích hợp cho tụ họp gia đình và bạn bè. Có thể ngủ trưa, ăn uống ngoài sân, làm vườn, các hoạt động nhóm hoặc hội họp không thường xuyên.

nha-me-loan-8

KTS không sử dụng phương pháp đánh bóng sàn, sàn bê tông được mài để giữ nguyên một tông màu xám từ bê tông tự nhiên. Các mối nối tường tại các vị trí ẩm ướt được trám trét bằng vữa xi măng

nha-me-loan-9

Để tăng cường tương tác trực tiếp giữa con người với thiên nhiên, các lối đi, cầu thang được đặt hoàn toàn ngoài trời.

nha-me-loan-10

Các block sắp xếp lệch nhau đúng bằng chiều ngang của mỗi block. 

nha-me-loan-11

Việc mở hai block ở tầng một tạo nên không gian sinh hoạt chung đủ lớn và linh hoạt trong việc tiếp nhận thêm các chức năng khác nhau.

nha-me-loan-12

Kết cấu không gian của nhà Mệ Loan đã tạo nên môi trường sống trong lành và tĩnh lặng, tăng cường kết nối giữa con người với con người và con người với thiên nhiên, đồng thời đảm bảo sự riêng tư trong sinh hoạt.

nha-me-loan-13
nha-me-loan-14

Ở trên cao, đường nét đức Phật (BUHHDA) trong tư thế ngồi được khắc vào bức tường trắng cao hai tầng.

nha-me-loan-15

 Bên trên là nguồn sáng tự nhiên trong suốt, tinh khiết được lấy trực tiếp từ mái kính.

nha-me-loan-16

Không gian phòng ngủ hướng ra khoảng thông gió bên ngoài.

nha-me-loan-17

Không gian này tràn ngập ánh sáng do cách bố trí không gian hợp lý của KTS.

nha-me-loan-18
nha-me-loan-20
nha-me-loan-21
nha-me-loan-22
nha-me-loan-23

Đừng bỏ lỡ

Video đang xem nhiều

Đọc thêm