Ngôi nhà ‘xanh’ ở Bắc Ninh của gia chủ yêu thiên nhiên

(PLO)- Để khắc phục nhược điểm của nhà ống, KTS đã thiết kế ngôi nhà hòa mình vào thiên nhiên với rất nhiều cây xanh.

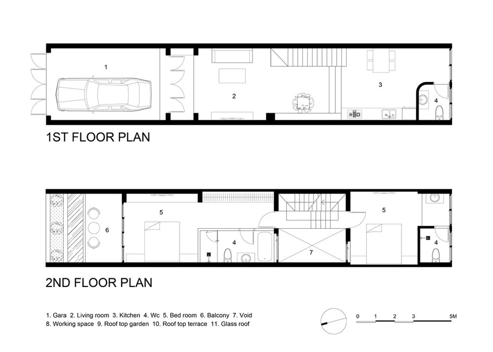
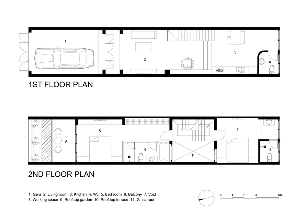
NDT TLC Home nằm trong khu vực đông dân cư tại tỉnh Bắc Ninh. Dự án có diện tích là 80 m² (4m x 20m) và mặt tiền chính hướng Bắc. Đây là mẫu nhà ống điển hình với đặc điểm chung là mặt tiền hẹp và chỉ có một mặt tiếp giáp với thiên nhiên.

KTS Nguyễn Đăng Tưởng (Kiến Trúc NDT) cho biết, ngôi nhà là tổ ấm của đôi vợ chồng trẻ có bốn con nhỏ. Là người yêu thích thiên nhiên nên gia chủ muốn mang thật nhiều cây xanh vào không gian sống, tạo được tối đa các khoảng không gian ngoài trời đan xen vào không gian ở.

Theo đó, mặt tiền của dự án được phát triển giật cấp theo chiều đứng và có xu hướng lùi sâu hơn vào bên trong ở các tầng cao.

Giải pháp này giúp đẩy lùi không gian ở về phía sau tạo ra không gian đệm ngoài trời phía trước. Từ đó, gia chủ có không gian thư giãn, nghỉ ngơi và giúp ngôi nhà trở nên riêng tư, yên tĩnh, tách biệt khỏi ồn ào và khói bụi đô thị.

ngoi-nha-xanh-o-Bac-Ninh-2

KTS phải tìm nhiều phương án khắc phục những hạn chế của ngôi nhà ống

ngoi-nha-xanh-o-Bac-Ninh-3

\TLC Home được sử dụng những giải pháp đơn giản nhưng hiệu quả, giúp mang lại không gian sống tối ưu, tận dụng tối đa năng lượng thiên nhiên

ngoi-nha-xanh-o-Bac-Ninh-4

Phòng khách, phòng bếp và khu vực ăn cũng được bố trí theo chiều đứng của ngôi nhà.

ngoi-nha-xanh-o-Bac-Ninh-5

Các không gian tầng một lấy sáng từ khu vực giếng trời.

ngoi-nha-xanh-o-Bac-Ninh-6

 Nội thất của phòng khách và bếp sử dụng bằng chất liệu gỗ có tông màu tối.

Để tăng tối đa khả năng thông gió, lấy ánh sáng tự nhiên và tăng tính kết nối giữa các tầng, KTS đã bố trí một giếng trời lớn nằm cạnh cầu thang ở giữa nhà.

Theo đó, KTS kết hợp kính lớn trên mái giúp khu vực cầu thang thoáng đãng, rộng rãi, không bức bí như những ngôi nhà phố thông thường. 

ngoi-nha-xanh-o-Bac-Ninh-7

Ngoài ra, giải pháp giật cấp tăng tính kết nối giữa các tầng với trục giao thông bên dưới, các thành viên trong nhà có thể quan sát và giao tiếp với nhau từ bất kỳ vị trí ban công nào bên ngoài mặt tiền.

ngoi-nha-xanh-o-Bac-Ninh-21

Giữa giếng trời, KTS bố trí thêm một cây xanh cao thông giữa các tầng.

ngoi-nha-xanh-o-Bac-Ninh-8

Hai bức tường thẳng đứng chạy suốt chiều sâu của ban công mặt tiền giúp che nắng tốt cho khu vực này

ngoi-nha-xanh-o-Bac-Ninh-9

Để mở rộng không gian, KTS đã chủ động bố trí cầu thang sát tường, sử dụng màu sáng để hòa hợp với tổng thể. Lan can kính trong giải phóng không gian.

ngoi-nha-xanh-o-Bac-Ninh-10

Cầu thang được bố trí ở giữa nhà để tăng tính liên kết giữa hai không gian ở phía trước và sau nhà. 

ngoi-nha-xanh-o-Bac-Ninh-11

Từ trên cao nhìn xuống, công trình được phủ màu xanh của cây lá.

ngoi-nha-xanh-o-Bac-Ninh-12

Một góc thư giãn ở tầng hai, nhìn xuống là góc rộng toàn cây xanh. Qua công trình này, KTS muốn truyền tải thông điệp sống đơn giản, sống xanh và tiết kiệm năng lượng.

ngoi-nha-xanh-o-Bac-Ninh-13

Tiếp giáp với không gian thư giãn là khu vực phòng ngủ.

ngoi-nha-xanh-o-Bac-Ninh-14
ngoi-nha-xanh-o-Bac-Ninh-15

Khu vệ sinh được thiết kế bên trong phòng ngủ, ngăn cách bởi tấm kính trong suốt.

ngoi-nha-xanh-o-Bac-Ninh-16

Phía sau nhà sát với các dự án lân cận, đây là khu vực những không gian phụ như nhà vệ sinh và ô thông tầng.

ngoi-nha-xanh-o-Bac-Ninh-17
ngoi-nha-xanh-o-Bac-Ninh-18
ngoi-nha-xanh-o-Bac-Ninh-19
ngoi-nha-xanh-o-Bac-Ninh-20

Đừng bỏ lỡ

Video đang xem nhiều

Đọc thêm