Nhà phố ở Bắc Ninh gây thương nhớ với mặt tiền lạ mắt

(PLO)- Ngoài gây chú ý bởi bồn hoa ở vị trí mặt tiền, nhóm thiết kế còn giải quyết được vấn đề thông gió, lấy sáng tự nhiên cho công trình nhà phố ở Bắc Ninh.

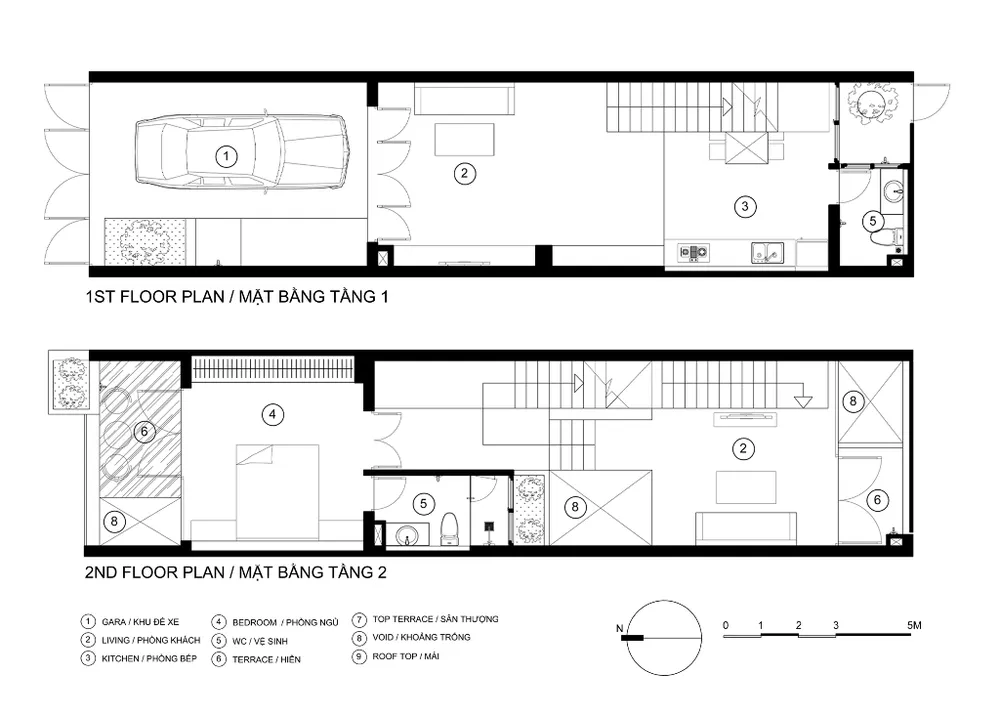
NK Home có diện tích là 81 m² (4,5 m x 18 m) và mặt tiền chính hướng Bắc nằm trong khu vực đông dân cư tại tỉnh Bắc Ninh.

KTS Nguyễn Đăng Tưởng (Kiến Trúc NDT) cho biết, chủ đầu tư là một cặp vợ chồng trẻ rất yêu thích thiên nhiên. Do đó, yêu cầu của chủ đầu tư đặt ra là mang thật nhiều cây xanh vào trong không gian sống và tạo ra được các không gian ở thông thoáng nhưng vẫn đảm bảo riêng tư. 

ngoi--nha-co-bon-hoa-o-mat-tien-2

Ngôi nhà có các công năng chính gồm gara, phòng khách, bếp, ba phòng ngủ, bốn nhà vệ sinh, sân chơi và sân phơi.

ngoi--nha-co-bon-hoa-o-mat-tien-3

KTS cho biết, nhà ống là một dạng nhà phổ biến tại Việt Nam với mặt tiền hẹp và rất sâu do đó có nhiều hạn chế về giao thông, tầm nhìn, thông gió, chiếu sáng và thoát hiểm. 

ngoi--nha-co-bon-hoa-o-mat-tien-4

Mặt tiền ngôi nhà được tạo hình tương phản về màu sắc, hình khối và vật liệu tạo ra điểm nhấn rõ ràng hơn.

ngoi--nha-co-bon-hoa-o-mat-tien-5

Logia ở các tầng nằm cạnh bồn hoa mặt tiền được kết nối với nhau thông qua các khoảng trống tầng phía trước mặt tiền.

Các không gian chức năng chính được được bố trí ở phía trong và được bao bọc bởi các không gian phụ phía trước và sau nhà. Phía trước nhà là khối phòng ngủ chính giúp tận dụng tầm nhìn phía trước nhà, phía sau là khối phòng ngủ phụ và phòng khách.

Hai khối chức năng chính được liên kết trực tiếp với nhau qua cầu thang và giếng trời giữa nhà. Cách bố trí này giúp cân bằng không gian và tạo cảm giác dễ chịu khi di chuyển qua các tầng.

ngoi--nha-co-bon-hoa-o-mat-tien-6

Một khoảng sân nhỏ trước khi vào không gian chính trong nhà.

ngoi--nha-co-bon-hoa-o-mat-tien-7

Khoảng trống ở mặt tiền tạo ra không gian đệm để nghỉ ngơi, làm việc nhưng vẫn đảm bảo được sự riêng tư đồng thời giúp mở rộng tầm nhìn, cải thiện không gian sống và hạn chế tác động của gió vào ngôi nhà.

ngoi--nha-co-bon-hoa-o-mat-tien-9

Với bề rộng chỉ 4,5 m, không gian phòng khách và bếp được bố trí dọc theo ngôi nhà và liên thông với nhau giúp không gian trở nên rộng rãi hơn.

ngoi--nha-co-bon-hoa-o-mat-tien-10
ngoi--nha-co-bon-hoa-o-mat-tien-11

Cầu thang dẫn lên tầng trên của ngôi nhà.

ngoi--nha-co-bon-hoa-o-mat-tien-12

Bồn hoa nằm cạnh wc vừa tạo điểm nhấn, giúp con người quan sát dễ dàng vừa đảm bảo sự riêng tư khi sử dụng ở bên trong. 

ngoi--nha-co-bon-hoa-o-mat-tien-13

Giếng trời ở giữa nhà có xu hướng mở rộng hơn ở các tầng trên giúp kết nối nhiều không gian từ nhà vệ sinh, phòng ngủ, cầu thang và sân phơi tốt hơn.

ngoi--nha-co-bon-hoa-o-mat-tien-14
ngoi--nha-co-bon-hoa-o-mat-tien-15

Con người khi di chuyển trên cầu thang qua các tầng có thể cảm nhận được sự dịch chuyển của cây xanh và có thể quan sát cũng như kết nối dễ dàng với các tầng. 

ngoi--nha-co-bon-hoa-o-mat-tien-16

Thông qua giếng trời tạo cảm giác mở và gần với thiên nhiên hơn ở các tầng trên, giúp lấy sáng tốt hơn cho các bồn hoa phía dưới và đảm bảo sự đối lưu gió cho không gian giữa nhà.

ngoi--nha-co-bon-hoa-o-mat-tien-17

Giếng trời và sân phơi được bố trí trên các tầng để hạn chế sự tác động trực tiếp của nắng đến các không gian ở phía trong tuy nhiên vẫn đảm bảo sự đối lưu gió và duy trì tầm nhìn từ trong ra ngoài. 

ngoi--nha-co-bon-hoa-o-mat-tien-18

Do ảnh hưởng của nắng hướng tây sau nhà và để đảm bảo sự riêng tư với các nhà xung quanh nên toàn bộ không gian phụ được đẩy về phía sau nhà. 

Phòng ngủ phụ được đẩy về phía sau nhà.

ngoi--nha-co-bon-hoa-o-mat-tien-19

Phòng vệ sinh đầy đủ ánh sáng và thông thoáng bởi KTS thiết giếng trời nhỏ phía sau nhà.

ngoi--nha-co-bon-hoa-o-mat-tien-20

Một giếng trời nhỏ được bố trí phía sau nhà giúp đảm bảo sự cân bằng cảnh quan giữa các tầng, giúp tăng giả năng đối lưu gió, làm mát không gian, tăng tính kết nối và giúp thoát hiểm nhanh hơn khi gặp sự cố. 

ngoi--nha-co-bon-hoa-o-mat-tien-21

Thiết kế một giếng trời sau nhà là giải pháp giúp cải thiện cảnh quan, tầm nhìn và không khí trong phòng cho các không gian chính như phòng ngủ và phòng khách phía sau nhà. 

ngoi--nha-co-bon-hoa-o-mat-tien-22

Mặt sau của nhà KTS còn thiết kế lớp gạch bông gió vừa đem lại vẻ đẹp còn đem lại nguồn gió và ánh sáng cho không gian phía sau.

KTS Tưởng chia sẻ: "NK Home là tổ hợp những giải pháp thực tế để khắc phục những hạn chế trong nhà phố. Chúng tôi tập trung vào việc tạo ra nhiều không gian nghỉ ngơi, tăng khả năng thông gió, lấy sáng tự nhiên, cải thiện chất lượng không gian sống trong nhà và truyền cảm hứng sống xanh đến những người trong khu vực."

ngoi--nha-co-bon-hoa-o-mat-tien-23
ngoi--nha-co-bon-hoa-o-mat-tien-24

Đừng bỏ lỡ

Video đang xem nhiều

Đọc thêm