Ngắm ngôi nhà ba tầng xinh xắn cho gia đình nhỏ ở Quy Nhơn

(PLO)- Ngôi nhà ba tầng của gia đình nhỏ gồm năm thành viên tại TP Quy Nhơn đơn giản nhưng rất ấm cúng. 

ngoi-nha-1.jpg
T-House nằm trên mảnh đất 5,5 x 15,9 m ở cuối một con hẻm nhỏ cách trung tâm TP Quy Nhơn không xa.
Ngôi nhà có ba tầng được thiết kế bởi nhóm thiết kế 28’Creative.
Ngôi nhà có ba tầng được thiết kế bởi nhóm thiết kế 28’Creative.
ngoi-nha-15.jpg
Chủ nhà mong muốn tạo nên tổ ấm mới, đầy tiện nghi cho người vợ cùng với ba người con nhỏ.
ngoi-nha-3.jpg
Nhóm thiết kế sắp xếp phòng khách, phòng ăn là những không gian liền mạch giúp tạo ra nhiều khoảng trống để cho các bé có thêm không gian vui chơi.
ngoi-nha-4.jpg
Không gian này đầy đủ công năng để bố mẹ có thể làm việc và tham gia vui chơi cùng các con.
ngoi-nha-5.jpg
Thiết kế không gian mở của khu vực phòng khách, bếp cũng mang lại cảm giác thoải mái, thông thoáng.
ngoi-nha-6.jpg
Đối với nội thất, nhóm thiết kế kết hợp các yếu tố hiện đại và thân thiện.
ngoi-nha-7.jpg
Kiến trúc sư tối ưu hóa diện tích lưu trữ với phương án xây dựng đơn giản, sử dụng các vật liệu phổ biến, tiết kiệm.
ngoi-nha-12.jpg
Hệ cửa trượt mang lại cảm giác riêng tư đồng thời để ánh sáng tự nhiên và gió nhẹ tràn vào không gian khi cần thiết.
ngoi-nha-13.jpg
ngoi-nha-14.jpg
Mỗi tầng đều có cây xanh. Sân thượng của ngôi nhà giống như một khu vườn nhỏ tăng sự thân thiện với những bữa tiệc ngoài trời.
ngoi-nha-1.jpg
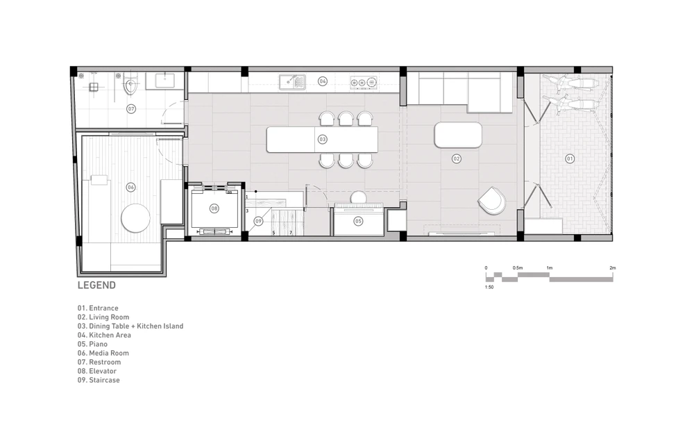
Mặt bằng tầng một.
ngoi-nha-2.jpg
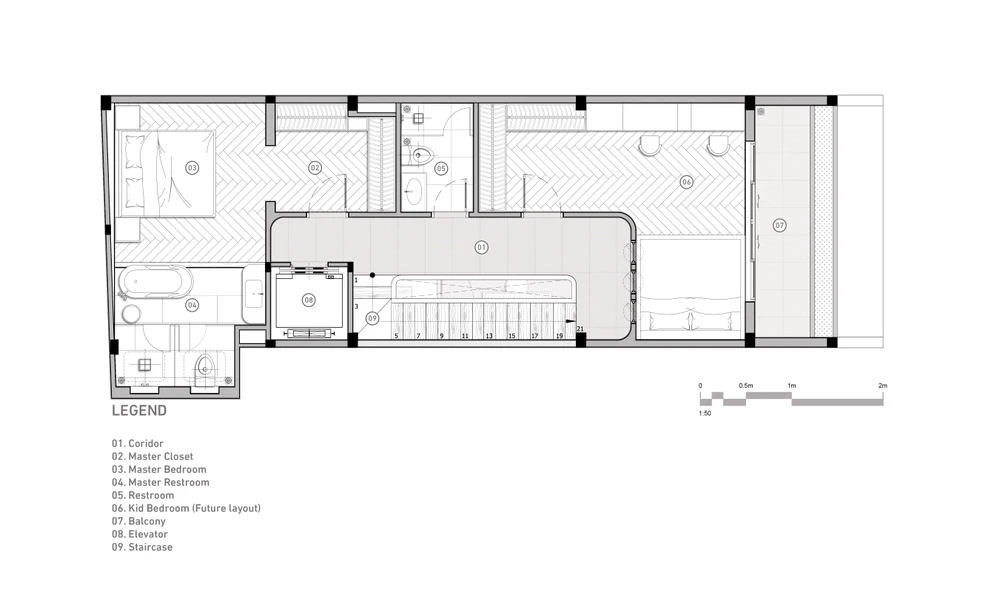
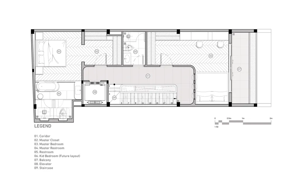
Mặt bằng tầng hai.
ngoi-nha-3.jpg
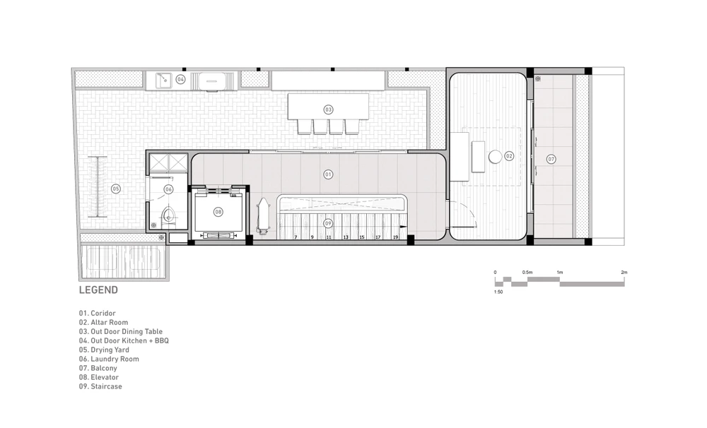
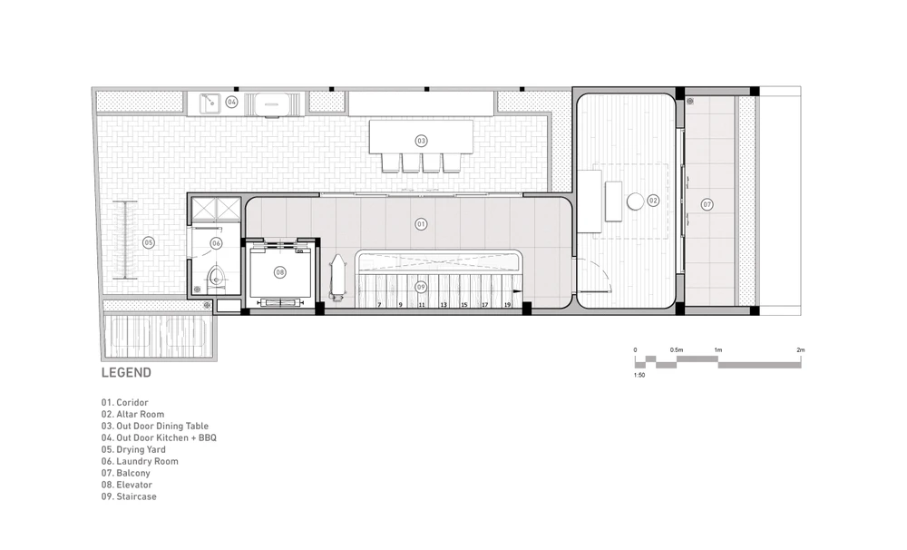
Mặt bằng tầng ba.

Đừng bỏ lỡ

Video đang xem nhiều

Đọc thêm