Ngôi nhà tự 'thở' và 'mở' ở Đà Nẵng

(PLO)- Ngôi nhà nằm trong khu đô thị mới có công trình san sát nhau đưa ra một đề bài khó cho việc thiết kế công trình hoàn toàn ”mở” và “thở”.

ngoi-nha-1.jpg
AD House có diện tích 100 m2, tọa lạc tại quận Ngũ Hành Sơn, TP Đà Nẵng.
Khu đất xây dựng của AD House cũng nằm trong bối cảnh các ngôi nhà nằm san sát nhau trong khu đô thị mới phát triển.
Khu đất xây dựng ngôi nhà cũng nằm trong bối cảnh các công trình nằm san sát nhau trong khu đô thị mới phát triển.
ngoi-nha-3.jpg
Ở bên ngoài, hệ vỏ bọc bao che được đóng kín hai lớp có những ô trống và lớp đệm thiên nhiên.
ngoi-nha-4.jpg
Kiến trúc sư trưởng Trần Trung (Tran Trung Architects) đưa ra đề bài khó cho việc thiết kế một ngôi nhà hoàn toàn "mở” và “thở”.
ngoi-nha-5.jpg
Ngôi nhà ở Đà Nẵng nàykết nối giữa con người với con người, giữa con người với tự nhiên, giữa tự nhiên và tổng thể hài hòa của đô thị theo phương đứng và phương ngang.
ngoi-nha-6.jpg
Kiến trúc sư giải quyết vấn đề từ ngoài vào trong vẫn đảm bảo tính thẩm mỹ cho ngôi nhà.
ngoi-nha-7.jpg
Thiết kế hai lớp giúp ngôi nhà hạn chế tối đa ánh nắng mặt trời chiếu trực tiếp và mưa tạt vào bên trong các phòng. Từ đó, thiên nhiên có thể luồn lách vào tận từng ngóc ngách của không gian sống trong ngôi nhà.
ngoi-nha-8.jpg
Theo đó, ngôi nhà sẽ được bảo vệ tốt nhất đồng thời vẫn nhận đầy đủ lượng ánh sáng cần thiết và lượng gió lưu thông làm sạch bầu không khí ở bên trong.
ngoi-nha-9.jpg
Ở bên trong, với kích thước khu đất hạn chế, thay vì sử dụng hết kiến trúc sư đã chừa khoảng sân ở các vị trí trước, giữa và sau ngôi nhà.
ngoi-nha-10.jpg
Thay vì vẽ nên những căn phòng rộng quá khổ so với nhu cầu sử dụng, kiến trúc sư tạo nên một không gian thông tầng lớn phân chia ngôi nhà.
ngoi-nha-11.jpg
Giải pháp này dành một nửa cho nắng, gió, cây xanh và khoảng trống, nửa còn lại sẽ dành cho sinh hoạt gia đình với các tiện ích vừa đủ ở mức tối thiểu.
ngoi-nha-12.jpg
Qua đó tạo nên sự kết nối giữa con người với con người theo phương đứng và phương ngang thông qua các cửa kính lớn mở hướng vào giữa ngôi nhà.
ngoi-nha-13.jpg
Các khoảng trống đó nay đã trở thành chủ thể chính của ngôi nhà, tại không gian phòng ngủ hay bất kì đâu giữa cha mẹ và con cái có thể giao tiếp với nhau.
ngoi-nha-14.jpg
Thiết kế hệ tủ đồ hiện đại và tiện nghi.
ngoi-nha-15.jpg
Một góc vệ sinh cá nhân đặt bên ngoài, đón nắng và gió tự nhiên vào ngôi nhà.
ngoi-nha-16.jpg
Kiến trúc sư cho biết, công trình kiến trúc giống như một cơ thể sống cũng cần phải “hít thở” dung nạp thật nhiều nguồn năng lượng tích cực thì mới có thể cân bằng và duy trì sự sống ở bên trong.
ngoi-nha-17.jpg
Khu vực thờ cúng bố trí một không gian riêng trang nghiêm.
ngoi-nha-18.jpg
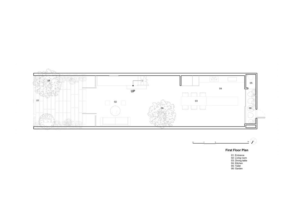
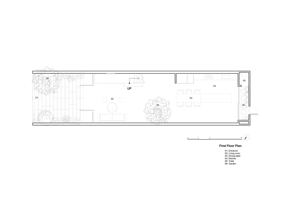
Mặt bằng tầng một.
ngoi-nha-19.jpg
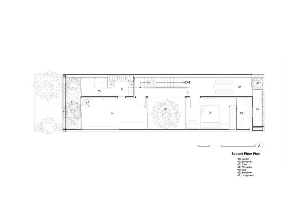
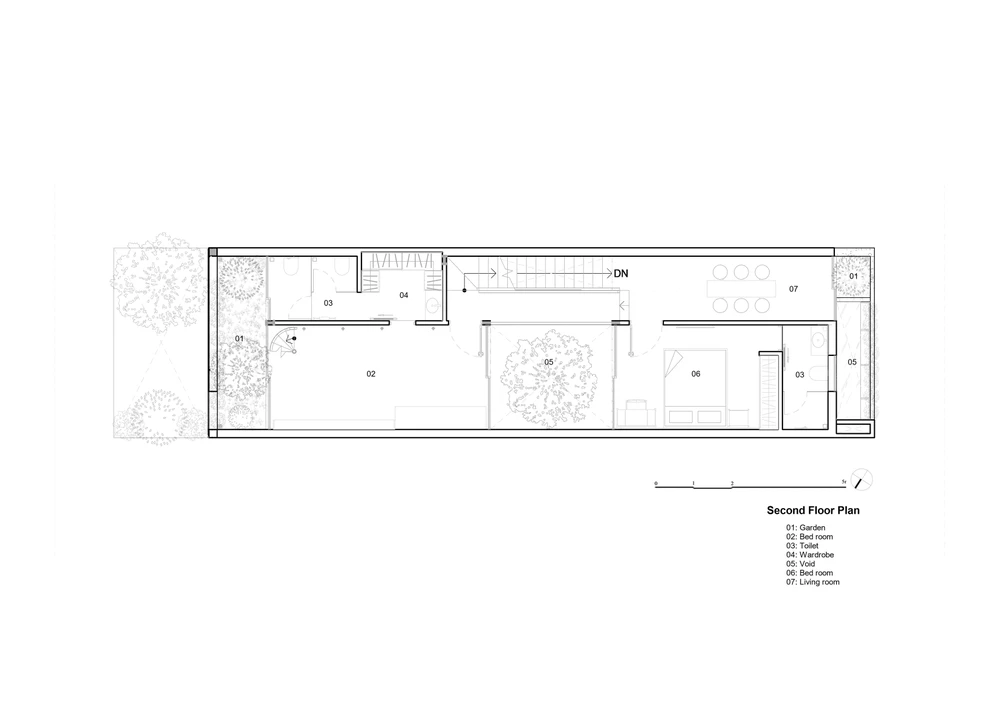
Mặt bằng tầng hai.
ngoi-nha-20.jpg
Mặt bằng tầng ba.
ngoi-nha-21.jpg
Mặt bằng mái.

Đừng bỏ lỡ

Video đang xem nhiều

Đọc thêm