Ngôi nhà xanh mát nhờ thiết kế hệ vỏ nhiệt đới ở Đà Nẵng

(PLO)- Để không gian bên trong mở hoàn toàn, kiến trúc sư đã thiết kế một hệ vỏ nhiệt đới cho mặt trước và mặt sau của ngôi nhà.

ngoi-nha-1.jpg
HY House xây dựng trên khu đất có diện tích khiêm tốn, nằm trong khu đô thị có mật độ xây dựng cao ở Đà Nẵng.
Đề bài đặt ra cho kiến trúc sư trưởng Trần Trung (TRAN TRUNG Architects) là phải tạo ra một cấu trúc mở hoàn toàn bên trong một ngôi nhà chật hẹp bị che kín bởi những bức tường cao lớn.
Đề bài đặt ra cho kiến trúc sư trưởng Trần Trung (TRAN TRUNG Architects) là phải tạo ra một cấu trúc mở hoàn toàn bên trong một ngôi nhà chật hẹp bị che kín bởi những bức tường cao lớn.
ngoi-nha-16.jpg
Ở bên ngoài ngôi nhà, lớp vỏ nhiệt đới được tạo nên từ việc sắp xếp các viên gạch đất nung so le nhau tạo ra những khoảng trống.
ngoi-nha-3.jpg
Các kiến trúc sư đã giải quyết vấn đề bằng việc đưa ra một cấu trúc hoàn toàn thích ứng với khí hậu địa phương, đảm bảo cho việc “mở hoàn toàn” ngôi nhà.
ngoi-nha-4.jpg
Kiến trúc sư xây dựng một hệ vỏ nhiệt đới cho mặt trước và mặt sau, ở giữa là một thảm thực vật và các khoảng thông tầng rộng lớn.
ngoi-nha-5.jpg
Bên trong, mọi căn phòng gần như tối thiểu, các không gian sinh hoạt chung được cởi mở, toàn bộ ngôi nhà là một cấu trúc có độ “xốp” cao.
ngoi-nha-6.jpg
Ranh giới giữa bên trong và bên ngoài được loại bỏ hoàn toàn bằng việc sử dụng những mảng kính lớn để ngăn chia chạy theo chiều dọc ngôi nhà.
ngoi-nha-7.JPG
Khoảng thông tầng trong ngôi nhà.
ngoi-nha-8.jpg
Thiết kế cây xanh cùng với các viên gạch xếp so le nhau là giải pháp khiến làn gió mát mẻ len lỏi khắp mọi ngóc ngách của ngôi nhà.
ngoi-nha-9.jpg
Sự liên tục của thông tầng được duy trì trong toàn bộ ngôi nhà, thiên nhiên có mặt khắp mọi nơi.
ngoi-nha-10.jpg
Từ thông tầng, ánh sáng tự nhiên tràn ngập mọi căn phòng.
ngoi-nha-11.jpg
Trong không gian riêng cũng có bầu không khí mát mẻ, dễ chịu tạo điều kiện thuận lợi để các thành viên trong gia đình kết nối và gần gũi với nhau hơn.
ngoi-nha-12.jpg
ngoi-nha-13.jpg
Kiến trúc sư cho biết, tất cả sự ngột ngạt thường thấy của một ngôi nhà ống chật hẹp được xóa bỏ. Chủ nhà được hưởng thụ sự thư giãn tuyệt đối.
ngoi-nha-14.jpg
ngoi-nha-15.jpg
Các thành viên trong gia đình không cần phụ thuộc quá nhiều vào thiết bị làm mát cơ học và điều hòa không khí.
ngoi-nha-17.jpg
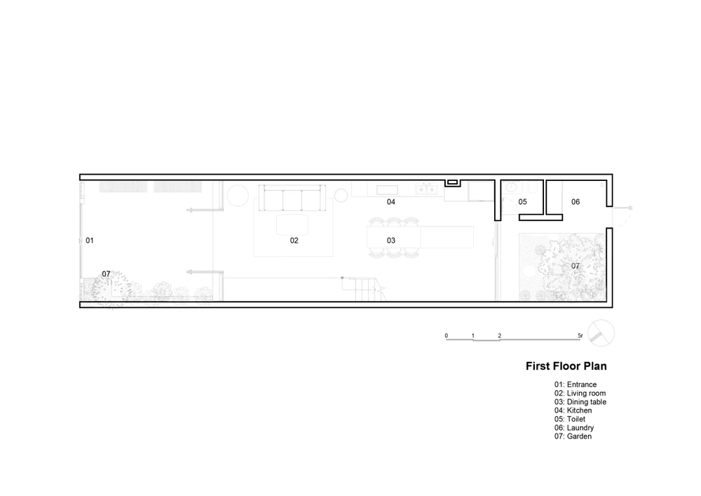
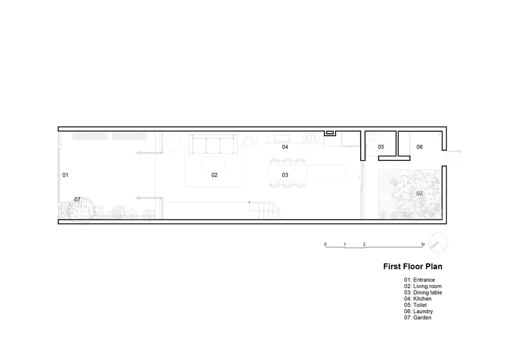
Mặt bằng tầng một.
ngoi-nha-18.jpg
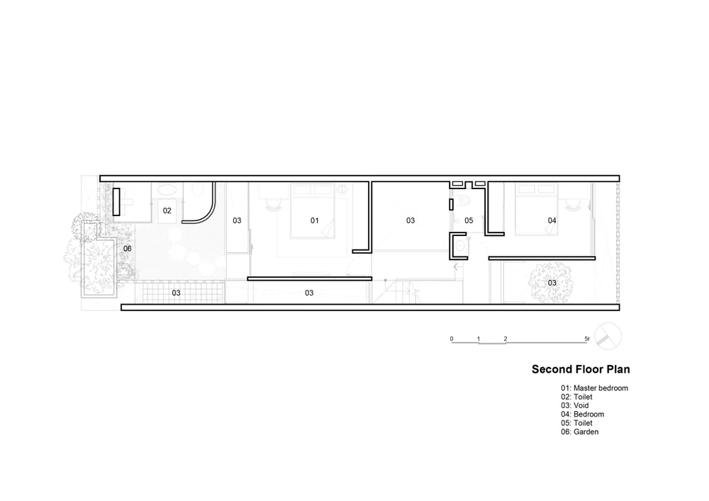
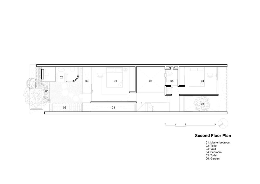
Mặt bằng tầng hai.
ngoi-nha-19.jpg
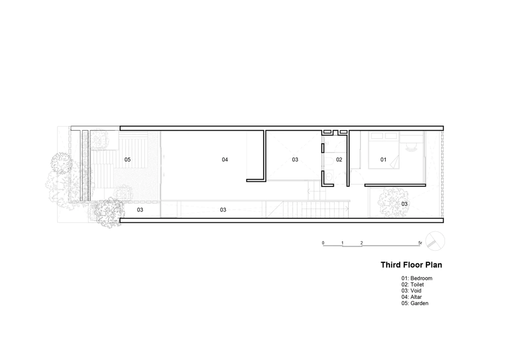
Mặt bằng tầng ba.
ngoi-nha-20.jpg
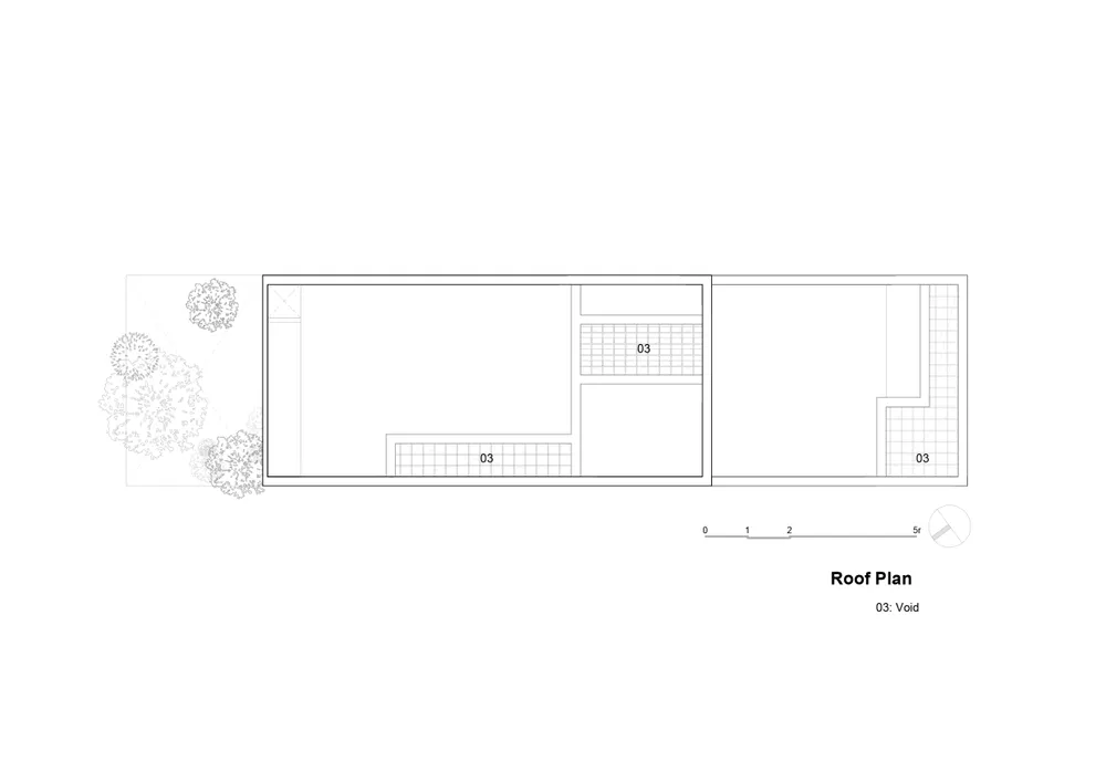
Mặt bằng mái.

Đừng bỏ lỡ

Video đang xem nhiều

Đọc thêm