![]() |
Công trình Shy house tọa lạc tại TP Thủ Đức (quận 2 cũ), TP.HCM. |
![]() |
Mặt tiền là khoảng ban công được trồng cây xanh lồi ra như những khoảng trống để thở của công trình. |
![]() |
Khu đất xây dựng của Sky House nằm giữa các tòa nhà cao tầng san sát nhau. |
![]() |
Cây xanh là yếu tố quyết định đến sự thoáng mát của công trình này. |
![]() |
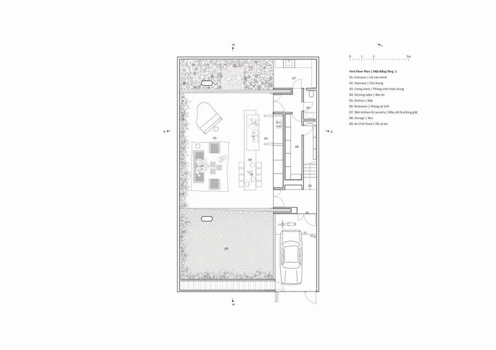
Thay vì thiết kế những căn phòng rộng quá khổ so với nhu cầu sử dụng, kiến trúc sư MIA Design Studio đã “cắt đôi” ngôi nhà để dành một nửa nắng, gió, mặt nước, cây xanh. |
![]() |
Nửa còn lại sẽ dành cho sinh hoạt gia đình với các tiện ích vừa đủ ở mức tối thiểu. |
![]() |
Những khoảng trống lớn thông với nhau, từ đó thiên nhiên có thể luồn lách vào từng ngóc ngách của không gian sống. |
![]() |
Dù ở vị trí nào đi chăng nữa, các thành viên trong gia đình đều có thể tìm thấy nhau. |
![]() |
![]() |
Chiếc ghế sofa đặc biệt của gia đình. |
![]() |
Bể cá bên cạnh phòng khách làm dịu mát không gian sống. |
![]() |
![]() |
Thay vì mở ra bốn phía xung quanh, kiến trúc tạo ra sự kết nối theo chiều dọc giữa ngôi nhà và bầu trời. |
![]() |
![]() |
Giữa các phòng ngủ là khoảng trống của cây xanh, giếng trời và thông tầng. |
![]() |
![]() |
Phòng ngủ thiết kế đơn giản, kết nối với giếng trời. |
![]() |
Không gian kết nối theo chiều dọc giữa ngôi nhà và bầu trời nên các thành viên có thể cảm nhận được thời tiết trong ngày một cách trực tiếp. |
![]() |
Khu phòng vệ sinh tràn ngập ánh sáng. |
![]() |
![]() |
![]() |
![]() |
![]() |























