Ngôi nhà ở Sài Gòn mát lạnh nhờ giếng trời

(PLO)- Dù mặt tiền chưa đến 4 m, ngôi nhà vẫn luôn xanh mát nhờ giếng trời và hệ thống cây xanh bài trí hợp lý.
HL-House xây dựng trên khu đất 4 x 18 m nằm trong con hẻm nhỏ tại quận Bình Thạnh, TP.HCM.

HL-House xây dựng trên khu đất 4 x 18 m nằm trong con hẻm nhỏ tại quận Bình Thạnh, TP.HCM.

Ngôi nhà được thiết kế bởi kiến trúc sư Trương Minh Tùng (Chi.Arch).

Ngôi nhà được thiết kế bởi kiến trúc sư Trương Minh Tùng (Chi.Arch).

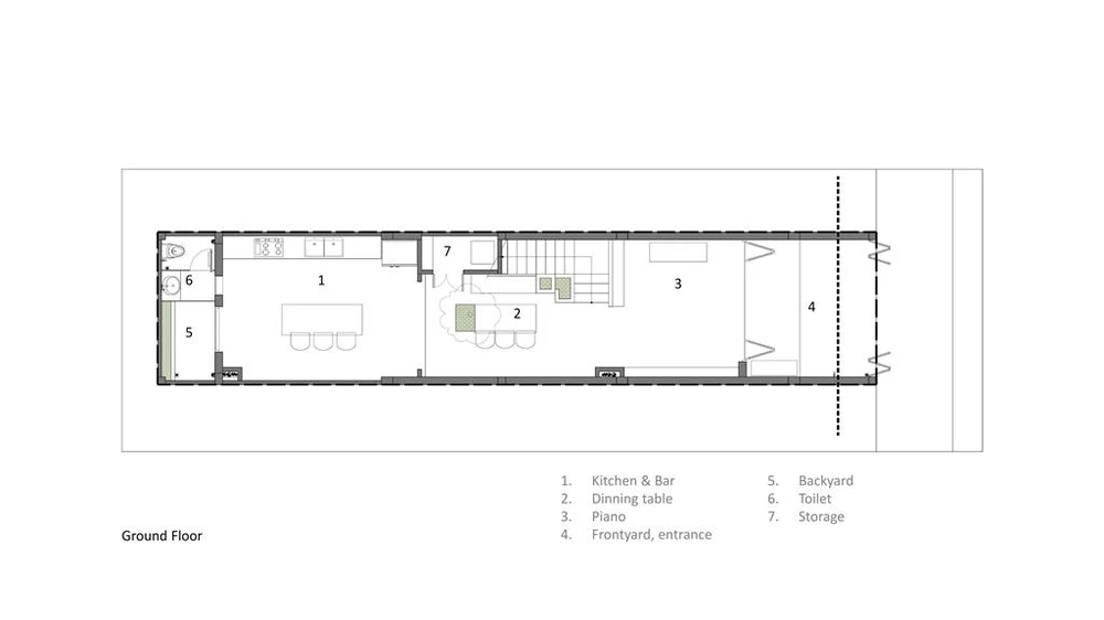
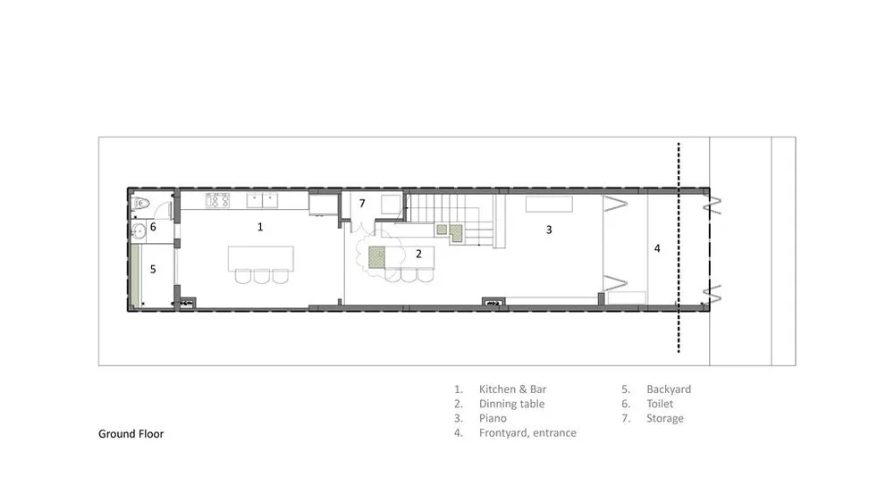
Tầng trệt bắt đầu với sảnh đệm vào nhà, không gian đặt đàn piano, không gian chính là bếp, bar phía sau nhà, bàn ăn được đặt tại giữa giếng trời.

Tầng trệt bắt đầu với sảnh đệm vào nhà, không gian đặt đàn piano, không gian chính là bếp, bar phía sau nhà, bàn ăn được đặt tại giữa giếng trời.

Mặt tiền hẹp chưa tới 4 m ngang, kiến trúc sư sử dụng thông tầng lớn giữa nhà, đảm bảo ánh sáng cho tất cả các phòng ở.

Mặt tiền hẹp chưa tới 4 m ngang, kiến trúc sư sử dụng thông tầng lớn giữa nhà, đảm bảo ánh sáng cho tất cả các phòng ở.

Kiến trúc sư cho biết, với nhu cầu diện tích phòng vừa đủ, gần như 1/3 diện tích xây dựng nhà được dành cho khoảng thông tầng.

Kiến trúc sư cho biết, với nhu cầu diện tích phòng vừa đủ, gần như 1/3 diện tích xây dựng nhà được dành cho khoảng thông tầng.

Phòng khách được đưa lên tầng lửng nhằm giải phóng diện tích cho tầng trệt, điều này cũng phù hợp với cách bố trí lệch tầng của căn nhà, tạo nên nhiều không gian sinh động trong nhà.

Phòng khách được đưa lên tầng lửng nhằm giải phóng diện tích cho tầng trệt, điều này cũng phù hợp với cách bố trí lệch tầng của căn nhà, tạo nên nhiều không gian sinh động trong nhà.

Cách bố trí phòng khách phù hợp với cách bố trí lệch tầng của căn nhà, tạo nên nhiều không gian sinh động trong nhà.

Cách bố trí phòng khách phù hợp với cách bố trí lệch tầng của căn nhà, tạo nên nhiều không gian sinh động trong nhà.

Bậc thang gỗ với kết cấu thép, hành lang trước phòng bằng lam gỗ. Kiến trúc sư sử dụng mảng gạch đỏ cho toàn bộ tường khu vực thông tầng.

Bậc thang gỗ với kết cấu thép, hành lang trước phòng bằng lam gỗ. Kiến trúc sư sử dụng mảng gạch đỏ cho toàn bộ tường khu vực thông tầng.

Khu vực cầu thang là khoảng không gian kết nối tất cả các khu vực trong nhà

Khu vực cầu thang là khoảng không gian kết nối tất cả các khu vực trong nhà

Tất cả các không gian chức năng trong nhà đều tiếp xúc thông thoáng tự nhiên, thông gió, ánh sáng và tiếp cận cây xanh.

Tất cả các không gian chức năng trong nhà đều tiếp xúc thông thoáng tự nhiên, thông gió, ánh sáng và tiếp cận cây xanh.

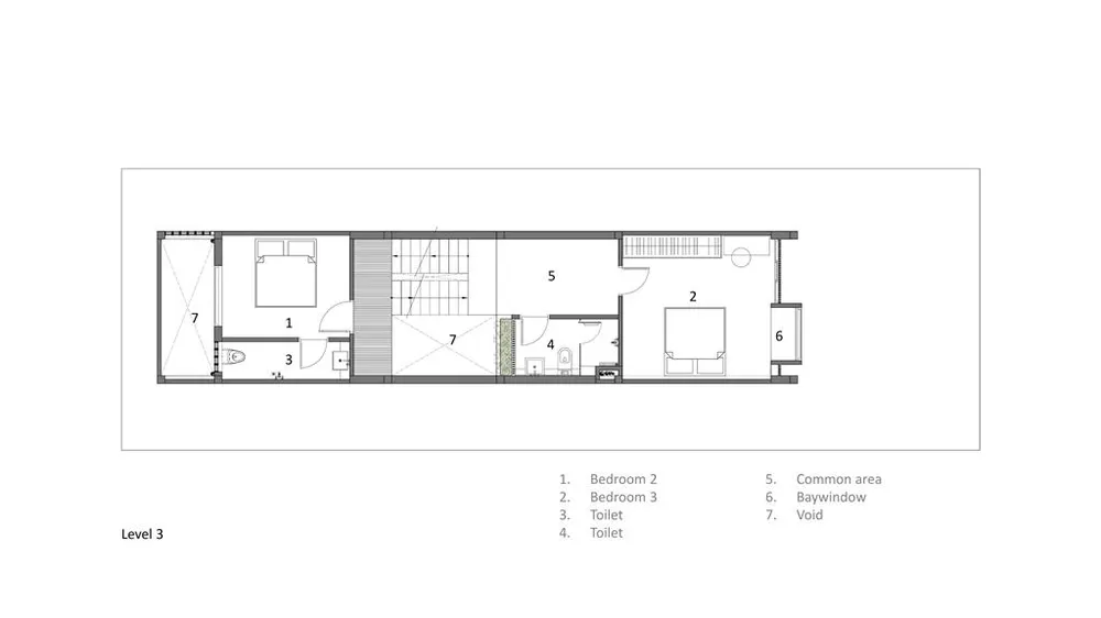
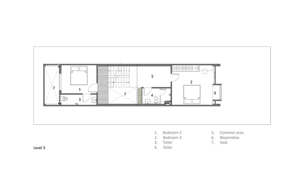
Lan can phòng ngủ.

Lan can phòng ngủ.

Chủ nhân ngôi nhà là gia đình trẻ gồm ba người, họ mong muốn có không gian sống tràn đầy ánh sáng và thoáng gió tự nhiên.

Chủ nhân ngôi nhà là gia đình trẻ gồm ba người, họ mong muốn có không gian sống tràn đầy ánh sáng và thoáng gió tự nhiên.

Thông tầng cuối nhà đảm bảo thông gió tự nhiên đầy đủ cho ngôi nhà.

Thông tầng cuối nhà đảm bảo thông gió tự nhiên đầy đủ cho ngôi nhà.

Đừng bỏ lỡ

Video đang xem nhiều

Đọc thêm