Nhà phố 5 tầng độc lạ với mặt tiền so le

(PLO)- KTS thiết kế mặt tiền có các ban công đưa ra theo dạng so le trên chiều đứng công trình giúp tạo ra chiều sâu khi nhìn từ các hướng khác nhau.

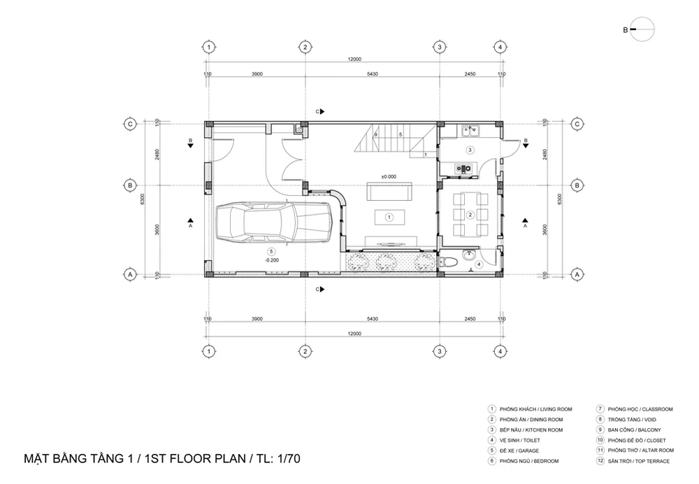
NDT HH Home nằm trong khu vực đông dân cư tại tỉnh Bắc Ninh. Dự án có diện tích là 76 m² (6,3 m x 12 m), mặt tiền chính hướng Bắc.

KTS Nguyễn Đăng Tưởng (Kiến Trúc NDT) cho biết, yêu cầu của gia chủ muốn tạo ra được một không gian sống hài hòa giữa việc ở và dạy học. Tất cả không gian phải tận dụng được các yếu tố từ tự nhiên như nắng, gió, đảm bảo tính kết nối giữa các không gian và đưa thật nhiều cây xanh vào công trình.

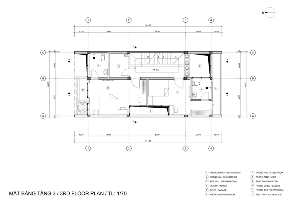
Mặt bằng được KTS chia làm hai khu chính và phụ. Khu chức năng chính gồm có phòng khách, phòng thờ, phòng ngủ, phòng học và phòng đa năng; khu chức năng phụ gồm có cầu thang, phòng kho, vệ sinh. 

nha-pho-mat-tien-so-le-2

Thời gian hoàn thiện ngôi nhà là 10 tháng và tổng chi phí là 3 tỉ đồng.

Mặt tiền với các ban công đưa ra ở các tầng theo dạng so le trên chiều đứng kết hợp với sự tương phản vật liệu tạo ra nhịp điệu chuyển động cho công trình và giúp tạo ra chiều sâu khi nhìn từ các hướng khác nhau.

Qua giải pháp này tạo khoảng không gian đệm giúp ngôi nhà chống lại tiếng ồn, khói bụi, ánh nắng mặt trời và luôn đảm bảo sự riêng tư cần thiết cho ngôi nhà. 

nha-pho-mat-tien-so-le-4

Mặt tiền ngôi nhà với điểm nhấn là hệ ban công kết hợp bồn cây được bố trí so le theo chiều đứng của công trình giúp tạo ra nhịp điệu chuyển động khi quan sát công trình theo nhiều hướng khác nhau.

nha-pho-mat-tien-so-le-6

Đây là giải pháp giúp hạn chế ánh nắng chiếu trực tiếp vào công trình do hệ cây xanh rủ xuống và hệ ban công đua ra tạo bóng đổ giúp không gian sinh hoạt bên trong được mát hơn. 

nha-pho-mat-tien-so-le-7

Hệ cây bụi khi phát triển lớn lên sẽ có khả năng điều hướng âm thanh giúp hạn chế âm thanh tác động vào trong ngôi nhà.

nha-pho-mat-tien-so-le-8

Cách bố trí không gian chính phụ của KTS giúp tiết kiệm diện tích sử dụng cho gia chủ.

nha-pho-mat-tien-so-le-9

Với việc phân khu chức năng chính phụ rõ ràng giúp các công năng có tính chất tương đồng nằm tập trung ở một khu nhất định.

nha-pho-mat-tien-so-le-10

Việc bố trí đồ đạc nội thất và các mảng tường bên trong không làm ngăn cản việc đối lưu gió giúp cho ngôi nhà luôn lấy được khí tươi tự nhiên

nha-pho-mat-tien-so-le-11

Cầu thang được bố trí áp vào tường để tiết kiệm diện tích và tăng tính kết nối giữa các không gian ở các tầng khác nhau.

nha-pho-mat-tien-so-le-12

Một khoảng trống sau nhà nằm cạnh cầu thang kết hợp với các mảng tường gạch bông gió giúp hạn chế ánh nắng, đảm bảo riêng tư và an ninh cho ngôi nhà 

nha-pho-mat-tien-so-le-14
nha-pho-mat-tien-so-le-15

Giải pháp trên giúp các không gian chính như phòng thờ, phòng ngủ, nhà vệ sinh và hành lang trên các tầng có thể kết nối trực tiếp với tầng một. 

nha-pho-mat-tien-so-le-16

Tại đây con người có thể cảm nhận được nắng, mưa, gió và cây khi di chuyển trên cầu thang và sảnh các tầng. 

nha-pho-mat-tien-so-le-17
nha-pho-mat-tien-so-le-18

Với việc bố trí các khoảng thông tầng và ô cửa giúp lấy sáng và thông gió tự nhiên thì vào ban ngày cho đến 17-18 giờ, chủ nhà gần như không phải bật điện chiếu sáng trong nhà. 

nha-pho-mat-tien-so-le-19

Không gian làm việc thông thoáng nhờ khoảng không tầng thông gió và lấy sáng.

nha-pho-mat-tien-so-le-20

Nội thất không gian phòng ngủ được tối giản.

nha-pho-mat-tien-so-le-21

Khu vực vệ sinh kết nối với khoảng thông tầng phía sau nhà.

NDT HH Home được sử dụng những giải pháp đơn giản nhưng hiệu quả giúp mang lại không gian sống tối ưu, tận dụng tối đa năng lượng thiên nhiên và giải quyết được các vấn đề bất cập đang tồn tại trong dạng nhà này.

Thông qua dự án KTS muốn truyền tải thông điệp sống đơn giản, sống xanh và tiết kiệm năng lượng tới những người xung quanh.

nha-pho-mat-tien-so-le-22
nha-pho-mat-tien-so-le-23
nha-pho-mat-tien-so-le-24
nha-pho-mat-tien-so-le-25
nha-pho-mat-tien-so-le-26
nha-pho-mat-tien-so-le-27

Đừng bỏ lỡ

Video đang xem nhiều

Đọc thêm