Ấn tượng với ngôi nhà phố liền kề nhưng lại rất... tách biệt

(PLO)- Cũng giống như những ngôi nhà phố khác, khi thiết kế K8 House KTS phải giải bài toán về việc lấy ánh sáng, thông gió tự nhiên cho ngôi nhà để làm mất đi cảm giác nhà phố liền kề.

K8 House là công trình nhà ở riêng lẻ trên khu đất 175 m2 tại quận 2, TP.HCM, chủ đầu tư là một cặp vợ chồng trẻ thích lối sống tối giản và gọn gàng.

Dựa vào đặc điểm tự nhiên của khu đất về hướng nắng, gió và các đặc điểm khác như tầm nhìn, công trình lân cận và quan trọng hơn hết là tính cách, lối sống của chủ nhà mà đội ngũ 717 Architects lên ý tưởng tạo nên một không gian ở tiện nghi, thoáng đãng và tiết kiệm năng lượng.

K8 xây dựng trên khu đất ở quận 2.

Xác định đây là một khu đất lớn với nhu cầu ở cho ba người, đội ngũ thiết kế đã tối đa hóa các không gian mở trong nhà cũng như ngoài trời, hệ ban công sâu và rộng kết hợp với các mảng cây xanh len lỏi.

Không gian thông tầng hoàn toàn ngoài trời để người sử dụng có thể cảm nhận được tối đa ánh sáng tự nhiên, đồng thời tạo ra một hệ thống luân chuyển không khí điều hòa cho toàn bộ công trình.

Dựa vào mong muốn của chủ nhà muốn có không gian sống tối giản và gọn gàng, 717 Architects đã thiết kế nên K8 House.

Màu trầm đơn giản, phù hợp cho mảng lớn và mỗi không gian chỉ tối đa ba loại vật liệu.

Bên trong công trình, các mảng kính được tính toán với kích thước và quy chuẩn sao cho vừa lấy được ánh sáng tự nhiên vừa không bị chói và nóng. Việc này được xử lý dựa trên kính hai lớp (double glazing) và kích thước ô mở so với cao độ của ô mở.

Với chiều rộng khu đất 7 m, việc bố trí vệ sinh một bên và lấy được ánh sáng tự nhiên từ mặt đứng là một lợi thế giúp cho không gian riêng tư này thân thiện hơn, thoáng và khô ráo hơn. Quan trọng hơn hết là cảm giác không phải nhà liền kề mà các công trình khác không có được.

Các mảng kính được tính toán với kích thước và quy chuẩn kỹ thuật vừa lấy ánh sáng tự nhiên vừa tạo sự mát mẻ cho ngôi nhà.

Càng lên cao thì diện tích mở càng nhỏ do hấp thụ nhiều ánh sáng hơn.

Phong cách kiến trúc tối giản (Minimalism) được truyền tải qua cách bố trí các không gian và phối hợp vật liệu. Các không gian được bố trí vuông vắn cho cảm giác gọn gàng.

Thêm vào đó là việc chỉ bố trí các vật dụng cần thiết, vừa đủ sau rất nhiều buổi nói chuyện khảo sát nhu cầu của chủ nhà, từ đó giúp cho mọi không gian sống luôn có một khoảng trống để “thở” và thư giãn.

Kiến trúc sư sử dụng kính hai lớp.

Mỗi không gian trong ngôi nhà được xây dựng tối đa ba loại vật liệu.

Vật liệu được lựa chọn trên ba tiêu chí: Màu trầm đơn giản, phù hợp cho mảng lớn và mỗi không gian chỉ tối đa ba loại vật liệu. Theo các tiêu chí này, đội ngũ thiết kế chỉ tạo điểm nhấn tại các trục chính hoặc điểm kết thúc tầm nhìn.

Các vật liệu được phối theo cả mảng lớn và ít chi tiết nhằm tạo cho không gian một sự đơn giản, giải phóng đôi mắt khỏi chi tiết không cần thiết và làm nổi bật các vật dụng nội thất được lựa chọn kỹ càng là điểm nhấn cho loại hình kiến trúc này.

Đây là khoảng thông tầng mang lại sự thoáng mát cho ngôi nhà.

Với những viên đá treo lơ lửng và bên dưới là hồ nước.

Cầu thang kết nối giữa các tầng.

Cuối cùng là hệ lam che nắng mặt tiền với tác dụng ba trong một, vừa giúp tạo điểm trang trí, đồng thời che nắng hướng Tây theo đặc điểm khu đất và hạn chế tầm nhìn vào nhà vệ sinh.

Việc bố trí vệ sinh một bên và lấy được ánh sáng tự nhiên từ mắt đứng là một lợi thế giúp cho không gian riêng tư này thân thiện hơn, thoáng và khô ráo hơn.

Mọi ý tưởng thiết kế trong ngôi nhà đều phục vụ cho hai vấn đề lớn là về ánh sáng và thông gió.

Hệ lam che nắng mặt tiền với tác dụng ba trong một vừa giúp tạo điểm trang trí.

Hệ lam mặt tiền còn giúp K8 House tránh nắng phía Tây.

Việc áp dụng một loại hình kiến trúc vào công trình là điều không khó, nhưng đội ngũ 717 Architects đã truyền tải được thói quen và phong cách sống của gia chủ hài hòa với hình thức kiến trúc, giúp cho toàn không gian trở nên gần gũi và hòa hợp thiên nhiên.

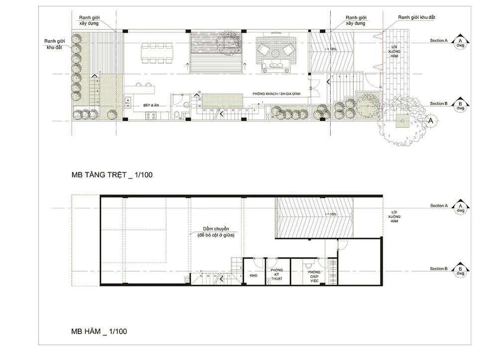
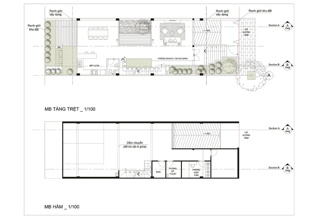
Sơ đồ tầng hầm và trệt.

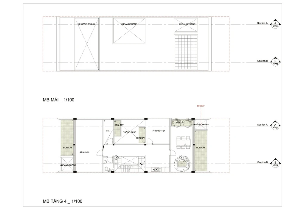
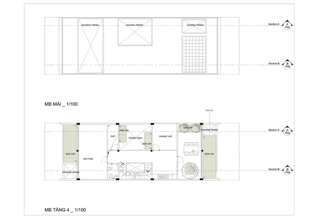
Sơ đồ tầng 4.

Đừng bỏ lỡ

Video đang xem nhiều

Đọc thêm