Biến nhà kho thành tổ ấm tuyệt đẹp ở TP Phan Thiết

(PLO)- Đội ngũ KTS đã cải tạo gian nhà kho nóng bức của vùng đất Phan Thiết thành tổ ấm tuyệt đẹp của gia đình bốn thành viên.
0:00 / 0:00
0:00
  • Nam miền Bắc
  • Nữ miền Bắc
  • Nữ miền Nam
  • Nam miền Nam

NT’s Habitat là một ngôi nhà ấm cúng dành riêng cho gia đình bốn người. Công trình được cải tạo từ một nhà kho nhỏ tọa lạc tại thành phố Phan Thiết, tỉnh Bình Thuận.

KTS Flex atelier đã tạo nên một thiết kế không chỉ đề cao không gian sống mà còn là sự dung hòa với các yếu tố tự nhiên tác động đến công trình.

Mặt tiền nhà nổi bật với lớp gạch nung được lắp đặt cẩn thận. Lớp gạch này tạo nên luồng không khí từ ngoài vào trong nhà. 

Những bức tường trắng phun sa thạch góp phần làm giảm quá trình hấp thụ ánh nắng mặt trời vào công trình.

KTS thiết kế chừa khoảng sân nhỏ để trồng cây và tạo khoảng trống để các con vui chơi hoặc để xe cộ.

Tầng một là nơi mà các thành viên trong gia đình sum vầy.

Một góc thư viện nhỏ của bé được bố trí dưới cầu thang, nơi mà bé có thể chơi đùa hay đọc sách. Đây là không gian sinh hoạt chung, tuy không có phòng khách nhưng được xem là nơi tiếp khách và sum vầy của gia đình.

Không gian này được nhấn mạnh bằng cách âm sàn tạo nên các bậc thềm bằng đá mài.

Tại đây, các thành viên có thể ngồi bệt dưới nền đá mài, tạo cảm giác hoài niệm và ấm cúng, giúp mọi người trở nên gần gũi, giản dị hơn.

Để tạo sự xanh mát trong nhà, ở góc nhỏ của khu vực bếp KTS bố trí thêm cây xanh.

Căn bếp nổi bật với phần gạch ốp tường màu xanh ngọc.

Giếng trời cung cấp lượng gió tạo nên sự đối lưu làm mát công trình, giúp khí nóng được giải thoát một cách tối ưu.

Bên cạnh đó, đây cũng là nơi cung cấp ánh sáng giúp ngôi nhà tiết kiệm năng lượng rất nhiều vào ban ngày.

Lối cầu thang dẫn lên không gian riêng đều thông với khoảng giếng trời.

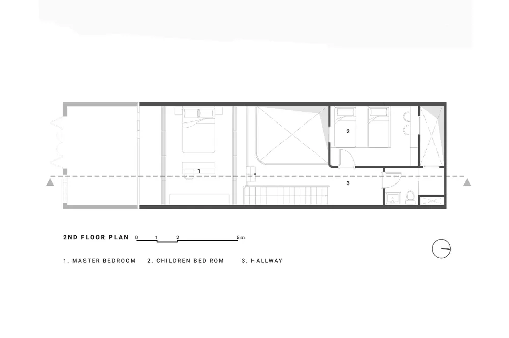
Tầng hai được thiết kế nhằm đem lại sự thoải mái và ấm cúng cho ngôi nhà bằng thủ pháp trong tối và ngoài sáng. 

Thủ pháp này giúp gia chủ thấy dễ chịu khi bước vào phòng ngủ. Ánh sáng ban ngày tại khu vực hành lang trước phòng còn đem lại nguồn năng lượng tích cực cho chủ nhà.

Điểm nhấn tại tầng hai là việc nâng cốt cao độ của phòng ngủ chính một cách khác thường. 

Việc nâng cốt này giúp tầng trệt có một cao độ thoáng hơn, ngoài ra còn đem lại cảm giác tiếp cận không gian mới lạ hơn bằng các cao độ khác nhau.

 Hai bên phòng ngủ chính là các cửa lùa, giúp gia chủ linh hoạt trong việc thông thoáng phòng một cách tự nhiên.

Bằng sự kết hợp hài hòa giữa gạch men xám và gạch mosaic xanh, kiến trúc sư đã thiết kế nên một không gian phòng tắm dung hòa giữa cái nóng và nắng của địa phương với nét xanh và mát của vật liệu.

Đừng bỏ lỡ

Video đang xem nhiều

Đọc thêm