Biệt thự nhiệt đới với mảng xanh bao bọc ở Đà Nẵng

(PLO)- Công trình được thiết kế theo phong cách nhiệt đới, nổi bật với hình khối độc đáo. 

biet-thu-nhiet-doi-1.jpg
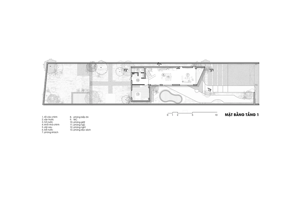
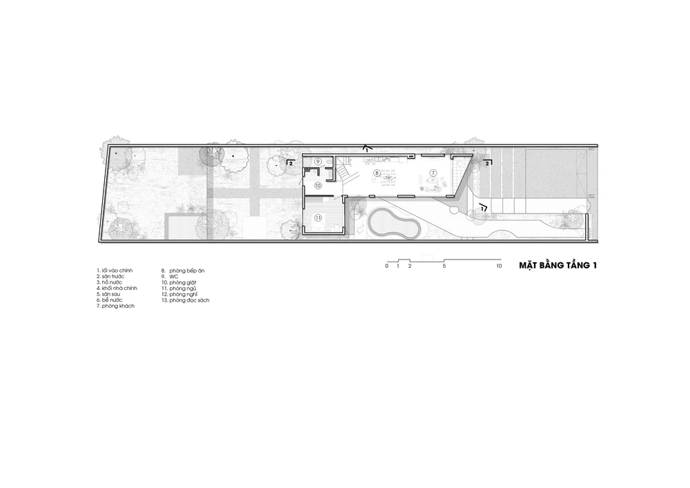
Mr.Phong’s Villa là một ngôi biệt thự nhỏ hiện đại nằm trên khu đất 600m2, tổng diện tích sàn 250m2 tọa lạc tại TP Đà Nẵng.
biet-thu-nhiet-doi-2.jpg
Không gian còn lại dành cho sân vườn, hồ bơi nhỏ, sân đậu xe ô tô.
biet-thu-nhiet-doi-3.jpg
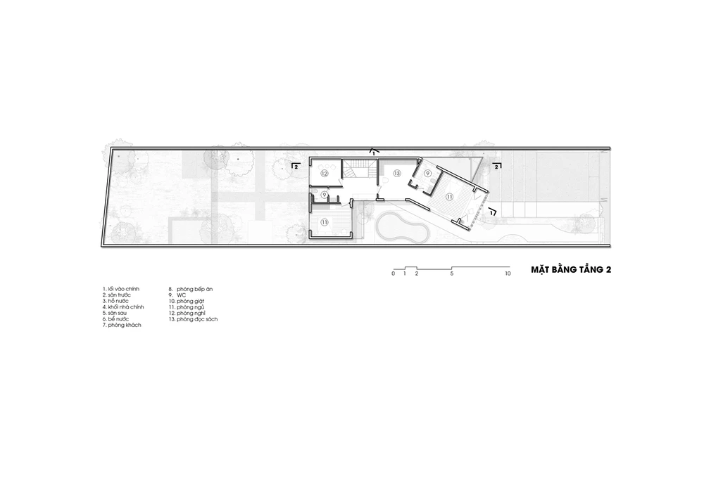
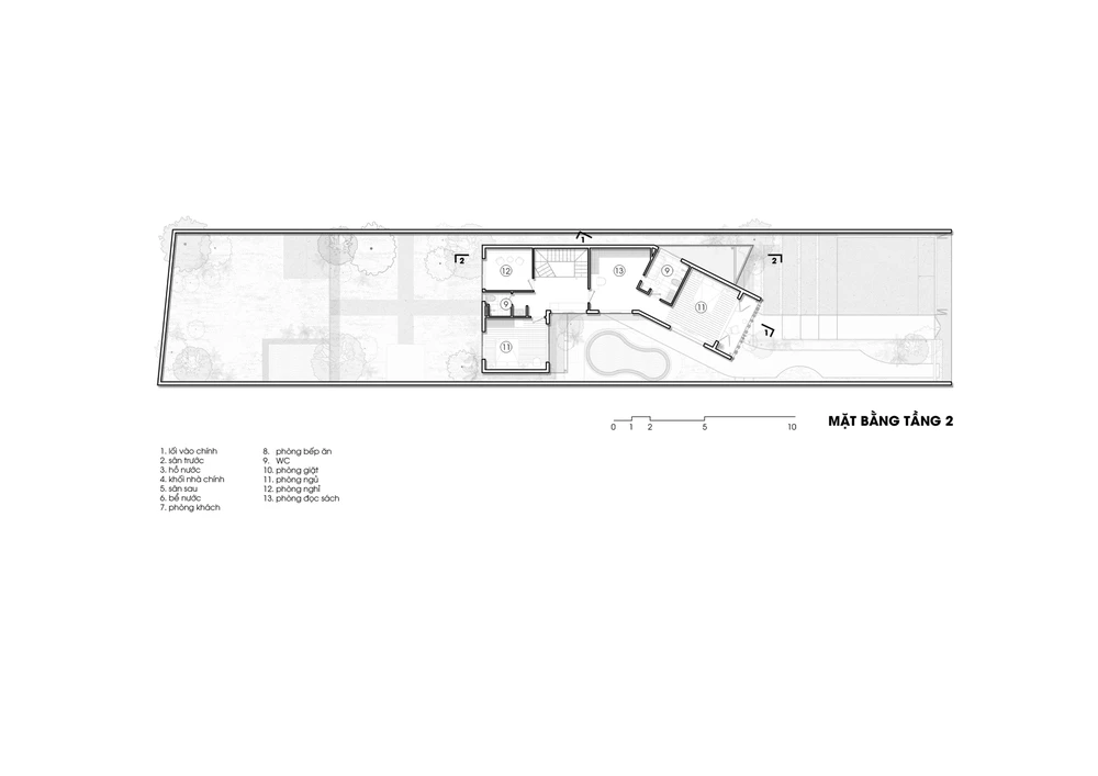
Kiến trúc sư Milimet Vuông thiết kế công năng của ngôi nhà có phòng khách, bếp, ba phòng ngủ, một phòng làm việc và các không gian chung khác.
biet-thu-nhiet-doi-4.jpg
Toàn bộ bên trong ngôi nhà được thiết kế theo lối không gian mở.
biet-thu-nhiet-doi-8.jpg
Các phòng được thiết kế lấy trọn vẹn ánh sáng và thông gió tự nhiên.
Thiết kế mở vừa đem đến cảm giác thoáng đãng, dễ chịu. Bên cạnh đó đem lại tầm nhìn lớn hơn 180 độ, tạo ra không gian vừa rộng vừa sâu, tận hưởng mọi góc nhìn yêu thích xung quanh biệt thự nhiệt đới này.
Thiết kế mở vừa đem đến cảm giác thoáng đãng, dễ chịu. Bên cạnh đó, đem lại tầm nhìn lớn hơn 180 độ, tạo ra không gian vừa rộng vừa sâu, tận hưởng mọi góc nhìn yêu thích xung quanh biệt thự nhiệt đới này.
biet-thu-nhiet-doi-6.jpg
Khu vực bể bơi nhỏ, chiều sâu chỉ từ 70-80cm, được thiết kế theo phong cách nhiệt đới.
biet-thu-nhiet-doi-7.jpg
Khu vực hồ bơi và sân vườn vừa là khu vực giải trí cho trẻ em, vừa tạo điểm nhấn thêm cho không gian đầy đủ các yếu tố tự nhiên trọn vẹn.
biet-thu-nhiet-doi-10.jpg
Một trong những điểm nhấn đặc biệt của ngôi nhà là mái hiên vươn xa khỏi tầng một dài đến 6,7m, được các kiến trúc sư tính toán chính xác và an toàn.
biet-thu-nhiet-doi-11.jpg
Kiến trúc sư chia sẻ, công trình này chỉ tăng cường thêm số lượng sắt thép và không sử dụng công nghệ khác.
biet-thu-nhiet-doi-12.jpg
Bên trong nội thất được tối giản kết hợp những giải pháp sử dụng vật liệu chống nóng.
biet-thu-nhiet-doi-13.jpg
biet-thu-nhiet-doi-15.jpg
Từ kết cấu, chất liệu, màu sắc, từ tổng thể đến từng chi tiết sử dụng trong biệt thự nhiệt đới này không quá chú trọng sự xa hoa mà là vừa vặn.
biet-thu-nhiet-doi-16.jpg
Về tổng thể biệt thự này đi theo âm hưởng nhiệt đới nên các chất liệu chính được sử dụng như gỗ, cây xanh...
biet-thu-nhiet-doi-17.jpg
Thời gian xây dựng hoàn thiện 8 tháng, chi phí 3,8 tỉ đồng (chưa bao gồm thiết bị điện tử).
biet-thu-nhiet-doi-18.jpg
biet-thu-nhiet-doi-19.jpg
biet-thu-nhiet-doi-20.jpg

Đừng bỏ lỡ

Video đang xem nhiều

Đọc thêm