Nhà thông tầng cho gia đình có trẻ nhỏ

(PLO)- Nhà thông tầng giúp mở rộng tầm nhìn, lấy ánh sáng tự nhiên, kết nối các thành viên trong gia đình. 

ngoi-nha-thong-tang-1.jpg
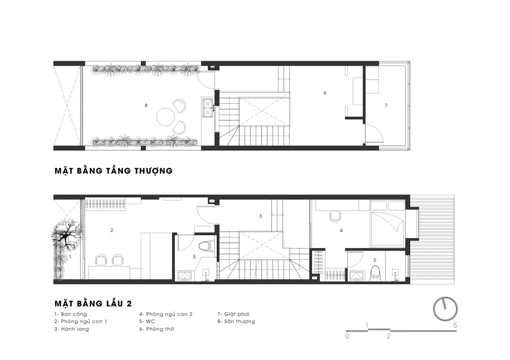
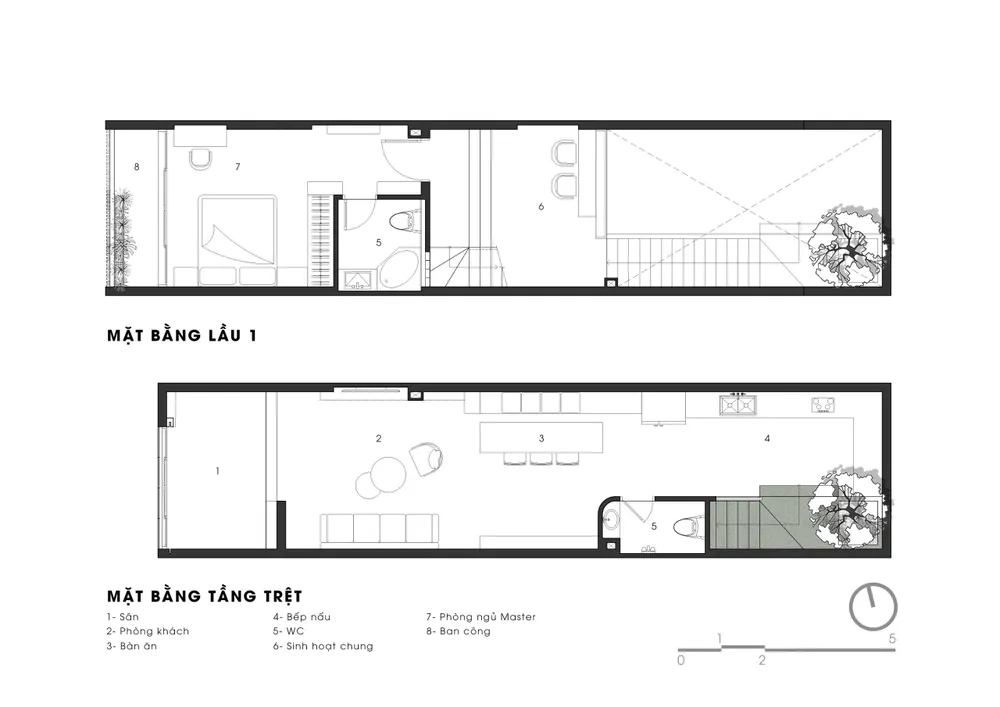
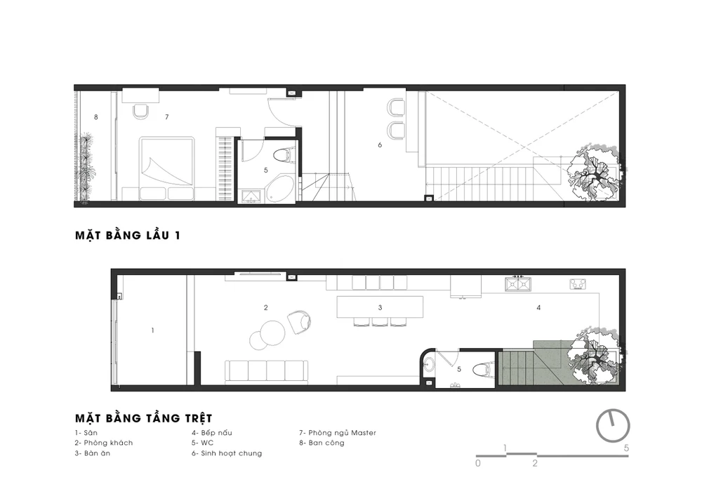
Nhà Anh Bảo là một dự án nhà phố có diện tích 72 m2, tọa lạc tại TP Thủ Đức (quận 2 cũ), TP.HCM.
ngoi-nha-thong-tang-2.jpg
Ngôi nhà nhỏ là tổ ấm của gia đình có ba con nhỏ do kiến trúc sư Story Architecture thiết kế.
ngoi-nha-thong-tang-3.jpg
Kiến trúc sư ưu tiên các giải pháp thiết kế nhằm giảm áp lực cho người mẹ và giải tỏa năng lượng cho con nhỏ.
ngoi-nha-thong-tang-4.jpg
Giải pháp thông tầng phía sau nhà kết hợp với giếng trời, khu vực này đặt vị trí bếp.
ngoi-nha-thong-tang-5.jpg
Bếp trở nên thông thoáng và tràn ngập ánh sáng.
ngoi-nha-thong-tang-6.jpg
Và cũng từ khu vực làm bếp, người mẹ vừa làm bếp vừa có tầm nhìn lên các tầng trên và về trước quản lý nhà và con nhỏ.
ngoi-nha-thong-tang-7.jpg
Ở tầng trệt, cầu thang được thiết kế một vế ép sát một bên tường. Các tủ kệ bàn ăn cũng bố trí sát tường tạo ra các khoảng trống làm sân chơi cho các con.
ngoi-nha-thong-tang-17.jpg
Từ lầu một lên lầu hai và sân thượng là cầu thang sắt mặt gỗ.
ngoi-nha-thong-tang-8.jpg
Trước phòng ngủ của bố mẹ bố trí một không gian trống lớn làm sân chơi sinh hoạt cho các con.
ngoi-nha-thong-tang-9.jpg
Phòng ngủ bố mẹ và phòng ngủ con của ngôi nhà thông tầng được bố trí lệch tầng qua giếng trời giúp dễ dàng quan sát và quản lý con nhỏ.
ngoi-nha-thong-tang-10.jpg
ngoi-nha-thong-tang-11.jpg
Giường tại phòng ngủ của các con được bố trí sát tường gọn gàng để có thể dành một khoảng trống lớn bày đồ chơi chơi trong phòng.
ngoi-nha-thong-tang-12.jpg
Phòng ngủ với những mảng cửa kính lớn có thể lấy ánh sáng tự nhiên nhiều nhất cho các bé.
ngoi-nha-thong-tang-13.jpg
Thiết kế giường tầng giúp tối ưu diện tích căn phòng.
Với tông màu xi măng chủ đạo, nhấn nhá màu sắc của vật liệu đá mài tạo ra một sự gần gũi và vui tươi cho ngôi nhà thông tầng này.
Với tông màu xi măng chủ đạo, nhấn nhá màu sắc của vật liệu đá mài tạo ra một sự gần gũi và vui tươi cho ngôi nhà thông tầng này.
ngoi-nha-thong-tang-15.jpg
ngoi-nha-thong-tang-16.jpg

Đừng bỏ lỡ

Video đang xem nhiều

Đọc thêm