Ngôi nhà 80 m² phong cách tối giản, mặt tiền chỉ 3,5m

(PLO)- Kiến trúc và nội thất công trình được thiết kế theo phong cách tối giản, ưu tiên không gian mở.

phong-cach-toi-gian-1.jpg
PTH house có diện tích sàn chỉ hơn 80 m2, mặt tiền chỉ rộng 3,5m tọa lạc tại TP Phan Rang – Tháp Chàm, tỉnh Ninh Thuận.
phong-cach-toi-gian-2.jpg
Với diện tích khá nhỏ, cùng yêu cầu tận dụng tối đa mọi không gian trong căn nhà nhưng vẫn rộng rãi, thoải mái, nhóm kiến trúc sư Q&A Architects đã mất nhiều tháng để thực hiện thiết kế cho ngôi nhà này.
Không gian nhà được bố trí theo phong cách tối giản, phù hợp với nhu cầu sử dụng của gia đình bốn thành viên.
Không gian nhà được bố trí theo phong cách tối giản, phù hợp với nhu cầu sử dụng của gia đình bốn thành viên.
phong-cach-toi-gian-4.jpg
Kiến trúc sư cho biết, gia chủ thích cuộc sống đơn giản, sự sắp xếp gọn gàng, đặt ra yêu cầu về một ngôi nhà mang sự hiện đại pha trộn nét tinh giản.
phong-cach-toi-gian-5.jpg
Theo hướng phong cách tối giản nên không gian bếp thiết kế hiện đại và đơn giản nhất có thể. Thiết bị và đồ đạc của không gian này cũng được giấu sau hệ tủ.
phong-cach-toi-gian-6.jpg
Kiến trúc sư cũng chú trọng đưa ánh sáng và không gian nhà bằng những ô cửa sổ nhỏ.
phong-cach-toi-gian-7.jpg
Bên trong nhà được tối ưu diện tích sử dụng, hạn chế những đồ nội thất không cần thiết, mở rộng nhiều ô cửa sổ hợp lý có tác dụng hỗ trợ thông thoáng và lấy sáng.
phong-cach-toi-gian-8.jpg
Cầu thang gỗ dẫn lên tầng một đẹp, đơn giản và hiện đại.
phong-cach-toi-gian-9.jpg
Ánh sáng len lỏi vào từng ngóc ngách của ngôi nhà nhỏ.
phong-cach-toi-gian-10.jpg
phong-cach-toi-gian-11.jpg
Phòng ngủ trong nhà đều có cửa sổ lấy sáng và thông gió tự nhiên.
phong-cach-toi-gian-12.jpg
Nội thất ưu tiên tối giản, tiết chế vật dụng để tạo cảm giác thoáng rộng.
phong-cach-toi-gian-13.jpg
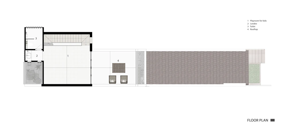
Mặt bằng tầng trệt.
phong-cach-toi-gian-14.jpg
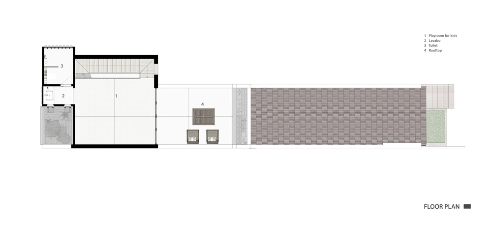
Mặt bằng tầng một.

Đừng bỏ lỡ

Video đang xem nhiều

Đọc thêm