H2 House tránh nắng phía tây mát quanh năm

(PLO)- Nhờ thiết kế thân thiện với môi trường và mặt tiền tránh nắng phía tây, H2 House mát mẻ quanh năm.

H2 House được xây dựng nằm ở một khu phố chính khá nhộn nhịp và ồn ào tại đường Lý Thường Kiệt, TP Mỹ Tho, Tiền Giang. Với mong muốn của chủ nhà có sự riêng tư cho các thành viên trong gia đình để họ được thư giãn khi trở về sau một ngày làm việc.

Vì vậy, nhóm KTS G+Architects đã thiết kế một công trình cần phải đảm bảo các khoảng giãn cách và mật độ nhất định để tạo ra không khí yên tĩnh.

H2 House có hệ mái rộng hạn chế ánh nắng từ hướng tây.

Nhóm KTS đã thiết kế khối cao tầng được dời ra phía sau nhà để tạo khoảng lùi với không gian đô thị tại TP Mỹ Tho.

Ưu tiên của KTS Đoàn Giang và KTS Lê Hoàng Vũ không những mang đến cho chủ nhà một nơi ở đầy đủ tiện nghi mà còn là sự trải nghiệm về không gian, ánh sáng và gió.

Thông qua một khu vườn rộng phía trước, mặt đứng công trình trải dài nép mình dưới những tán cây và sau lớp hàng rào bê tông gợi lên diện mạo khiêm nhường. Các hệ mái trải rộng để hạn chế ánh nắng trực diện từ hướng tây nhưng vẫn có thể mở cửa kính tăng sự tương tác giữa không gian bên trong và sân vườn.

Trước hàng rào nhà H2, cây rợp bóng xanh mát tường rào.

Đối với giải pháp không gian, khối cao tầng được dời về phía sau tạo ra khoảng lùi với không gian đô thị, bố cục mặt bằng phát triển đa hướng. Ngoài việc phân chia các luồng gió và ánh sáng tự nhiên cho các phòng mà còn tạo ra các khoảng tiểu cảnh như vườn cây, hồ cá, hồ bơi… phục vụ cho các không gian chung và riêng.

Không gian sống chung và riêng được kết hợp hài hòa bởi các tiểu cảnh như hồ bơi, vườn cây, hồ cá...

Không gian mở đón ánh nắng và gió, H2 House vừa hòa nhập với thiên nhiên vừa cho chủ nhà sự thư giãn khi làm việc mệt mỏi.

Những bức tường trải dài phản ánh các sự thay đổi của ánh sáng trong ngày và sự rung động của bóng đổ cây cối đã dẫn dắt không gian bên trong ra thiên nhiên bên ngoài.

Theo thói quen của gia đình thường hướng về các hoạt động vui chơi giải trí chung nên khu phòng ăn và bếp, phòng sinh hoạt chung, phòng ngủ chính được liên thông và hướng ra hồ bơi để tăng sự kết nối của các thành viên trong gia đình trong không gian xanh có nắng sớm và gió mát. 

Cửa kính giữa tầng trệt và tầng hai ngôi nhà tăng sự tương tác giữa không gian bên trong và bên ngoài.

Ngôi nhà vẫn tràn ngập ánh sáng và gió qua khoảng không giữa hai tầng và cây xanh sân trước.

Nội thất trong nhà cũng được tiết giản tối đa nhất. Hồ cá bên cạnh là điểm nhấn cho phòng khách thoáng mát.

Đây là khoảng không gian sinh hoạt chung của cả gia đình với khu vực hồ bơi gần khu bếp. 

Màu sắc, chất liệu nội thất có màu trung tính.

Sau ngày làm việc mệt nhọc, gia chủ có thể ngồi xuống bộ ghế sofa thưởng thức tách trà nóng và thư giãn.

Ngôi nhà xây trên khu đất 800 m2 và diện tích làm nhà chỉ 220 m2 có mặt tiền trốn nắng hướng tây, những khoảng đóng mở không gian hay lệch cốt sàn kết hợp với tính toán thông gió. Ngoài ra, ngôi nhà còn kết hợp với mặt nước trước và sau trong một vùng cây xanh bao phủ và hệ năng lượng mặt trời trên mái nhà.

Phòng ngủ gần sát không gian chung nhưng vẫn có sự riêng tư bởi tấm màn treo và khung cửa sắt.

Bếp ăn - phòng khách - phòng ngủ - hồ bơi kết nối thành một không gian chung.

Góc nhìn từ hồ bơi, H2 House như một resort giữa phố thị đông đúc.

Mô hình lắp ráp H2 House.

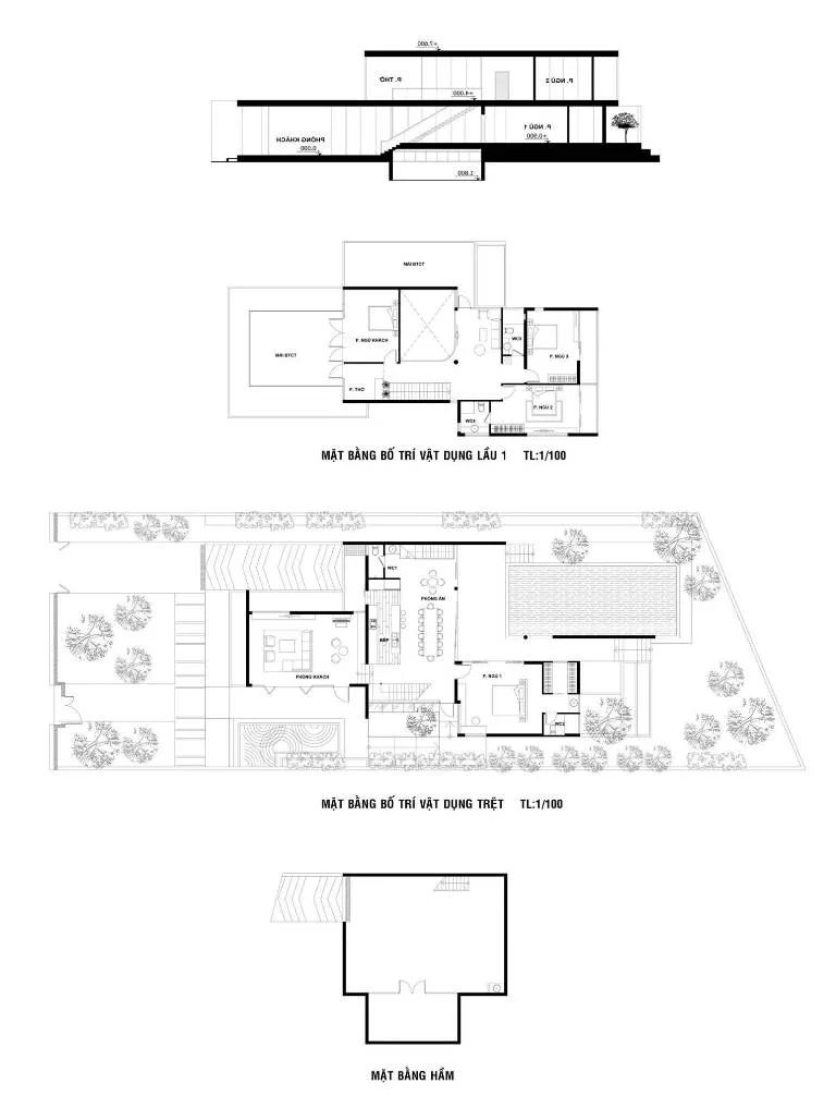
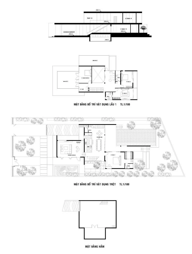
Sơ đồ toàn ngôi nhà.

Đừng bỏ lỡ

Video đang xem nhiều

Đọc thêm