Ngôi nhà có 7 khu vườn ở Cần Thơ

(PLO)- Kiến trúc sư đã khéo léo đưa bảy khu vườn vào ngôi nhà có diện tích 103 m² tọa lạc tại khu vực đông dân cư của TP Cần Thơ.

ngoi-nha-1.jpg
Nhà Voi có diện tích 4,5 x 23 m tọa lạc tại TP Cần Thơ, do kiến trúc sư Nguyễn Đắc Anh Quân (Da Vàng Studio) thiết kế.
Sở dĩ ngôi nhà có tên là Nhà Vòi vì theo kiến trúc sư mặt tiền được thiết kế theo hình con voi.
Sở dĩ ngôi nhà có tên là Nhà Voi vì theo kiến trúc sư mặt tiền được thiết kế theo hình con voi.
ngoi-nha-3.jpg
ngoi-nha-21.jpg
Lối vào nhà tràn ngập cây xanh.
ngoi-nha-4.jpg
Một khu vườn trong nhà tại thành phố lớn là điều khá xa xỉ nhưng ngôi nhà này có tới 7 khu vườn.
ngoi-nha-5.jpg
Không gian bếp được thiết kế ngay lối đi nhằm tăng sự tiện nghi cho ngôi nhà.
ngoi-nha-6.jpg
Bếp và khu vực bàn ăn được bố trí ở tầng một.
ngoi-nha-7.jpg
Ngay khu vực bếp kiến trúc sư khéo léo lồng cây xanh khiến không gian này trở nên thoáng mát hơn.
ngoi-nha-8.jpg
Tiếp theo là không gian phòng khách, đặt ngay trung tâm của ngôi nhà.
ngoi-nha-9.jpg
Giữa không gian bếp và phòng khách là khoảng trống nhỏ, giúp lấy sáng cho toàn bộ nhà.
ngoi-nha-10.jpg
Một góc khu vườn.
ngoi-nha-11.jpg
Kiến trúc sư cho biết, "dưới mức vừa đủ" chắc là cụm từ chính xác để miêu tả về ngôi nhà này. Mỗi thứ được làm ít hơn một tí, nhỏ hơn một tí để nới rộng được thêm không gian cho cây xanh.
ngoi-nha-12.jpg
Phần lối đi kiến trúc sư lắp gạch kính lấy sáng cho nhà vào ban ngày mà không cần sử dụng điện.
ngoi-nha-13.jpg
ngoi-nha-14.jpg
ngoi-nha-15.jpg
Phòng ngủ lớn có thiết kế hiện đại và theo tông màu trắng chủ đạo.
ngoi-nha-16.jpg
Kiến trúc sư cũng dành một khu vườn nhỏ cho không gian phòng ngủ .
ngoi-nha-17.jpg
Phòng vệ sinh thiết kế phù hợp với không gian riêng của các thành viên trong gia đình.
ngoi-nha-18.jpg
ngoi-nha-19.jpg
Phòng ngủ đầy màu sắc của thành viên trong gia đình.
ngoi-nha-20.jpg
Một góc vườn sau nhà.
ngoi-nha-22.jpg
ngoi-nha-23.jpg
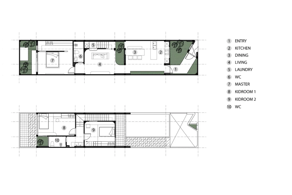
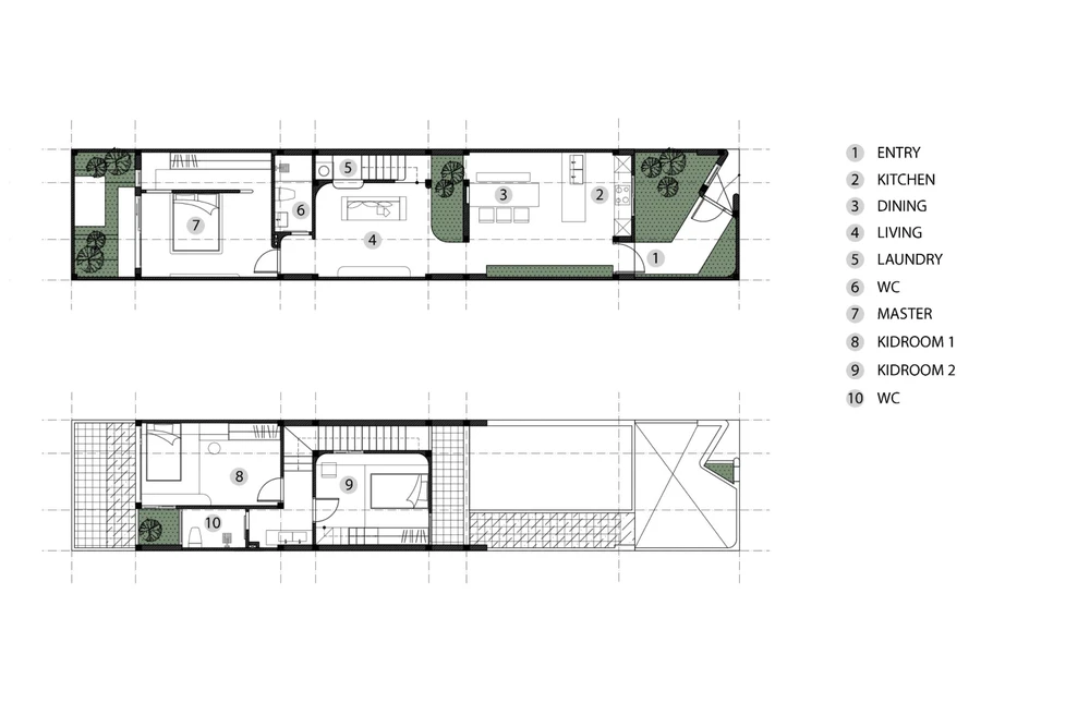
Mặt bằng tầng một.

Đừng bỏ lỡ

Video đang xem nhiều

Đọc thêm