Ngôi nhà của gia đình 3 thế hệ ấn tượng bởi không gian chung

(PLO)- Ngôi nhà sở hữu thiết kế phù hợp với khí hậu tại địa phương, thêm vào đó là giải pháp kiến trúc độc đáo cũng giúp tăng sự gắn kết các thành viên với nhau và với tự nhiên.

0:00 / 0:00
0:00
  • Nam miền Bắc
  • Nữ miền Bắc
  • Nữ miền Nam
  • Nam miền Nam

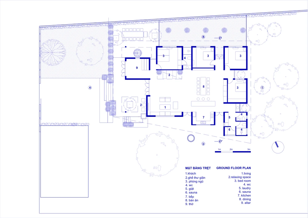
C6 House xây dựng trên khu đất có diện tích hơn 1600 m2 tại huyện Cẩm Mỹ, tỉnh Đồng Nai, là tổ ấm của gia đình ba thế hệ. Nhóm thiết kế CTA | Creative Architects đã tạo nên ngôi nhà có một không gian sống tự nhiên, thoải mái và đầm ấm.

ngoi-nha-1.jpg
ngoi-nha-2.jpg

Theo nhóm thiết kế, chủ nhà muốn xây dựng ngôi nhà ở quê để con cháu có thể tụ tập mỗi khi có dịp và cũng là nơi gia chủ an hưởng tuổi già.

Bên cạnh các không gian chức năng cơ bản, nhóm thiết kế CTA | Creative Architects còn bố trí có một không gian chung rất lớn 70 m2 dùng làm khu vực khách bếp ăn.

ngoi-nha-3.jpg
ngoi-nha-6.jpg

Nhóm thiết kế CTA | Creative Architects đã bố trí một bàn BBQ nằm nửa trong nửa ngoài phần hiên làm nơi cho bạn bè tụ họp.

ngoi-nha-5.jpg
ngoi-nha-4.jpg

Với thời tiết nắng nóng rất đặc trưng nên trong quá trình thiết kế, các giải pháp chống nóng và thông gió là những điểm được nhóm thiết kế đặt lên hàng đầu.

Hệ mái che phủ hết phần lớn các không gian chức năng. Hệ mái này được làm phồng lên, tạo ra một lớp không khí cách nhiệt giữa mái và trần nhà. Phía trên mái có phủ thêm lớp ngói chống nóng giúp hấp thu phần lớn nhiệt từ ánh nắng mặt trời.

ngoi-nha-13.jpg
ngoi-nha-14.jpg

Nhằm hỗ trợ thêm phần cách nhiệt, phần trần bên dưới đóng thêm một lớp thạch cao hoặc trần gỗ, nhằm ngăn lại đại đa số nhiệt lượng của những buổi trưa hè oi ả vùng Đông Nam Bộ.

Giải pháp thông thoáng cũng là một tiêu chí không thể thiếu khi nghiên cứu giải pháp bố trí mặt bằng. Để gió có thể lưu thông xuyên suốt tất cả mọi nơi trong nhà thì vấn đề thông gió phải xử lý trên cả mặt bằng lẫn mặt cắt công trình.

ngoi-nha-8.jpg

Đối với nhà ở nông thôn, hầu hết các hoạt động hằng ngày đều diễn ra ngoài hiên nhà. Ngay cả khi khách tới chơi, mọi người thường rất ít vào phòng khách mà hay ngồi ngoài hiên nhà, vừa thuận tiện vừa thoải mái.

Do đó, khi nghiên cứu giải pháp bố trí công năng cho nhà, nhóm thiết kế đã bố trí khu vực mái hiên rất lớn ở phía trước nhà, kết hợp với cảnh quan cây xanh nhằm tạo ra một không gian nửa trong nửa ngoài nhà.

ngoi-nha-7.jpg

Các khối chức năng được tách rời nhau ra nhưng liên kết lại với nhau bằng hành lang gió. Với giải pháp bố trí mặt bằng, ánh sáng, không khí có thể tiếp cận bên trong từ bốn hướng. Qua đó giúp bên trong ngôi nhà khi nào cũng mát mẻ và ngập tràn ánh sáng.

ngoi-nha-12.jpg
Phòng ngủ của ngôi nhà kết nối với thiên nhiên bên ngoài.
Phòng ngủ của ngôi nhà kết nối với thiên nhiên bên ngoài.
ngoi-nha-16.jpg

Đừng bỏ lỡ

Video đang xem nhiều

Đọc thêm