Ngôi nhà đa năng bên bờ sông Hàn, TP Đà Nẵng
(PLO)- Công trình ở TP Đà Nẵng xây dựng với chi phí rẻ cùng các giải pháp thân thiện môi trường.
 |
Công trình The VietNam Hostel được xây dựng đối diện chợ Hàn, địa điểm nổi tiếng nhất TP Đà Nẵng. |
 |
Công trình được thiết kế theo hướng tối giản, kiến trúc sư 85 Design sử dụng nhiều vật liệu đơn giản và chi phí thấp. |
 |
Kiến trúc sư ưu tiên sử dụng các giải pháp thân thiện với môi trường như xây gạch không nung, không trát tường trong nhà để hạn chế sử dụng xi măng. |
 |
Tầng một được thiết kế lùi toàn bộ tòa nhà về phía sau để dành không gian làm bãi đậu xe và sân vườn. |
 |
Mặt sau của tòa nhà là văn phòng và sân vườn. Thang máy được thiết kế bằng kính mang đến cảm giác rộng rãi, thoáng mát. |
 |
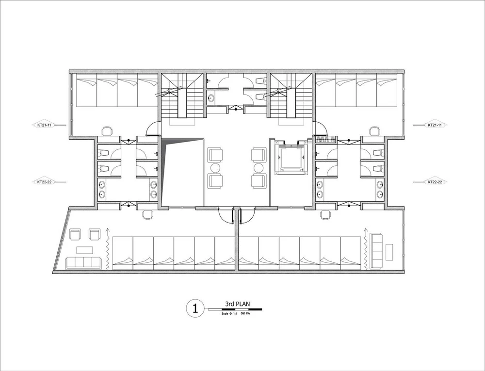
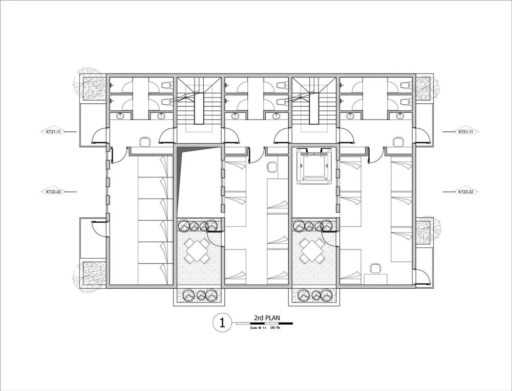
Tầng hai, tầng ba là khu nội trú, bao gồm các phòng ký túc xá |
 |
Giữa các phòng là giếng trời và không gian có cây xanh, mọi người có thể đi bộ đến các khu vực này để làm việc, thư giãn. |
 |
Ngoài ra, kiến trúc sư còn sử dụng nhiều cây xanh và ánh sáng mặt trời để lấy nắng và gió làm cho không gian trở nên thoáng mát và thân thiện hơn. |
 |
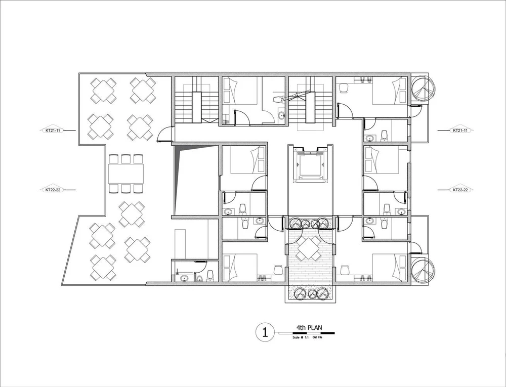
Tầng bốn là tầng có phòng riêng, sân chơi, quán cà phê và bếp chung. |
 |
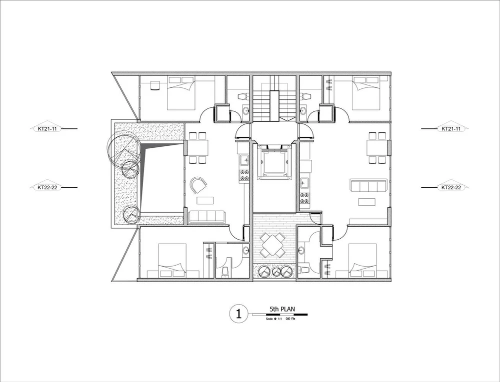
Mặt bằng tầng năm là hai căn hộ. |
 |
Phòng ngủ tràn ngập ánh sáng tự nhiên. |
 |
Mặt bằng tầng một |
 |
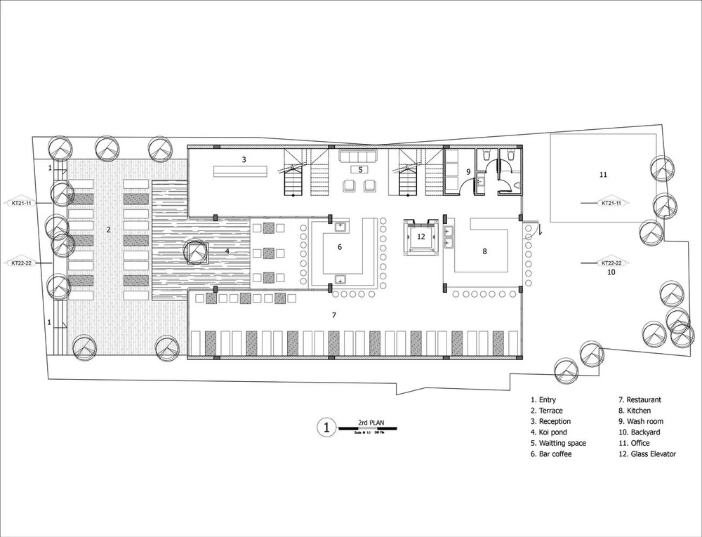
| Mặt bằng tầng hai |
 |
Mặt bằng tầng ba |
 |
Mặt bằng tầng bốn |
 |
Mặt bằng tầng năm |