Ngôi nhà hình lá sầu riêng ở cao nguyên M’nông

(PLO)- Hình tượng lá sầu riêng khô rơi chạm nhẹ lên mặt đất đã tạo cảm hứng cho KTS G+architects để thiết kế cấu trúc cho công trình nhà Gia Nghĩa.

Nhà Gia Nghĩa là ngôi nhà dành cho một gia đình trẻ từ miền Trung vào Đắk Nông lập nghiệp. Ngôi nhà này nằm trên thế đất trên đồi thuộc cao nguyên M’nông sát bìa rừng tỉnh Đắk Nông.

KTS G+architects cho biết khi nhận thiết kế ngôi nhà, từ khu đất KTS nhìn xuống thung lũng đã cuốn hút bởi vẻ đẹp thiên nhiên núi rừng nơi đây.

Do đó, toàn bộ mọi góc nhìn của ngôi nhà KTS đều thiết kế tập trung về phía thung lũng, nơi có thể nhìn thấy mây giăng mỗi buổi sớm hay bầu trời cao nguyên trong vắt, đầy ánh sao vào buổi đêm.

Ở nơi đây, chủ nhà sẽ cảm nhận được thời gian như dừng lại trong sự tĩnh lặng của không gian.

ngoi-nha-hinh-la-sau-rieng-1

Nhà Gia Nghĩa nằm trên thế đất của vùng cao nguyên M'nông, thuộc tỉnh Đắk Nông.

ngoi-nha-hinh-la-sau-rieng-3

Thiên nhiên xung quanh nhà Gia Nghĩa hoang sơ nhưng không kém phần hùng vĩ của vùng núi rừng.

Công trình cấu trúc theo kiểu nhà sàn, gầm nhà dùng làm nhà kho. KTS G+architects thiết kế những bậc thềm dẫn lên không gian ở.

Không gian ở được trải dài trên tầng cao. Một nửa ở cửa chính là không gian sinh hoạt chung, nửa còn lại dành cho những khu vực riêng tư hơn.

ngoi-nha-hinh-la-sau-rieng-5

KTS G+architects thiết kế thêm cầu thang dẫn lên không gian để ở của chủ nhà.

Từ hình tượng của lá sầu riêng khô rơi chạm nhẹ lên mặt đất đã tạo cảm hứng cho KTS G+architects thiết kế cấu trúc cho công trình.

Một ngôi nhà giản dị cấu trúc theo kiểu nhà sàn được mở rộng với thiên nhiên với tấm mái rộng che phủ như nhà dài của người Ê Đê.

ngoi-nha-hinh-la-sau-rieng-6

Nhà Gia Nghĩa vào ban đêm.

ngoi-nha-hinh-la-sau-rieng-7

Nhìn phần mái của ngôi nhà có cấu trúc như kiểu nhà sàn ở vùng Tây Nguyên.

ngoi-nha-hinh-la-sau-rieng-8

Khoảng hiên nhà được mở rộng bằng những đoạn thiết kế vạt xéo gấp nếp.

ngoi-nha-hinh-la-sau-rieng-9

Không gian tiếp cận giữa thiên nhiên và không gian bên trong nhà là không gian phần hiên nhà.

Hệ cửa hai lớp gồm lớp lam gỗ và lớp kính chủ động đóng mở phù hợp với điều kiện khí hậu cao nguyên. Không gian tiếp cận trong nhà và thiên nhiên bên ngoài là khoảng hiên nhà được mở rộng bất ngờ từ những đoạn vạt xéo gấp nếp.

Qua đó làm tăng cảm xúc của con người khi ngồi dưới mái hiên cao, rộng để thưởng thức bức tranh tuyệt đẹp của thiên nhiên.

ngoi-nha-hinh-la-sau-rieng-10

Chủ nhà có thể ngồi thư giãn ở phần mái hiên, vừa phơi mình giữa ánh bình minh vừa tận hưởng cảm giác lành lạnh của những làn sương.

ngoi-nha-hinh-la-sau-rieng-11

Phần mái này của ngôi nhà được thiết kế tương tự như kiểu nhà dài của người Ê Đê.

ngoi-nha-hinh-la-sau-rieng-12

Men theo lối cầu thang là mảng cây xanh thân thuộc.

ngoi-nha-hinh-la-sau-rieng-13

Ngôi nhà Gia Nghĩa có hệ cửa hai lớp.

ngoi-nha-hinh-la-sau-rieng-14

Gồm lớp lam gỗ và lớp kính chủ động đóng mở phù hợp với điều kiện khí hậu cao nguyên.

ngoi-nha-hinh-la-sau-rieng-15

Nội thất nhà Gia Nghĩa đơn giản, ấm áp, rộng mở nhưng không thiếu vẻ tôn nghiêm. Nội thất đơn giản được gia công tại địa phương phù hợp với nhu cầu của một gia đình trẻ với lối sống giản dị.

Những vật liệu địa phương như đá xây, gỗ cây cà phê, gỗ cũ đã qua sử dụng được tái sử dụng tăng thêm hồn cho chính ngôi nhà.

Ngôi nhà là nơi gia chủ tìm thấy sự an nhiên.

ngoi-nha-hinh-la-sau-rieng-16

Nội thất trong ngôi nhà đều gần gũi, chủ yếu từ các vật liệu của địa phương sẵn có.

ngoi-nha-hinh-la-sau-rieng-17
ngoi-nha-hinh-la-sau-rieng-19

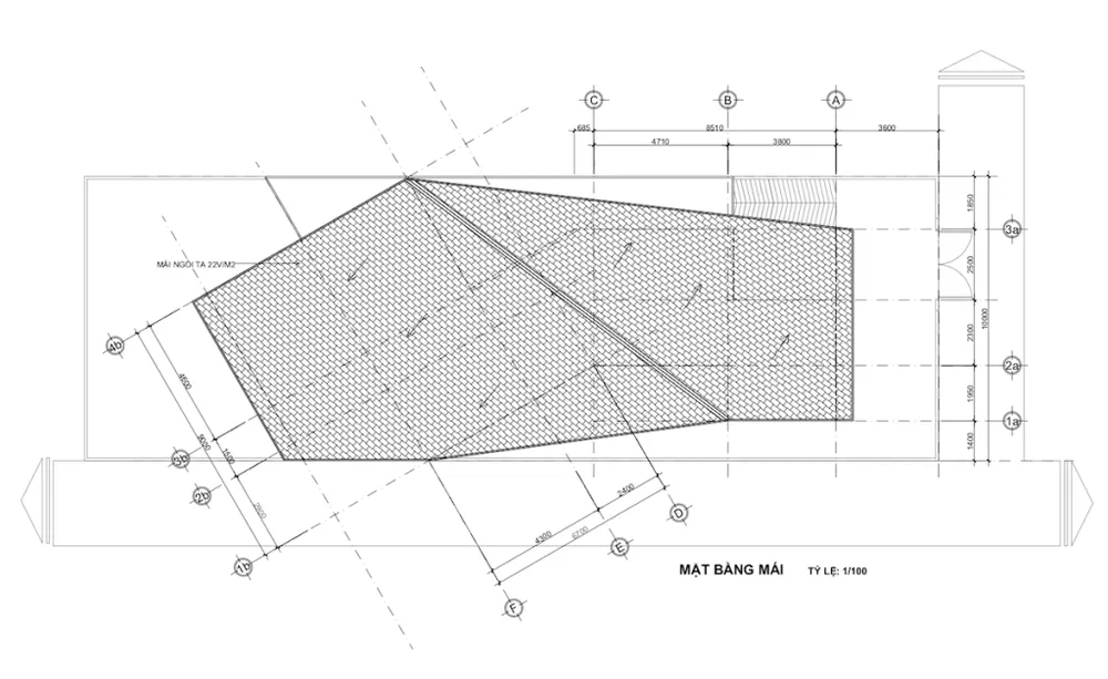
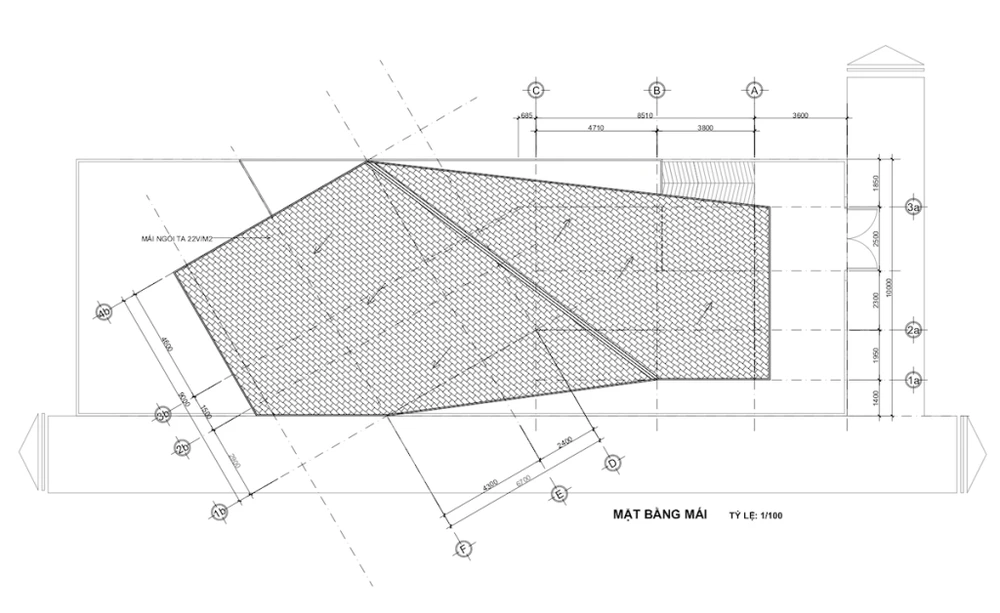
Mặt bằng mái.

ngoi-nha-hinh-la-sau-rieng-20

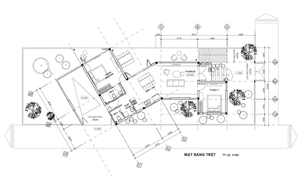
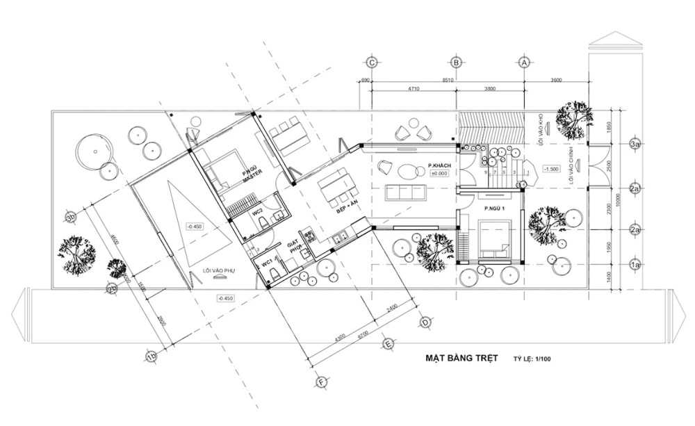
Mặt bằng trệt.

ngoi-nha-hinh-la-sau-rieng-21

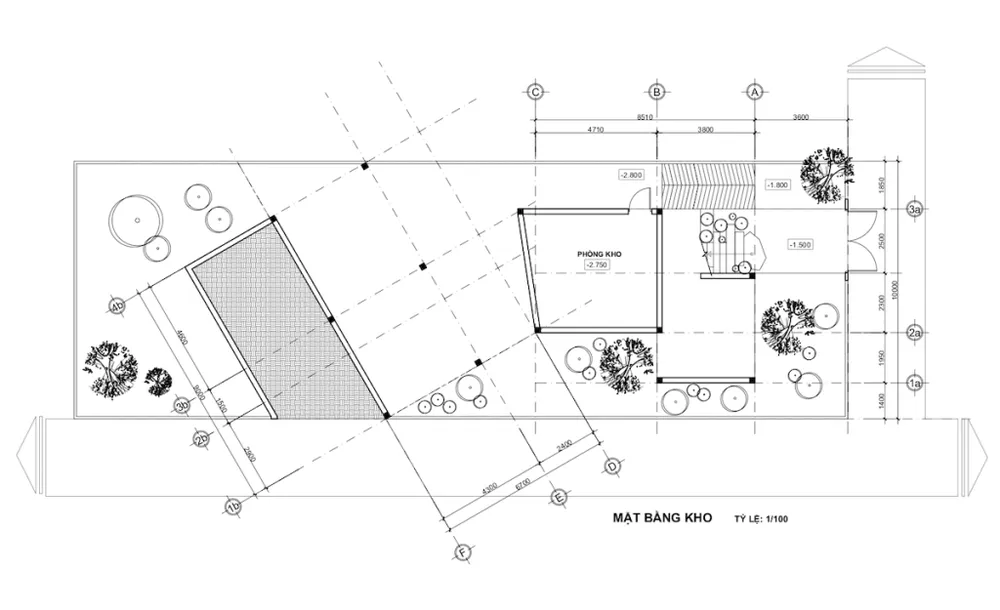
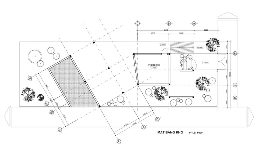
Mặt bằng kho.

Đừng bỏ lỡ

Video đang xem nhiều

Đọc thêm