Nhà 2 tầng bọc tôn siêu lạ ở Hải Dương

(PLO)- Ngôi nhà có diện tích sàn 75 m2 đủ đáp ứng nhu cầu cho gia đình bốn người.

Trên mảnh đất có diện tích 42 m2 tại tỉnh Hải Dương, KTS H&P Architects đã xây dựng ngôi nhà gạch hai tầng với vật liệu chủ đạo là thép, gạch và tre.

Ngôi nhà có ba phần chính gồm bộ khung chịu lực; hệ bao che hai lớp và phần hoàn thiện. Cụm các ngôi nhà được bố cục, ghép với nhau theo nhiều cách sẽ tạo nên một quần cư yên bình với những khoảng không gian mở liên hoàn dành cho tất cả mọi người.

H&P Architects chia sẻ, nhà HOUSE - Human's Optional USE có nghĩa là cách sử dụng tùy chọn của con người.

nha-bao-boc-bang-ton-2

Ngôi nhà có tổng diện tích sàn chỉ 71 m2 tọa lạc tại tỉnh Hải Dương.

nha-bao-boc-bang-ton-3

Bên ngoài ngôi nhà bao bọc bởi lớp tôn sơn trắng.

nha-bao-boc-bang-ton-4

Xung quanh nhà, KTS thiết kế nhiều cây xanh tạo bóng mát cho nhà.

nha-bao-boc-bang-ton-5

Ngôi nhà có thể ứng dụng vào nhiều khu vực dễ bị tổn thương như nông thôn, vùng thiên tai lũ lụt, khu tái định cư và người có thu nhập thấp.

nha-bao-boc-bang-ton-7

Bộ khung chịu lực bao gồm cột và dầm dài 3 m, khung mái dốc bằng thép hộp (15x15cm) giúp dễ dàng phát triển thêm tầng.

Bộ khung cũng có thể nâng cao trụ móng thành dạng nhà sàn cho địa hình đồi núi hoặc xòe rộng phần nền thành dạng nhà nổi bằng nhiều thùng phuy phía dưới cho vùng sông nước.  

nha-bao-boc-bang-ton-8

Bên trong ngôi nhà cứng cáp bởi lớp gạch tường.

nha-bao-boc-bang-ton-9

Ngoài ra, ngôi nhà vững chãi nhờ bộ khung chịu lực gồm cột và dầm dài 3 m, khung mái dốc bằng thép hộp.

nha-bao-boc-bang-ton-10
nha-bao-boc-bang-ton-11

KTS thiết kế nhiều cửa mở thoáng ra thiên nhiên bên ngoài.

Hệ bao che hai lớp gồm tường bao, mái, cửa được xác định tùy theo từng vùng khác nhau với những loại vật liệu thân thiện và có sẵn ở địa phương như gạch đất nén, gạch không nung, gạch phế thải, thép hộp, tôn, lá,..

Các tấm thái dương năng trên mái sản sinh ra lượng điện nhiều gấp đôi lượng cần thiết cho các thiết bị điện thông dụng trong một nhà thông thường.

Số điện dư sẽ được tích trữ hoặc kinh doanh. Đỉnh mái có hệ thống phun nước để làm sạch và làm mát mái trong những ngày hè oi bức. Việc tái sử dụng nước sinh hoạt được đặc biệt chú trọng.

Những tấm thái dương trên mái sản sinh ra lượng điện nhiều gấp đôi, chủ nhà có thể dự trữ hoặc kinh doanh.

Đỉnh mái có hệ thống phun nước để làm sạch và làm mát mái trong những ngày hè oi bức. 

nha-bao-boc-bang-ton-12

Lối cầu thang dẫn lên tầng hai làm bằng thép hộp.

nha-bao-boc-bang-ton-13

Nội thất ngôi nhà luôn tràn ngập ánh sáng thoả sức nô đùa cho trẻ em.

nha-bao-boc-bang-ton-14

Phần hoàn thiện (gồm nền, sàn, thang, vách ngăn, đồ nội thất) được thực hiện tùy theo điều kiện và nhu cầu về diện tích ở của mỗi gia đình.

KTS cho hay, người sử dụng sẽ tham gia trực tiếp vào quá trình thi công ngôi nhà và họ sẽ chủ động ngăn chia các không gian theo nhu cầu của bản thân. Ngoài ra, họ cũng chính là lực lượng sản xuất ra các vật liệu (bao che & hoàn thiện) phù hợp với địa phương.

“Qua đó, góp phần tạo ra việc làm, hình thành nên những Tổ ấm khuyến khích phát triển năng lượng tái tạo (mái nhà là bề mặt lớn để chuyển hóa năng lượng mặt trời thành điện & thu gom nước mưa) và mang lại sự phát triển cân bằng sinh thái cũng như sự ổn định về kinh tế cho cộng đồng dân cư ở các khu vực dễ bị tổn thương.” – KTS chia sẻ.

nha-bao-boc-bang-ton-16

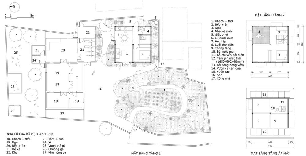
Mặt bằng tầng một.

nha-bao-boc-bang-ton-17

Mô hình nhà HOUSE.

nha-bao-boc-bang-ton-18

Đừng bỏ lỡ

Video đang xem nhiều

Đọc thêm