W house là ngôi nhà được xây dựng tại một khu đô thị mới tại TP Vĩnh Yên, tỉnh Vĩnh Phúc.
Với vị trí lô góc, khu đất xây dựng có ưu điểm tiếp cận với không gian bên ngoài một cách thuận lợi. Tuy nhiên, hướng mặt tiền theo chiều dài của đất là hướng chính tây.
Do đó, bài toán cho KTS Nguyễn Hiếu (Văn phòng kiến trúc NguyenHieu ARC) là làm sao tận dụng tốt ưu thế hai mặt tiền của ngôi nhà nhưng cũng giải quyết vấn đề nắng nóng trực tiếp từ bên ngoài.
Từ bên ngoài, các khối đặc sắp xếp đan xem khiến ta lầm tưởng không gian gò bó, thiếu ánh sáng

Thế nhưng, cách xử lý mặt bằng hợp lí, bố trí giếng trời theo hướng có lợi về vi khí hậu, sự khéo léo khi sắp xếp các mảng tường chéo chắn nắng đã giúp ngôi nhà luôn mát mẻ.
KTS đã tận dụng tối đa ưu thế, giảm thiểu bất lợi hướng Tây của khu đất để tạo nên một công trình kiến trúc ấn tượng.
Mặt tiền nhà có tông màu chủ đạo trắng, đen.
Khoảng sân lớn phía trước là khoảng lùi giúp hạn chế khói bụi, tiếng ồn
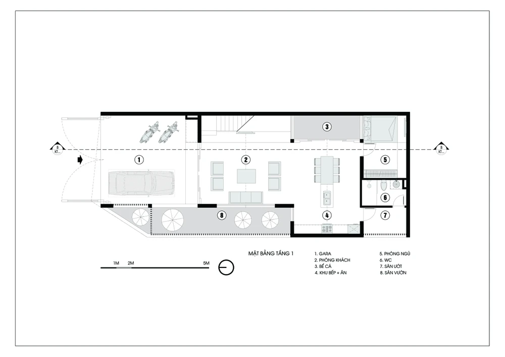
Ở tầng một, KTS Nguyễn Hiếu thiết kế một khoảng lùi lớn ở hướng Bắc vừa là sân để xe cũng như là khoảng đệm giữa không gian bên ngoài và phòng khách. Cách thiết kế này giúp giảm đi khói bụi cũng như tiếng ồn thường thấy khi công trình tiếp giáp với đường lớn.
Ở mọi vị trí ở tầng một đều có thể nhìn ra thác nước và đón những tia nắng hướng đông. Việc bố trí giếng trời ở vị trí hút gió hợp lí khiến tầng một luôn thoáng mát, gió luôn lưu thông qua thác nước và bể cá.
Không gian phòng khách đón được ánh nắng hoàng hôn qua những tán lá.
Bên phía hướng tây, các khoảng lùi nhỏ như sân ướt, cây xanh khiến không gian chức năng bên trong không bị ảnh hưởng bởi ánh nắng gắt.
Không gian bếp và phòng khách kết nối với nhau thông qua giếng trời.
Bếp được thiết kế với các nội thất hiện đại, sang trọng.
Đặc biệt, tất cả các không gian chức năng ở tầng một đều được kết nối với khoảng giếng trời ở phía đông của công trình.
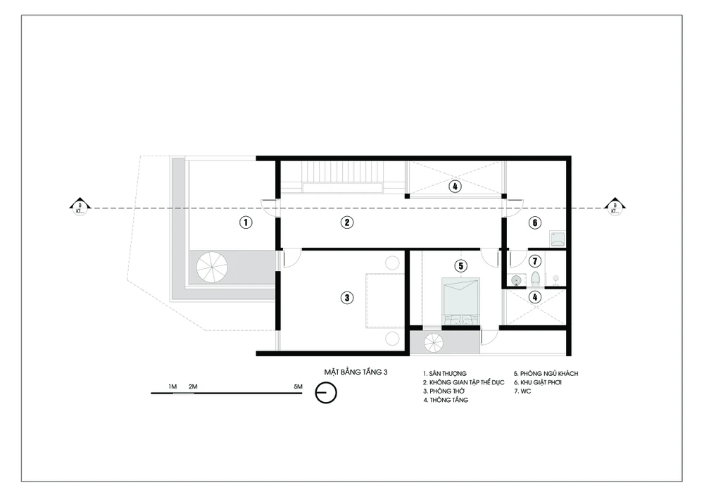
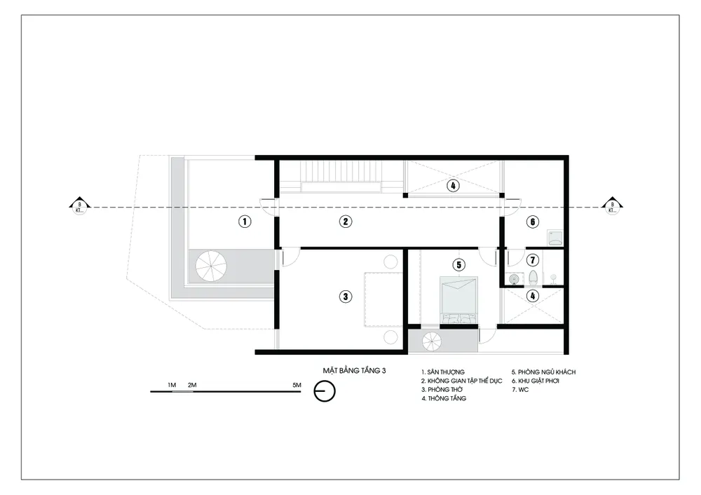
KTS thiết kế lối cầu thang lên tầng hai và tầng ba với lan can bằng kính.
Tầng hai, các phòng ngủ đều được lấy sáng theo hướng bắc và hướng đông. Cách chắn nắng của các phòng ngủ khá đặc biệt với mảng tường chéo được sắp xếp, tính toán một cách hợp lí.
Tất cả các không gian phụ như phòng thay đồ, nhà vệ sinh và hành lang tầng đều được che chắn bằng những khoảng tường đặc nhưng luôn tràn đầy ánh sáng tự nhiên với giếng trời xuyên suốt từ tầng một.
Khoảng tường chéo này và mảng kính ngăn cách không gian phòng ngủ với bên ngoài tạo thành một khe hút gió.
Cách thiết kế giúp giải phóng khí nóng bên ngoài tràn vào
Phòng ngủ master với view ra thác nước ở giếng trời. Ngoài yếu tố thẩm mĩ, sự lưu thông không khí ở hướng đông và khe thoáng ở hướng tây giúp căn phòng luôn thoáng đãng và mát mẻ.