Biệt thự ở TP Mỹ Tho gây ấn tượng mạnh bởi sự mộc mạc

(PLO)- Biệt thự 789 m² ở TP Mỹ Tho (Tiền Giang) gây ấn tượng mạnh với không gian sống yên tĩnh, từng chi tiết, đường nét rất mộc mạc nhưng vẫn thể hiện được chất riêng. 

H House là ngôi biệt thự nằm trên trục đường chính sôi động và sầm uất của TP Mỹ Tho, tỉnh Tiền Giang.

Đối với công trình này, KTS G+Architects mong muốn có không gian sống thuận tiện, đồng thời chủ nhà có những trải nghiệm với nhiều không gian khác nhau và những yếu tố thiên nhiên hấp dẫn.

biet-thu-tuyet-dep-o-my-tho-2

Đằng sau hàng rào bê tông đơn sơ, xuyên qua khu vườn rộng lớn phía trước là mặt tiền ẩn dưới bóng cây khiến ngôi biệt thự vô cùng kín đáo

biet-thu-tuyet-dep-o-my-tho-3

KTS sử dụng phương pháp thiết kế mái hiên lớn và cửa thông gió bằng gỗ giúp hạn chế ánh sáng mặt trời.

Gia chủ có thể mở cửa kính từ bên trong giúp tăng tối đa sự tương tác giữa thế giới bên trong và bên ngoài của môi trường sống này.

biet-thu-tuyet-dep-o-my-tho-4
biet-thu-tuyet-dep-o-my-tho-5

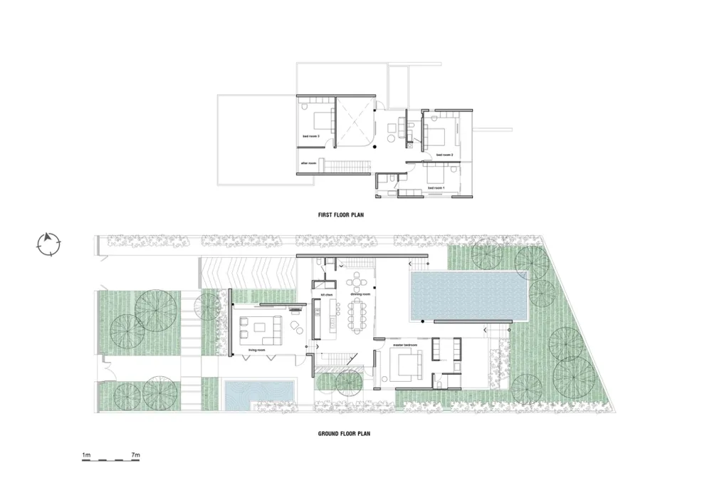
Mặt bằng mở rộng về nhiều hướng giúp ánh sáng và gió tự nhiên đi qua tất cả các phòng.

Các thành viên trong gia đình thường quây quần bên nhau để tham gia các hoạt động vui chơi giải trí.

Vì vậy, phòng bếp, phòng ăn, phòng sinh hoạt chung được thiết kế liên thông với bể bơi để các thành viên có thể gắn kết với nhau. 

Các vật liệu được giảm bớt có chủ đích để xác định yếu tố kiến trúc chỉ làm nền cho mọi hoạt động của con người và mang lại bầu không khí yên tĩnh.

biet-thu-tuyet-dep-o-my-tho-6

KTS cho biết biệt thự có những bức tường dài phản chiếu sự thay đổi của ánh nắng và bóng cây vào ban ngày. 

biet-thu-tuyet-dep-o-my-tho-7
biet-thu-tuyet-dep-o-my-tho-8

Một số tiểu cảnh như sân vườn, hồ bơi phục vụ các không gian chung và độc lập cho biệt thự.

biet-thu-tuyet-dep-o-my-tho-9

Không gian chủ đạo của ngôi nhà đều hướng ra bể bơi, nơi gia chủ thư giãn khi trở về nhà sau một ngày làm việc bận rộn.

biet-thu-tuyet-dep-o-my-tho-10

Không gian phòng bếp được bố trí dài, liên thông và kết nối với các khoảng không gian khác.

biet-thu-tuyet-dep-o-my-tho-11
biet-thu-tuyet-dep-o-my-tho-12
biet-thu-tuyet-dep-o-my-tho-13

Phía sau nhà là khoảng sân rộng và được trồng nhiều cây xanh.

biet-thu-tuyet-dep-o-my-tho-14
biet-thu-tuyet-dep-o-my-tho-15
biet-thu-tuyet-dep-o-my-tho-16
biet-thu-tuyet-dep-o-my-tho-17
biet-thu-tuyet-dep-o-my-tho-18

Đừng bỏ lỡ

Video đang xem nhiều

Đọc thêm