Cải tạo nhà phố bằng cách mạnh dạn cắt nhà làm 2

(PLO)- KTS THIA architecture mạnh dạn cắt ngôi nhà ra thành hai khu chức năng, kết nối với nhau bằng cây cầu và khoảng thông tầng lớn.

KG house là ngôi nhà sau cải tạo của đôi vợ chồng trẻ, tọa lạc tại TP Rạch Giá, tỉnh Kiên Giang.

Khi tiếp cận với công trình cải tạo, KTS T H I A architecture cho biết: “Chúng tôi nhận thấy ngôi nhà thiếu ánh sáng và thông gió cũng như việc bài trí các chức năng ở trong ngôi nhà chưa khai thác được yếu tố tự nhiên. Chúng tôi mạnh dạn cắt ngôi nhà ra thành hai khu với các chức năng (hai hình hộp chữ nhật), kết nối hai khu bằng "cây cầu" và khoảng thông tầng lớn."

KTS cho hay, khó khăn nhất của một công trình cải tạo là khi hệ kết cấu bộ khung ngôi nhà đã cố định. Tuy nhiên, nếu xử lý khéo léo công trình sẽ tạo nên vẻ đẹp hoàn toàn khác với ngôi nhà cũ.

cai-tao-nha-pho-2

KG house sau cải tạo có vẻ đẹp hiện đại và thông thoáng hơn.

cai-tao-nha-pho-3

KTS cho biết, hệ lam gỗ, cây xanh, thông tầng với mái lấy sáng giúp không gian của ngôi nhà có ánh sáng đẹp hơn.

cai-tao-nha-pho-4

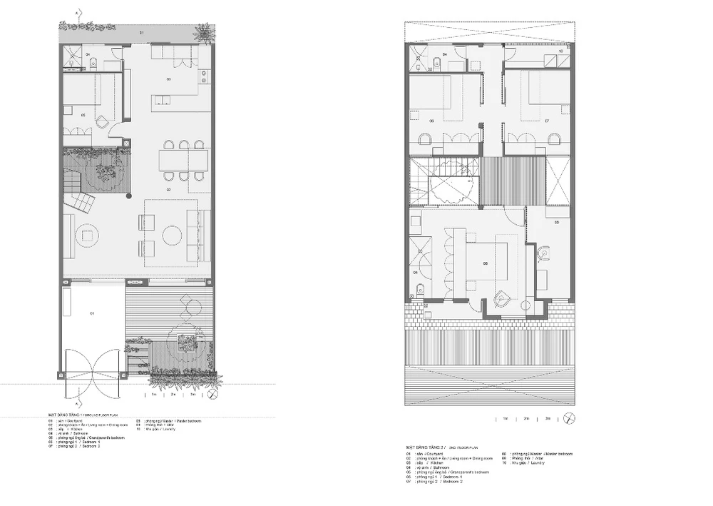
Ngôi nhà được chia làm hai khu chức năng.

Tầng một chủ yếu được bố trí các không gian phòng khách, bếp ăn và phòng ngủ. Các không gian phòng khách, bếp và phòng ăn đều hướng ra sân trong.

KTS chừa một khoảng sân vườn phía trước và mái hiên có thể là nơi tiếp khách và thư giãn. Các không gian liên thông không vách che với điểm nhấn là trần gỗ tạo nên sự ấm cúng, gần gũi.

Phòng ngủ hướng nhìn ra sân trong sẽ giúp cho người già cảm thấy thư giãn và yên tĩnh.

cai-tao-nha-pho-5

Mái hiên cùng khoảng sân vườn trước nhà là nơi tiếp khách và thư giãn của gia chủ.

cai-tao-nha-pho-6

Trần nhà mang dáng vóc của hệ lam bằng gỗ.

cai-tao-nha-pho-7

Gian phòng khách liên kết với phòng ăn và phòng bếp.

cai-tao-nha-pho-8

Từ nội thất đến cách thiết kế đều đơn giản nhưng đầy đủ tiện nghi.

Tầng hai là nơi bố trí các phòng ngủ master và phòng ngủ con. Các phòng ngủ gắn kết với nhau bởi "cây cầu", nơi mà nắng, gió, cây xanh xuất hiện. Từ các phòng ngủ có thể tận hưởng được thiên nhiên.

KTS cũng bố trí một phòng thờ nhỏ với hệ lam gỗ và ánh sáng xuyên qua.

Về hình thức bên ngoài KTS giữ lại để phù hợp với kiến trúc toàn khu. KTS còn  thêm hệ lam che nắng và mưa tạt thẳng vào không gian bên trong nhà.

cai-tao-nha-pho-9

Cầu thang dẫn lên tầng hai, bên dưới trồng hoa và cây cối.

cai-tao-nha-pho-10

Khoảng thông tầng mang lại ánh sáng cho ngôi nhà.

cai-tao-nha-pho-11

Tầng hai có các phòng ngủ master và phòng ngủ con. Các phòng ngủ liên kết với nhau bởi "cây cầu"

cai-tao-nha-pho-12

Mỗi không gian phòng ngủ đều hướng đến khoảng thông tầng và mảng xanh.

cai-tao-nha-pho-14

Phòng ngủ đầy gió trời thông qua cửa sổ thông thoáng.

cai-tao-nha-pho-15

Nhiều lam chắn làm điểm nhấn cho tầng hai.

cai-tao-nha-pho-16
cai-tao-nha-pho-17

Một phòng thờ nhỏ với thiết kế nổi bật là hệ lam gỗ, vị trí này có nhiều ánh sáng xuyên qua.

cai-tao-nha-pho-18

Đừng bỏ lỡ

Video đang xem nhiều

Đọc thêm