Độc đáo ý tưởng nhà tình thương chỉ với 50 triệu

(PLO)- CTA | Creative Architects đã đạt giải nhì cuộc thi "Sáng kiến vì cộng đồng" năm 2020 với sáng kiến mô hình nhà tình thương kinh phí thấp.

KTS CTA | Creative Architects chia sẻ mục đích ban đầu thiết kế mô hình nhà tình thương xuất phát là một mạnh thường quân có mong muốn nhân rộng mô hình nhà ở tình thương ở vùng Tây Nam Bộ.

Mấu chốt của nhà tình thương là nhằm giải quyết được vấn đề kinh phí, thời gian và phương thức xây dựng nhanh chóng nhưng vẫn đảm bảo nhu cầu thiết yếu, tạo ra hình thái kiến trúc địa phương.

Sáng kiến này sẽ giúp hoàn thành nhà tình thương chỉ với 50 triệu đồng.

nha-tinh-thuong-gia-re-2

Mô hình nhà tình thương với kinh phí thấp.

nha-tinh-thuong-gia-re-3

KTS lên ý tưởng kiến trúc cảnh quan ngôi nhà hòa lẫn vào cảnh quan vườn tược xung quanh cũng giúp giữ được cảm giác thân thiện, gần gũi .

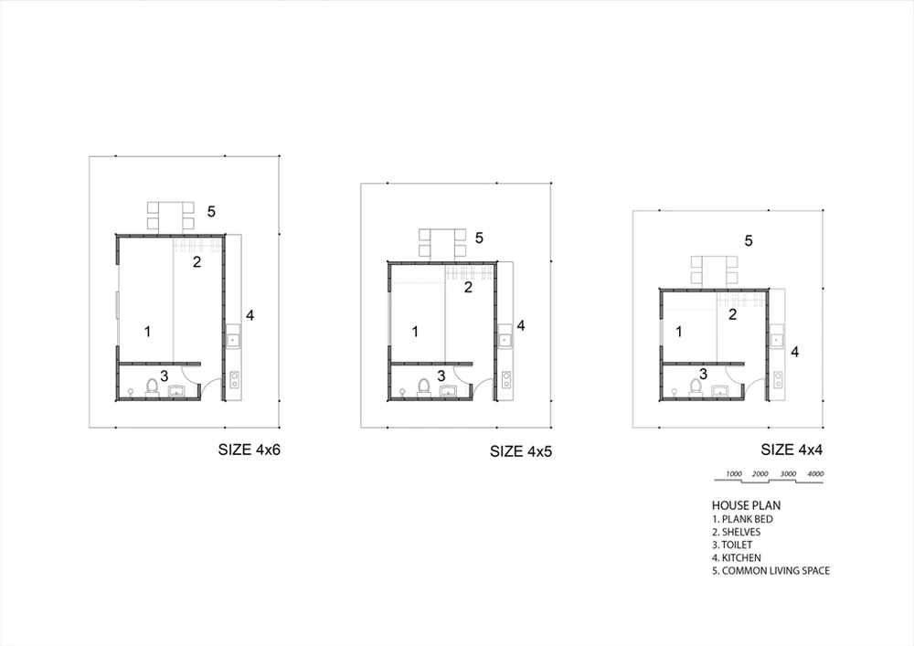
Mô hình nhà ở với kích thước 4 m x 4 m cơ bản, đảm bảo không gian sống tối thiểu. Việc tiết kiệm thời gian, nhân lực do phương pháp thi công cũng là một yếu tố quan trọng. Diện tích nhà ở có thể tăng theo số người sử dụng.

KTS bố trí các không gian đặc, rỗng, phù hợp với công năng sử dụng, cùng hệ cây xanh bao bọc giúp ngôi nhà thông thoáng, giảm nhiệt, hạn chế sử dụng năng lượng cho chiếu sáng, làm mát.

nha-tinh-thuong-gia-re-4

Hình thức kiến trúc hòa lẫn vào cảnh quan cũng giúp giữ được cảm giác thân thiện, gần gũi với nếp sống hay kiến trúc nông thôn địa phương.

Mô hình này còn tạo ra công ăn việc làm cho nhân công địa phương và có thể trở thành một nghề lâu dài cho nhóm nhân công chuyên xây dựng mô hình nhà ở này. Ngoài ra còn có thể nhân rộng ở các địa phương khác hay tạo các biến thể, phát triển thành trường học, nhà sinh hoạt cộng đồng...tùy nhu cầu sử dụng.

nha-tinh-thuong-gia-re-5

Mặt bằng tổng thể

nha-tinh-thuong-gia-re-6

Mặt cắt và mặt đứng của ý tưởng thiết kế nhà tình thương.

Đừng bỏ lỡ

Video đang xem nhiều

Đọc thêm