Ngôi nhà đa thế hệ đẹp miễn chê ở Đồng Nai

(PLO)- Ngôi nhà được hình thành trên nền móng của ngôi nhà cũ do người bố xây dựng lên trước đó và đang là nơi sinh hoạt của gia đình bốn thế hệ.

Ngôi nhà được hình thành trên nền móng của ngôi nhà cũ do người bố xây dựng lên trước đó và đang là nơi sinh hoạt của gia đình bốn thế hệ.
Pieces House có diện tích xây dựng 180 m2, tọa lạc tại tỉnh Đồng Nai do kiến trúc sư Ngô Tuấn Anh (Atelier Tas) thiết kế.
ngoi-nha-2.jpg
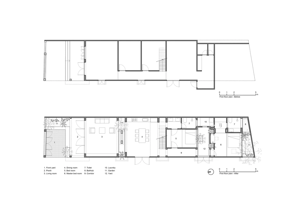
Ngôi nhà cũ đã không còn đáp ứng được nhu cầu sử dụng của gia đình. Không gian thiếu ánh sáng, thiếu thông gió tự nhiên dẫn đến môi trường sống khá ngột ngạt
ngoi-nha-3.jpg
ngoi-nha-4.jpg
Chủ nhà mong muốn cải tạo ngôi nhà thay vì xây mới để giữ lại kỷ niệm về người bố.
ngoi-nha-5.jpg
Hiện trạng là một ngôi nhà cấp 4 có một khoảng sân nhỏ phía trước, một khoảng sân lớn ở phía sau.
ngoi-nha-6.jpg
Kiến trúc sư đưa ra ý tưởng là cắt ngôi nhà ra thành từng mảng không gian, mỗi mảng không gian là một chức năng.
ngoi-nha-7.jpg
Không gian được biến đổi, có thêm cây xanh, ánh sáng, gió
ngoi-nha-8.jpg
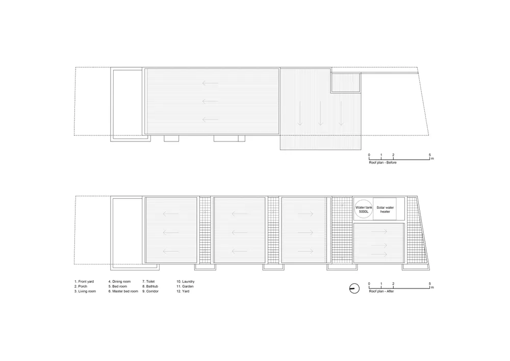
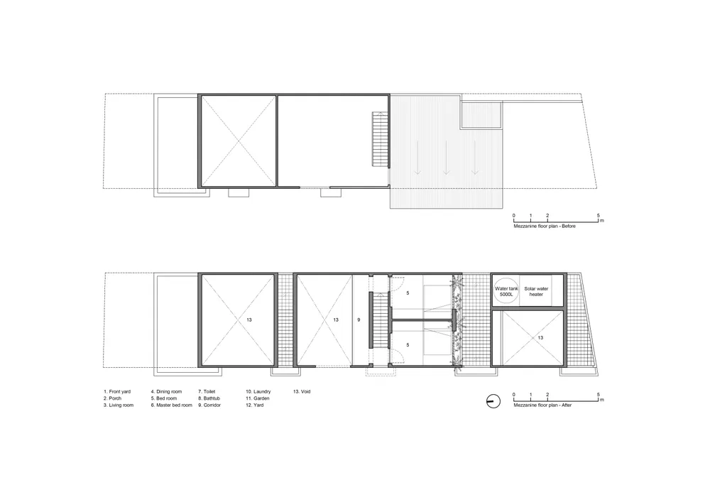
Xen kẽ là những mảng giếng trời kết hợp cây xanh.
ngoi-nha-9.jpg
Ngôi nhà có bốn mảng không gian sinh hoạt và năm mảng không gian giếng trời kèm cây xanh xen kẽ
ngoi-nha-10.jpg
Điều đó làm cho mọi không gian trong ngôi nhà đều có ánh sáng và thông gió tự nhiên.
ngoi-nha-11.jpg
Đồng thời cũng tạo nên các hướng nhìn ra sân vườn, không gian trở nên gần gũi hơn với thiên nhiên.
ngoi-nha-12.jpg
Về màu sắc và chi tiết hoàn thiện của ngôi nhà, kiến trúc sư sử dụng màu của chất liệu như đá tự nhiên, đá mài, bê tông thô...
ngoi-nha-13.jpg
Các màu sắc có gam màu trầm, các chi tiết hoài cổ để tạo ra cảm giác gần gũi.
ngoi-nha-14.jpg
Gió sẽ được chặn bởi mảng tường cao hơn rồi đi xuống nhà thông qua các khe hở của giếng trời.
ngoi-nha-16.jpg
Ngoài những mảng không gian được cải tạo, ngôi nhà còn có một mảng không gian xây mới trên khoảng sân sau với chức năng là phòng ngủ master.
ngoi-nha-17.jpg
Chiều cao của mỗi mảng không gian được kiến trúc sư nghiên cứu sao cho lấy được gió Nam từ phía sau vào bên trong ngôi nhà.
ngoi-nha-18.jpg
ngoi-nha-19.jpg
Phòng vệ sinh, phòng tắm thiết kế tiện lợi.
ngoi-nha-20.jpg
ngoi-nha-21.jpg
ngoi-nha-22.jpg

Đừng bỏ lỡ

Video đang xem nhiều

Đọc thêm