Ngôi nhà 'không thấy cửa ra vào' độc đáo giữa Sài Gòn

(PLO)- Nhờ thiết kế độc đáo của KTS MDA architecture, T house thu hút nhiều người hơn vì lối đi vào nhà được giấu sau mảng tường ốp gỗ.
0:00 / 0:00
0:00
  • Nam miền Bắc
  • Nữ miền Bắc
  • Nữ miền Nam
  • Nam miền Nam

T house nằm tại vị trí ngã ba trong một con hẻm tại Sài Gòn. KTS thiết kế hàng rào đặc ngăn cách giữa trong và ngoài để giảm tiếng ồn, đồng thời "giấu" được hệ cửa ra vào một cách khéo léo bằng mảng tường ốp gỗ.

KTS MDA architecture cho biết, thay vì thiết kế hai mặt tiền, KTS đã tạo thêm một mặt tiền thứ ba nơi tiếp giáp với ngôi nhà bên cạnh bằng một khoảng sân vườn.

Lúc này ngôi nhà được nằm trọn giữa hai khu vườn lệch nhau, khoảng sân này giải quyết cho công năng phía trong.

ngoi-nha-khong-thay-cua-ra-vao-o-Sai-Gon-1

Ngôi nhà trên mảnh đất hơn 100 m2 nằm ở ngã ba một con hẻm ở quận Tân Phú, TP.HCM là tổ ấm của một gia đình ba thế hệ.

ngoi-nha-khong-thay-cua-ra-vao-o-Sai-Gon-2

Chủ nhà muốn có một không gian sống ấn tượng, giảm bớt tiếng ồn xe cộ. Vì vậy, các KTS đã đưa ra giải pháp là kết hợp tường rào và cửa nhà thành một.

ngoi-nha-khong-thay-cua-ra-vao-o-Sai-Gon-3

Khi tường rào được mở ra mới biết được vị trí cửa ra vào ngôi nhà nằm ở đâu.

ngoi-nha-khong-thay-cua-ra-vao-o-Sai-Gon-4
ngoi-nha-khong-thay-cua-ra-vao-o-Sai-Gon-24

KTS sử dụng hàng rào bằng gỗ đặc giúp ngăn cách giữa bên trong và bên ngoài, giảm tiếng ồn và tạo nên nét độc đáo của ngôi nhà.

Theo KTS, T House thường được mọi người gọi là ngôi nhà không thấy cửa ra vào. Trong T house không có bất kỳ khoảng sân trong hay thông tầng nào. Thay vào đó các khoảng trống được đưa ra ngoài, không gian chung như phòng khách, bếp ăn và thư viện được hướng ra những khoảng sân vườn lớn hay ban công chung.

ngoi-nha-khong-thay-cua-ra-vao-o-Sai-Gon-5

Không gian sinh hoạt chung ở tầng một hướng ra khoảng sân vườn tạo ra khoảng mặt tiền thứ ba tạo độ thông thoáng cho ngôi nhà.

ngoi-nha-khong-thay-cua-ra-vao-o-Sai-Gon-6

KTS sử dụng cửa kính lớn trong suốt cho không gian phòng khách, bếp, khu vực ăn luôn tràn ngập ánh sáng và thoáng mát.

ngoi-nha-khong-thay-cua-ra-vao-o-Sai-Gon-7

Khu vực bàn ăn và bếp có view hướng ra khoảng sân vườn xanh mát.

ngoi-nha-khong-thay-cua-ra-vao-o-Sai-Gon-8

Giữa không gian phòng khách và bếp không có sự ngăn cách nào khiến cho không gian trở nên rộng rãi hơn.

ngoi-nha-khong-thay-cua-ra-vao-o-Sai-Gon-9

 Phòng bếp và phòng khách sử dụng nhiều đồ nội thất bằng chất liệu gỗ.

ngoi-nha-khong-thay-cua-ra-vao-o-Sai-Gon-10
ngoi-nha-khong-thay-cua-ra-vao-o-Sai-Gon-11

KTS còn thiết kế nhiều kệ tủ để trang trí cho không gian phòng khách.

ngoi-nha-khong-thay-cua-ra-vao-o-Sai-Gon-12

"Giao thông" trong nhà được KTS đưa về phía sau ngôi nhà.

ngoi-nha-khong-thay-cua-ra-vao-o-Sai-Gon-13

Những bậc thang được thiết kế thưa, khoảng hở lớn nhằm tạo sự thông thoáng, lưu thông không khí tốt hơn.

ngoi-nha-khong-thay-cua-ra-vao-o-Sai-Gon-14

Lối đi vào phòng ngủ là khu vực được xem là thư viện trong nhà.

ngoi-nha-khong-thay-cua-ra-vao-o-Sai-Gon-15

Phòng ngủ thiết kế đơn giản với ba tông màu như gỗ, trắng, xám. Nội thất thiết kế đơn giản, không bố trí quá nhiều đồ đạc.

ngoi-nha-khong-thay-cua-ra-vao-o-Sai-Gon-16

Những ô cửa lớn đón ánh sáng tự nhiên trực tiếp vào nhà.

ngoi-nha-khong-thay-cua-ra-vao-o-Sai-Gon-17

Không gian làm việc được bài trí tối giản nhất.

ngoi-nha-khong-thay-cua-ra-vao-o-Sai-Gon-18

Khu vực vệ sinh, KTS thiết kế lavabo trên mặt phẳng dài, bên cạnh đó còn có bồn tắm có view hướng ra sân vườn bên ngoài.

ngoi-nha-khong-thay-cua-ra-vao-o-Sai-Gon-19

Mặt bằng tổng thể

ngoi-nha-khong-thay-cua-ra-vao-o-Sai-Gon-20

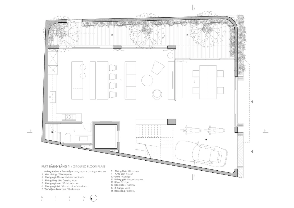
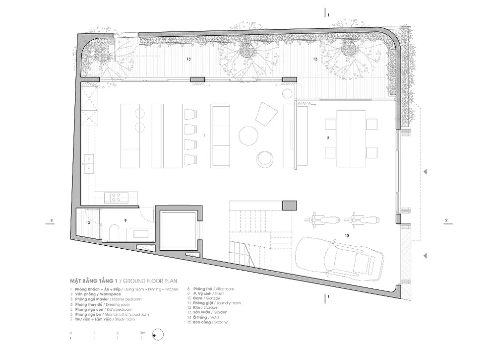
Mặt bằng tầng 1

ngoi-nha-khong-thay-cua-ra-vao-o-Sai-Gon-21

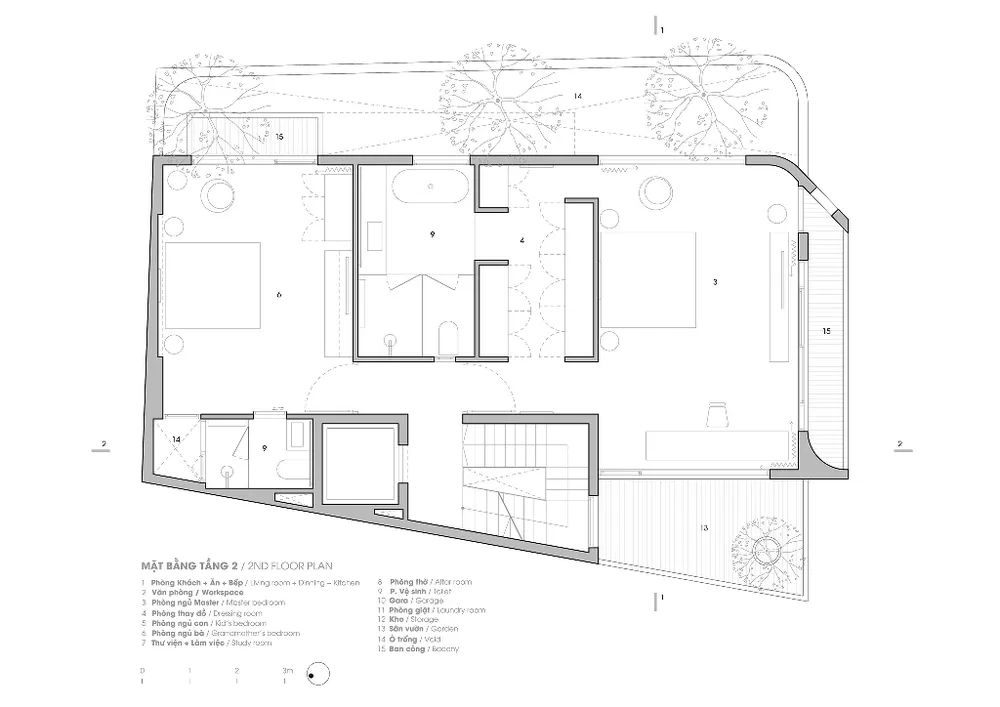
Mặt bằng tầng 2

ngoi-nha-khong-thay-cua-ra-vao-o-Sai-Gon-22

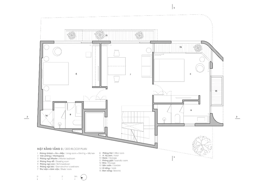
Mặt bằng tầng 3

ngoi-nha-khong-thay-cua-ra-vao-o-Sai-Gon-23

Mặt bằng sân thượng

Đừng bỏ lỡ

Video đang xem nhiều

Đọc thêm