Ngôi nhà ở Bến Tre mát lịm như điều hòa

(PLO)- Nhờ cách thiết kế hai lớp vỏ, công trình có mặt tiền hướng tây không chỉ tránh được nắng nóng mà còn tạo nên diện mạo thu hút. 

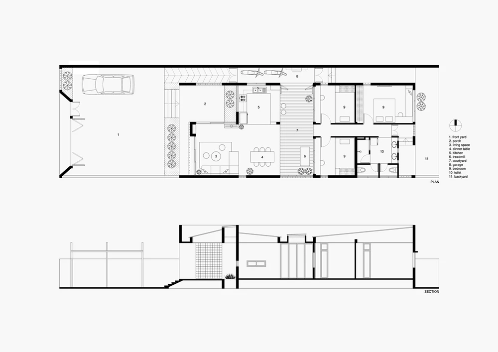
Small House 02 tọa lạc trên khu đất cách trung tâm thành phố Bến Tre khoảng 10 km, có diện tích 170 m² và mặt tiền hướng tây.

Ngôi nhà là tổ ấm của một gia đình trẻ với hai cậu con trai nhỏ. Gia chủ cho biết, sau giờ làm việc căng thẳng ở văn phòng, anh chị mong muốn ngôi nhà mình trở về là nơi có không gian ấm áp và yên tĩnh. Các thành viên có thể nhìn ngắm cây xanh, ánh nắng, mây trời trong chính không gian sống của mình.

Small House 02 có diện tích 170 m² ở Bến Tre.

Đặc biệt, gia chủ muốn tận dụng những khoảng thời gian hiếm hoi buổi chiều tối để gặp gỡ và trò chuyện cùng con cái, có thể chơi cùng con, học cùng con.

Vì thế, giải pháp bố cục không gian và tính kết nối được kiến trúc sư 90odesign ưu tiên hàng đầu.

Ngôi nhà có mặt tiền hướng tây nên kiến trúc sư sử dụng giải pháp thiết kế hai lớp vỏ: lớp gạch thông gió và lớp cửa kính lùa. 

Từ những tiêu chí trên kiến trúc sư 90odesign đã chọn phương án nhà một tầng, tách biệt khu sinh hoạt và khu nghỉ ngơi bằng khoảng sân giữa nhà.

Khoảng sân này là không gian kết nối các thành viên trong gia đình, có chức năng linh hoạt, vừa là nơi thư giãn, góc làm việc, tập thể dục, khu chơi đùa của con cái. 

Cửa chính xoay về hướng Bắc được tiếp cận bằng sảnh đệm lớn, nhằm tránh ánh nắng trực tiếp, sảnh này cũng là khoảng thư giãn cho khách hàng vào mỗi buổi chiều tối.

Cây xanh được đặt xen kẽ vào các không gian, giúp không khí thêm trong lành và mát mẻ.

Thiết kế cửa chính xoay về hướng bắc giúp gia chủ dễ dàng điều chỉnh ánh sáng và không khí vào bên trong.

Bên cạnh đó, kiến trúc sư 90odesign cho biết hệ thống thông gió tự nhiên được bố trí xuyên suốt công trình bằng giải pháp tường hai lớp: lớp gạch thông gió và lớp cửa kính lùa.

Giải pháp này vừa tránh nắng gắt vừa giúp đối lưu gió tốt và đem lại sự kín đáo cần thiết cho gia đình.

Bước vào nhà là không gian của phòng khách, bếp. Kết nối giữa phòng khách, bếp và ba phòng ngủ phía sau nhà là khoảng sân giữa nhà.

Hệ thống thông gió tự nhiên xuyên suốt công trình giúp đón nắng và gió vào ngôi nhà.

Phòng bếp được thiết kế hiện đại, đặc biệt là quầy bar nơi góc bếp đây là nơi ăn uống và thư giãn của chủ nhà.

Khoảng sân giữa nhà có diện tích vừa đủ, nơi đây cả gia đình có thể tập trung ăn uống, vui chơi cùng các thành viên trong nhà.

Điểm nổi bật của công trình là sử dụng gạch thông gió bằng đất nung, màu gỗ trầm trên nền sơn trắng kết hợp các mảng xanh.

Từ đó tạo nét hiện đại pha chút thô mộc hòa lẫn với thiên nhiên. Các chất cảm này đem lại cảm giác ấm áp và thư giãn cho gia đình.

Khi lựa chọn giải pháp thiết kế, kiến trúc sư 90odesign chia sẻ: “Thông qua công trình chúng tôi mong muốn dù sinh hoạt ở bất kỳ không gian nào. Các thành viên trong gia đình đều có thể nhìn thấy nhau và trò chuyện cùng nhau, giúp bầu không khí gia đình thêm ấm cúng. Đó cũng là “chất cảm” quan trọng nhất mà chúng tôi mong muốn đem lại cho khách hàng.”

Từ phòng khách, phòng bếp đến các khoảng sân đều được sử dụng bằng gạch thông gió.

Không gian phòng ngủ phía sau nhà kết nối với các không gian phía trước qua lớp kính cửa lùa lớn.

Phòng ngủ cũng đón nắng, đón gió vào thông qua khoảng sân giữa nhà.

Cây xanh góp phần cho không gian sống riêng tư trở nên mát mẻ và gần gũi với thiên nhiên hơn.

Khu vệ sinh bố trí gọn gàng, sạch sẽ.

Đừng bỏ lỡ

Video đang xem nhiều

Đọc thêm