Ngôi nhà ống có mặt tiền 2 lớp của gia đình 3 thế hệ

(PLO)- Ngôi nhà lấy cảm hứng từ những ngôi nhà cổ ở Hà Nội, sở hữu không gian đầy nắng và gió tự nhiên.
nha-ong-hai-lop-mat-tien-1

CH house là công trình nhà ống dài, hẹp với chiều rộng 4,2 m, chiều dài 35 m, tọa lạc ở TP Hà Nội.

nha-ong-hai-lop-mat-tien-2

Kiến trúc sư ODDO architects thiết kế mặt tiền của ngôi nhà hai lớp được làm từ các khối xi măng đục lỗ và lớp kính khung thép bên trong.

nha-ong-hai-lop-mat-tien-3

Mặt tiền hai lớp kết hợp với một lớp màu xanh lá cây tạo nên lớp phủ chống bụi và cho phép thông gió tự nhiên trong toàn bộ chiều dài của ngôi nhà.

nha-ong-hai-lop-mat-tien-4

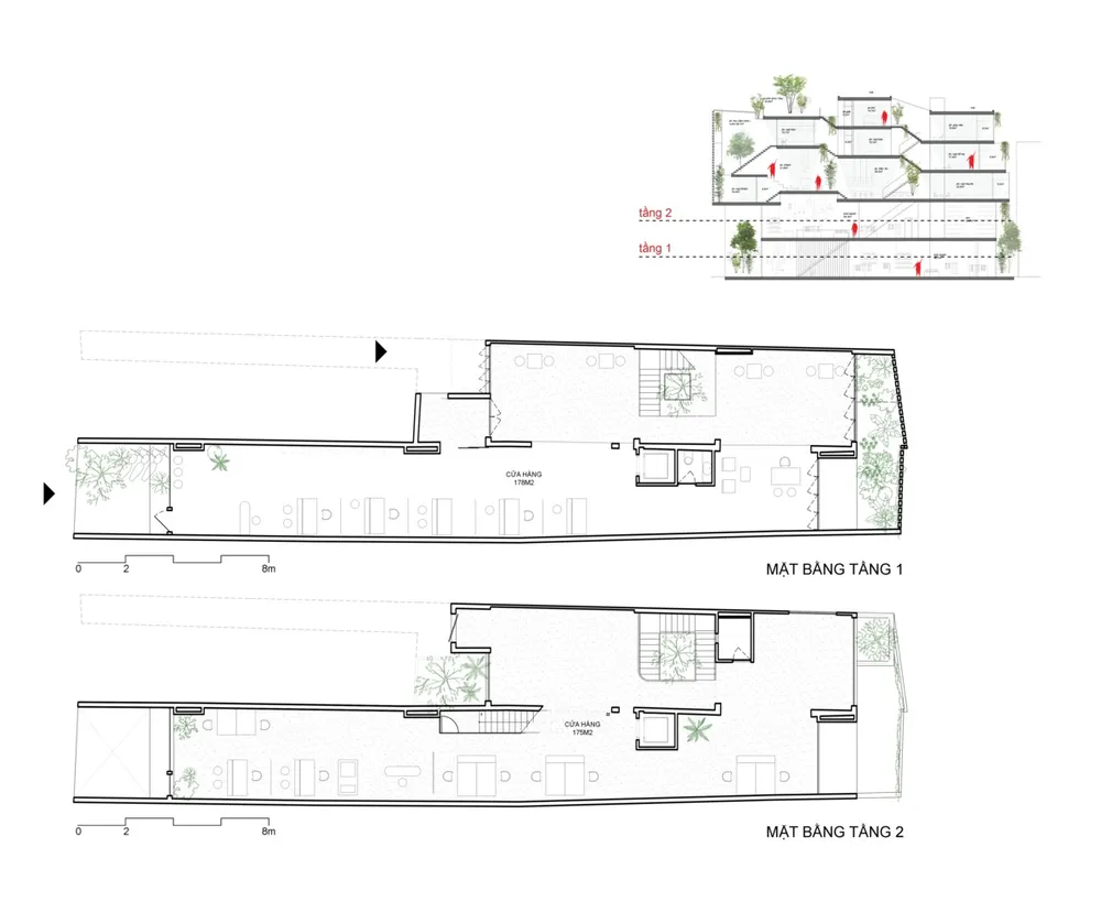
Chức năng của ngôi nhà được chia thành hai khu khu thương mại hai tầng và khu vực gia đình. 

nha-ong-hai-lop-mat-tien-5

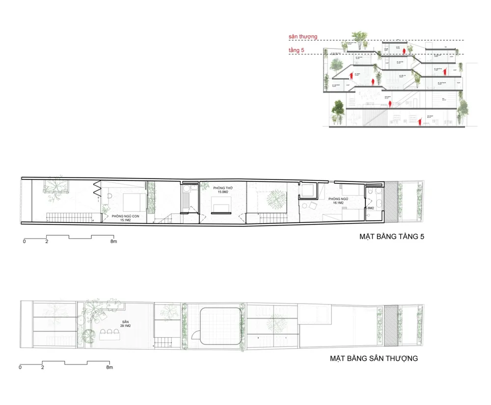
Các không gian chung của gia đình như phòng khách, bàn ăn, bếp... được bố trí ở các cấp độ khác nhau với độ cao trần.

nha-ong-hai-lop-mat-tien-6
nha-ong-hai-lop-mat-tien-7

Cách bố trí cấp độ khác nhau để tạo ra không gian mở liên tục

nha-ong-hai-lop-mat-tien-8

Thiết kế của kiến trúc sư làm cho không gian mở đúng cách và mang lại cảm giác rộng rãi bất ngờ dù ngôi nhà có chiều rộng hạn chế 

nha-ong-hai-lop-mat-tien-9

Cây xanh trong nhà là điều cần thiết, tạo ra một không gian sống yên bình để giải tỏa căng thẳng sau những giờ làm việc mệt mỏi.

nha-ong-hai-lop-mat-tien-11

Những khoảng trống ở khu vực cầu thang được tận dụng làm không gian đọc sách lý tưởng cho gia đình.

nha-ong-hai-lop-mat-tien-12

 Mặt tiền cũng được thiết kế như một cửa sổ lớn, cung cấp nhiều ánh sáng hơn để lấp đầy ngôi nhà

nha-ong-hai-lop-mat-tien-13

Chủ nhà yêu cầu không gian sống phải tách biệt với không gian ồn ào, khói bụi bên ngoài. Kiến trúc sư đã tạo ra không gian sống giúp gia chủ cảm thấy thoải mái và thư giãn.

nha-ong-hai-lop-mat-tien-14

Phòng ngủ vừa sáng vừa thoáng nhờ cách thiết kế các cấp độ khác nhau với độ cao trần.

nha-ong-hai-lop-mat-tien-15

Khoảng sân thượng rộng rãi.

nha-ong-hai-lop-mat-tien-18
nha-ong-hai-lop-mat-tien-16
nha-ong-hai-lop-mat-tien-17
nha-ong-hai-lop-mat-tien-18

Đừng bỏ lỡ

Video đang xem nhiều

Đọc thêm