Ngôi nhà thoáng và sáng trong con hẻm ở quận 10, TP.HCM

(PLO)- Mặc dù nằm trong một con hẻm chỉ với chiều rộng khoảng 2,2 m nhưng ngôi nhà vẫn mở ra được không gian sống thoáng mát và tràn ngập ánh sáng và cây xanh.

0:00 / 0:00
0:00
  • Nam miền Bắc
  • Nữ miền Bắc
  • Nữ miền Nam
  • Nam miền Nam

Nature Curtain house có diện tích 118 m², tọa lạc tại quận 10, TP.HCM và được thiết kế bởi kiến trúc sư Sense Design Studio. Phong cách thiết kế đặc trưng của ngôi nhà hướng tới sự đơn giản của hình khối, tông màu trung tính.

Toàn bộ chi tiết thiết kế từ trần thạch cao, đèn hắt, chi tiết vật dụng nội thất, cửa gỗ đụng trần, lan can gạch kính, lam sắt, tay vịn gỗ ... đều được chăm chút kĩ càng để không chỉ mang lại nét đẹp không gian kiến trúc mà còn sự tinh tế trong từng chi tiết nhỏ.

Ngoài ra, kiến trúc sư cho biết kết cấu cột được thiết kế ẩn trong tường giúp cho việc bố trí vật dụng trở nên dễ dàng hơn. Tuy diện tích nhà khá nhỏ nhưng vẫn tạo được cảm giác rộng rãi trong không gian cùng các mảng tường phẳng và lớn.

ngoi-nha-1.jpg
Ngôi nhà nằm trong một con hẻm chỉ với chiều rộng khoảng 2,2 m ở khu vực đông dân cư và hoạt động tấp nập với khu chợ đồ cũ với gần 20 năm hoạt động.
ngoi-nha-2.jpg
Nhìn từ mặt tiền ngôi nhà, các mảng lam bê tông ngang sắp xếp lộn xộn kết hợp với mảng xanh xen kẽ.
ngoi-nha-3.jpg
Cách sắp xếp này tựa hình ảnh một tấm rèm tự nhiên lớn che chắn không gian bên trong khỏi những tác động bên ngoài.
Kiến trúc sư thiết kế khung cửa chính bằng sắt và những tấm sắt đục lỗ cùng màu giúp bên trong ngôi nhà dễ dàng kiểm soát được các hoạt động bên ngoài cửa.
Kiến trúc sư thiết kế khung cửa chính bằng sắt và những tấm sắt đục lỗ cùng màu giúp bên trong ngôi nhà dễ dàng kiểm soát được các hoạt động bên ngoài cửa.
ngoi-nha-5.jpg
Bước vào không gian bên trong là không gian mở của sân đệm, phòng khách, bếp.
ngoi-nha-6.jpg
Phòng bếp thiết kế tối giản với tông nội thất màu gỗ.
ngoi-nha-7.jpg
Trần phòng khách và sàn đều được sử dụng mặt vân bê tông nhằm tạo sự liên tục của thiết kế từ ngoài vào trong.
ngoi-nha-8.jpg
Các thiết kế của kiến trúc sư liên quan đến việc giải quyết tiếng ồn bên ngoài, ánh nhìn từ nhà hàng xóm đối diện.
ngoi-nha-9.jpg
Ngoài ra, thiết kế còn cung cấp ánh sáng tự nhiên, mảng xanh, sân chơi ngoài trời trở thành niềm cảm hứng mà nhóm thiết kế mang đến cho ngôi nhà.
ngoi-nha-10.jpg
Kết cấu sàn lệch tầng giúp không gian rộng hơn đồng thời việc di chuyển cầu thang lên các sàn cũng hợp lý hơn khi có các khoảng nghỉ bằng phẳng.
ngoi-nha-12.jpg
Khu vực giếng trời vừa điều hòa gió, vừa mang ánh sáng tự nhiên từ tầng mái xuống trệt và ánh sáng còn được phản chiếu qua các lan can gạch kính và cửa kính trượt.
ngoi-nha-13.jpg
Khoảng hở thang sắt cũng góp phần tạo nên các khe sáng tự nhiên xóa tan sự nhàm chán của không gian thông tầng.
ngoi-nha-14.jpg
Phòng ngủ tầng một và hai được bố trí ra khu vực trước nhà sau các mảng bê tông và cây xanh tự nhiên và được che chắn hoàn toàn khỏi các tác động ngoài nhà.
ngoi-nha-15.jpg
ngoi-nha-16.jpg
Phòng thay đồ và toilet được bố trí sau nhà nhưng vẫn tận hưởng được ánh sáng tự nhiên của giếng trời.
ngoi-nha-17.jpg
Ngôi nhà vẫn đầy đủ ánh sáng kể cả khi tắt hết toàn bộ ánh sáng nhân tạo, thay vào đó tiết kiệm điện.
ngoi-nha-18.jpg
Tầng ba là khu vực phòng thờ của gia đình, nhìn ra khu vực sân chơi kết hợp với các mảng xanh tạo không gian tươi mát.
ngoi-nha-19.jpg
Các mảng lam sắt sơn trắng cũng là điểm nhấn phá tan sự nhàm chán của không gian khi có nắng.
ngoi-nha-20.jpg
Khu vực sân chơi mát mẻ trong lành rất thích hợp để gia đình tụ họp với bạn bè vào các dịp lễ.
ngoi-nha-21.jpg
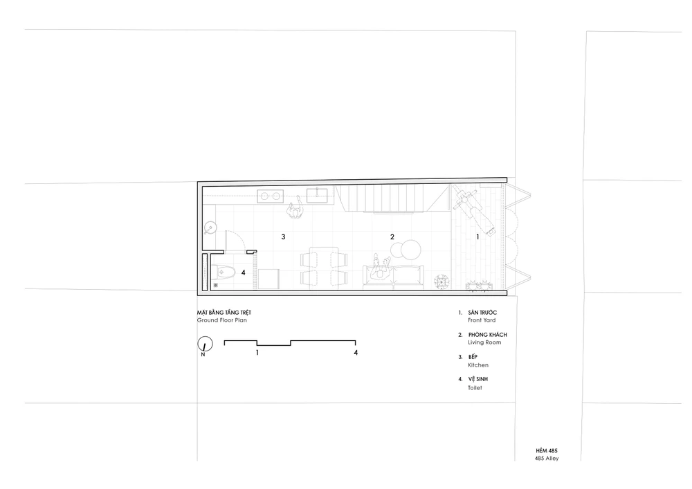
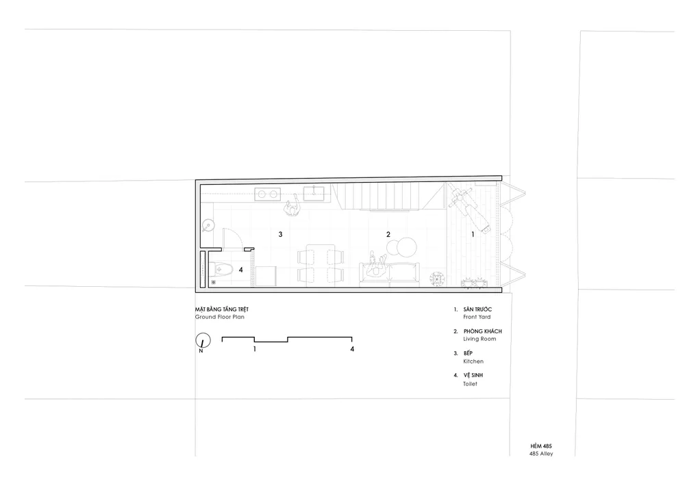
Mặt bằng tầng trệt
ngoi-nha-22.jpg
Mặt bằng tầng một
ngoi-nha-23.jpg
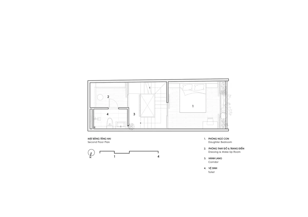
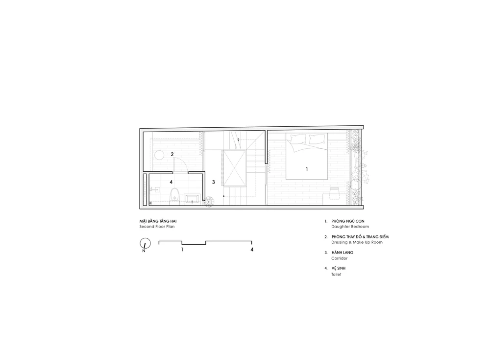
Mặt bằng tầng hai
ngoi-nha-24.jpg
Mặt bằng tầng ba
ngoi-nha-25.jpg
Mặt bằng mái

Đừng bỏ lỡ

Video đang xem nhiều

Đọc thêm