Ngôi nhà uốn lượn như mê cung của 1 nhà thiết kế thời trang

(PLO)- Không gian mở và những đường cong uốn lượn bên trong nhà là điểm nhấn nghệ thuật mà kiến trúc sư đã thiết kế.

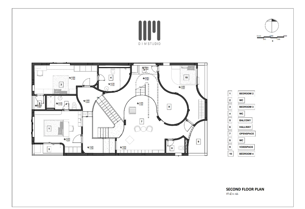
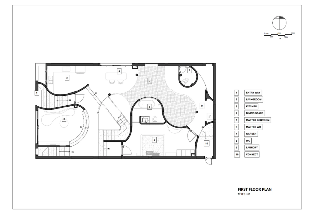
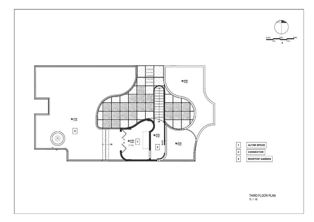
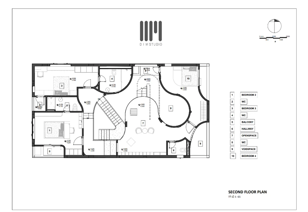
Hana House có diện tích 147 m², nằm trên khu đất ven sông trong một thành phố.

Bà Hương, chủ nhân của ngôi nhà cũng là một nhà thiết kế thời trang chia sẻ: “Đối với tôi, ngôi nhà là một tác phẩm nghệ thuật mà mọi người trong gia đình có thể trải nghiệm từng bước đi. Đó cũng là mục tiêu đặt ra khi thiết kế ngôi nhà”.

Dựa vào bối cảnh trên, kiến trúc sư (KTS) Dim Studio đã sử dụng một cấu trúc tương phản với các hình vuông đơn giản bao quanh bên ngoài trái ngược với các đường quanh co và cấu trúc lồng vào nhau bên trong nhà.

Với cách thiết kế này sẽ đáp ứng mong muốn ban đầu của gia chủ là tránh tương tác với không gian bên ngoài và tập trung vào không gian nội thất.

mau-nha-dep-2

Với tầm nhìn từ bên ngoài ngôi nhà như một chiếc hộp lớn, màu trắng tinh khiết, nổi bật và độc đáo. 

mau-nha-dep-3

Một lối vào với một cánh cổng lớn và dần dần thu hẹp đến cửa tạo ra cảm giác hẹp cho mọi người bước vào.

mau-nha-dep-4

Bước qua cánh cửa là một không gian hoàn toàn mở. 

Phòng khách được bố trí ngay lối đi vào nhà.

mau-nha-dep-5

Không gian nhà bếp, không gian sinh hoạt và nghỉ ngơi được kết nối thông qua hành lang, cầu thang thẳng uốn lượn ngay với không gian.

mau-nha-dep-6

Theo KTS, phần rỗng là lá phổi của ngôi nhà, nơi tập trung ánh sáng, gió và cây cối.

mau-nha-dep-7

Lõi này là một không gian mở, kết nối các không gian sử dụng nhà bếp, phòng khách và làm mờ ranh giới giữa bên trong và bên ngoài. 

mau-nha-dep-8
mau-nha-dep-9

KTS bố trí các không gian theo đường quanh co để tối đa hóa sự kết nối giữa bên trong và bên ngoài.

mau-nha-dep-10
mau-nha-dep-11
mau-nha-dep-12

Cấu trúc của ngôi nhà bao gồm các tương phản khác nhau giữa hình vuông - tròn; cong - thẳng.

mau-nha-dep-13

Một góc cong uốn lượn tại không gian phòng ngủ.

mau-nha-dep-14

Phòng ngủ lớn được bố trí ở tầng một.

mau-nha-dep-15

Khu vực tắm có view lạ, hướng ra sân vườn ở giữa nhà.

mau-nha-dep-16

Nhìn từ dưới lên cao, cầu thang treo lơ lửng giữa các bức tường uốn lượn, đây được xem là sợi dây kết nối các không gian nhà.

mau-nha-dep-17

Một góc thư giãn, đọc sách trong nhà.

mau-nha-dep-19
mau-nha-dep-20

Dù ở góc nhìn nào, gia chủ đều cảm nhận được không gian xanh mát từ cây cối trong nhà.

mau-nha-dep-21
mau-nha-dep-22
mau-nha-dep-23

Đừng bỏ lỡ

Video đang xem nhiều

Đọc thêm