Ngôi nhà xanh lơ cho gia đình 3 người ở quận 8, TP.HCM

(PLO)- Kiến trúc sư tạo các điểm nhấn xanh trên nền trắng giúp cho ngôi nhà luôn trang nhã và tinh tế.
0:00 / 0:00
0:00
  • Nam miền Bắc
  • Nữ miền Bắc
  • Nữ miền Nam
  • Nam miền Nam

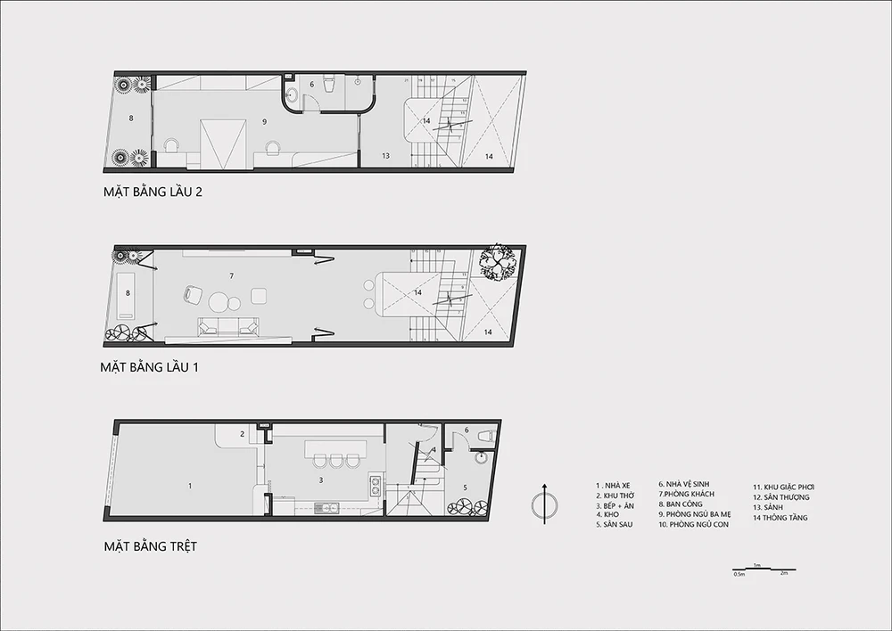
Dự án Nhà Xanh Lơ được xây dựng ở quận 8, TP.HCM. Ngôi nhà là tổ ấm của đôi vợ chồng trẻ và cậu con trai với diện tích khoảng 61 m2.

Ngôi nhà có ánh sáng vừa phải nhưng vẫn đảm bảo thông thoáng và tươi mát.

Chủ nhà yêu cầu có chỗ để xe ô tô trong nhà là một thách thức cho đội ngũ kiến trúc sư Story Architecture.

Ngoài ra, chủ nhà yêu cầu công trình có hai phòng ngủ , phòng khách, bếp và ăn, khu thờ, sân phơi sân thượng thư giãn nhưng chỉ xây một trệt hai lầu và sân thượng.

Sau khi xem xét kỹ nhu cầu sử dụng, kiến trúc sư thiết kế thêm một tầng để các không gian sử dụng có diện tích rộng hơn. Từ đó, đảm bảo được chất lượng cuộc sống của gia chủ.

Kiến trúc sư chọn giải pháp đưa cầu thang ra cuối nhà kết hợp với khoảng chừa thông thoáng 1 m tạo thành một giếng trời lớn, giúp lấy nắng và gió cho toàn bộ ngôi nhà.

Việc đưa cầu thang ra cuối nhà giúp cho mỗi tầng bố trí được một không gian chức năng có diện tích lớn. Mỗi tầng có một chức năng không gian riêng biệt.

Việc mở rộng thông tầng lầu một và nâng tầng trệt cao lên từ từ và nâng sân sau lên tạo ra một không gian chiếu nghỉ lớn. Khi chủ nhà di chuyển cầu thang từ tầng trệt lên lầu tạo một cảm giác rất gần và xóa bỏ sự ngăn cách không gian hai tầng.

Phòng khách phía trước và sau được dùng cửa kính xếp trượt có thể mở toang không gian liên kết với ban công và sảnh thang.

Kiến trúc sư không sơn hết ngôi nhà màu xanh mà chỉ tạo các điểm nhấn xanh trên nền trắng giúp cho ngôi nhà luôn trang nhã và tinh tế.

Kiến trúc sư đưa phòng khách lên tầng lầu một và mở rộng khu thông tầng để kết nối với tầng trệt dễ dàng. Tầng trệt dùng để xe ô tô, bếp ăn và có một khu thờ nhỏ.

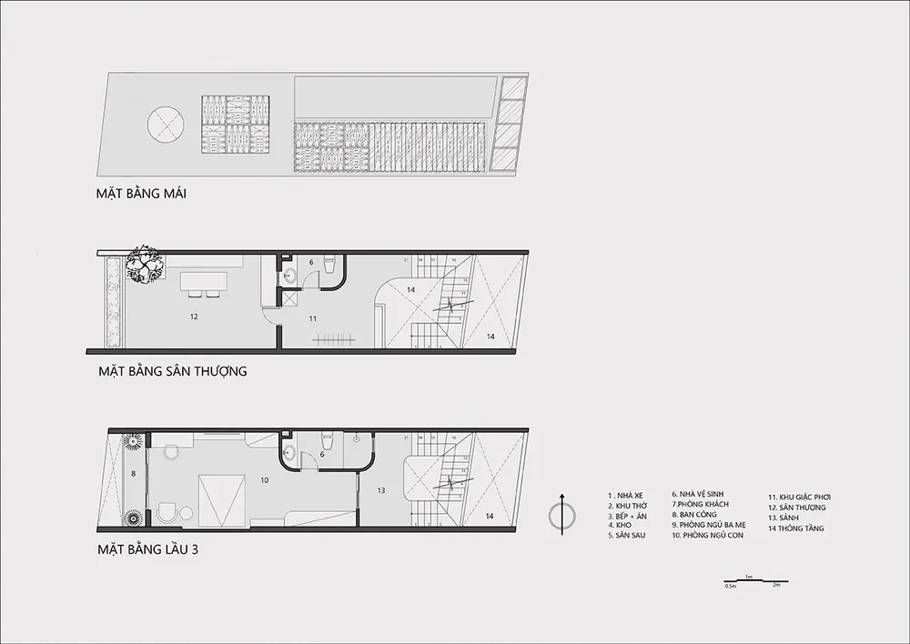
Lên tới lầu hai và ba là không gian phòng ngủ bố mẹ và con. Các chi tiết đường cong của cửa, tủ quần áo, khối nhà vệ sinh để tạo cảm giác nhẹ nhàng thư giãn.

Phía trước ban công của phòng con được rút ngắn lại có thể nhìn xuống ban công của phòng ba mẹ để tạo sự kết nối.

Sân thượng được bố trí khu giặt phơi nằm bên trong nhà nhưng có mái kính lấy nắng tiện và gió được lấy từ ô thông tầng sau nhà. Phía trước là khu thư giãn và có thể tổ chức tiệc nên bố trí thêm bếp nhỏ và bàn ăn với các ô trống nhiều hướng khác nhau.

Đừng bỏ lỡ

Video đang xem nhiều

Đọc thêm