![]() |
| Căn nhà một tầng có địa chỉ tại Kon Tum. |
![]() |
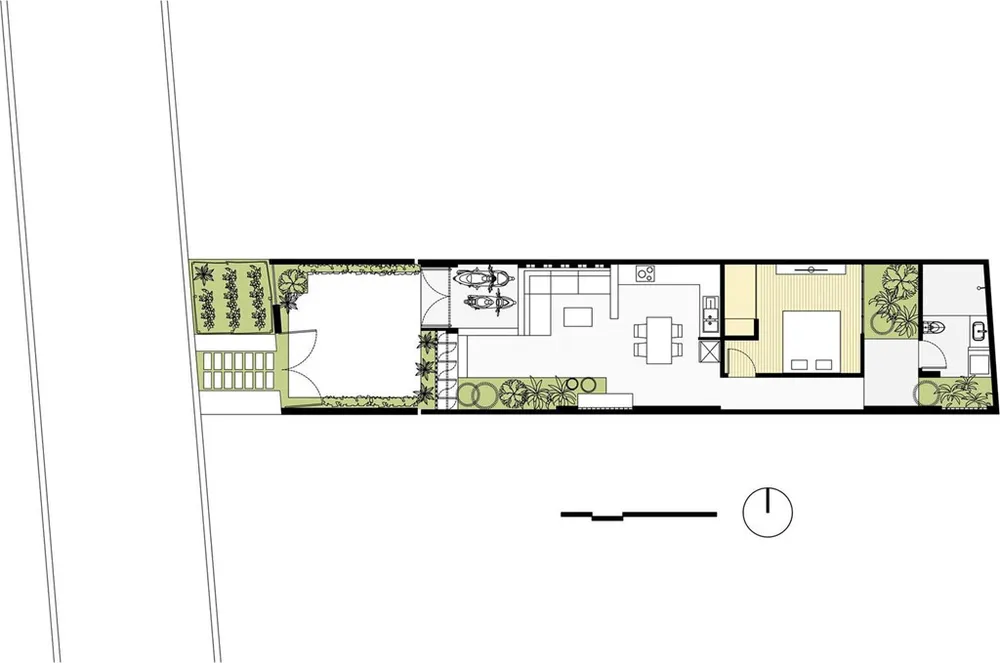
| Công trình xây trên diện tích đất rộng 5 m, sâu 23 m. |
![]() |
| Mặt tiền căn nhà gồm hai lớp, lớp ngoài là bức tường gạch lỗ và lớp trong là cửa kính khung thép. |
![]() |
| Trong nhà có rất nhiều khoảng lấy sáng tự nhiên và cây xanh. Với thiết kế lấy sáng tự nhiên tốt, căn nhà gần như không phải dùng đèn chiếu sáng vào ban ngày. |
![]() |
| Không gian chiếm phần lớn diện tích phía ngoài là phòng khách và phòng bếp. Phòng khách tạo cảm giác rất gần gũi với thiên nhiên. |
![]() |
| Chi tiết gạch lỗ được lặp lại nhiều lần trong thiết kế. |
![]() |
| Căn bếp được ngăn cách với phòng khách bằng một vách gỗ nhỏ. |
![]() |
| Căn hộ chỉ có một phòng ngủ. |
![]() |
| Hành lang dài nối khu vực sinh hoạt với sân sau và công trình phụ. |
![]() |
| Thiết kế giếng trời chạy độc đáo khiến tất cả phòng trong căn nhà đều đón được ánh sáng tự nhiên và có khoảng xanh trong tầm mắt. |
![]() |
| Phía sau nhà là không gian phơi quần áo và công trình phụ. |
![]() |
| Với đặc điểm không rộng nhưng lại rất dài của thửa đất, kiến trúc sư đã quyết định sắp xếp các không gian sống theo chiều sâu căn nhà bằng thiết kế độc đáo. |
![]() |












