Nhà phố 3 tầng có mặt tiền mở linh hoạt, chắn nắng ở Đà Nẵng

(PLO)- Thiết kế hệ lam gỗ ở mặt tiền nhà phố ba tầng giúp điều tiết ánh nắng và gió vào không gian sinh hoạt bên trong.

nha-pho-ba-tang-1.jpg
Da Nang Villa tọa lạc trong khu đô thị mới nằm giữa cầu Rồng và cầu Trần Thị Lý của TP Đà Nẵng.
Ngôi nhà phố ba tầng có diện tích xây dựng 250 m², là tổ ấm của đôi vợ chồng trẻ và hai con nhỏ.
Ngôi nhà phố ba tầng có diện tích xây dựng 250 m², là tổ ấm của đôi vợ chồng trẻ và hai con nhỏ.
nha-pho-ba-tang-3.jpg
Hệ thống che nắng bằng gỗ linh hoạt kết hợp với nhiều loại cây xanh tạo ra những chuyển động thú vị trong suốt cả ngày.
nha-pho-ba-tang-4.jpg
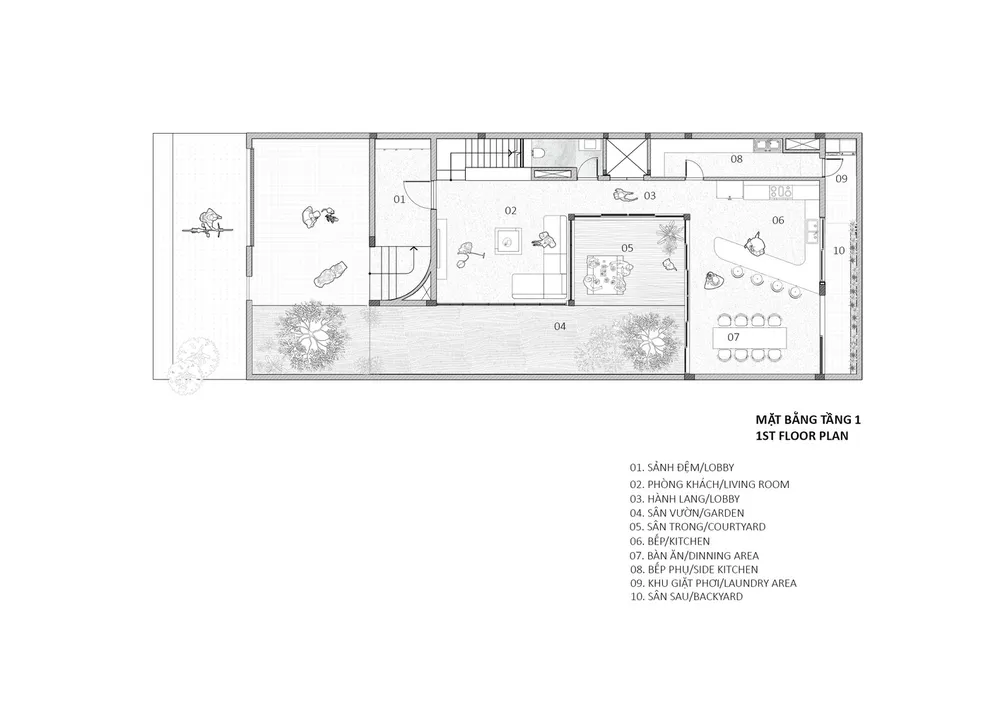
AD9 Architects đã thiết kế khối chức năng liên kết mọi hoạt động trong nhà và các khối phụ trợ.
nha-pho-ba-tang-5.jpg
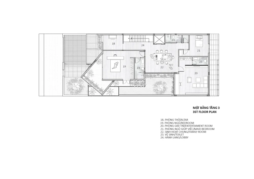
Các không gian sinh hoạt chung được thiết kế dạng mở, gần gũi với thiên nhiên, còn khu vực nghỉ ngơi đảm bảo thêm sự riêng tư và tĩnh lặng.
nha-pho-ba-tang-6.jpg
Kiến trúc sư bố trí các mảng xanh xung quanh để các không gian bên trong có thể kết nối trực tiếp với thiên nhiên.
nha-pho-ba-tang-7.jpg
Khu bàn ăn rộng thoáng và đầy đủ tiện nghi.
nha-pho-ba-tang-8.jpg
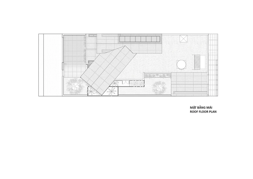
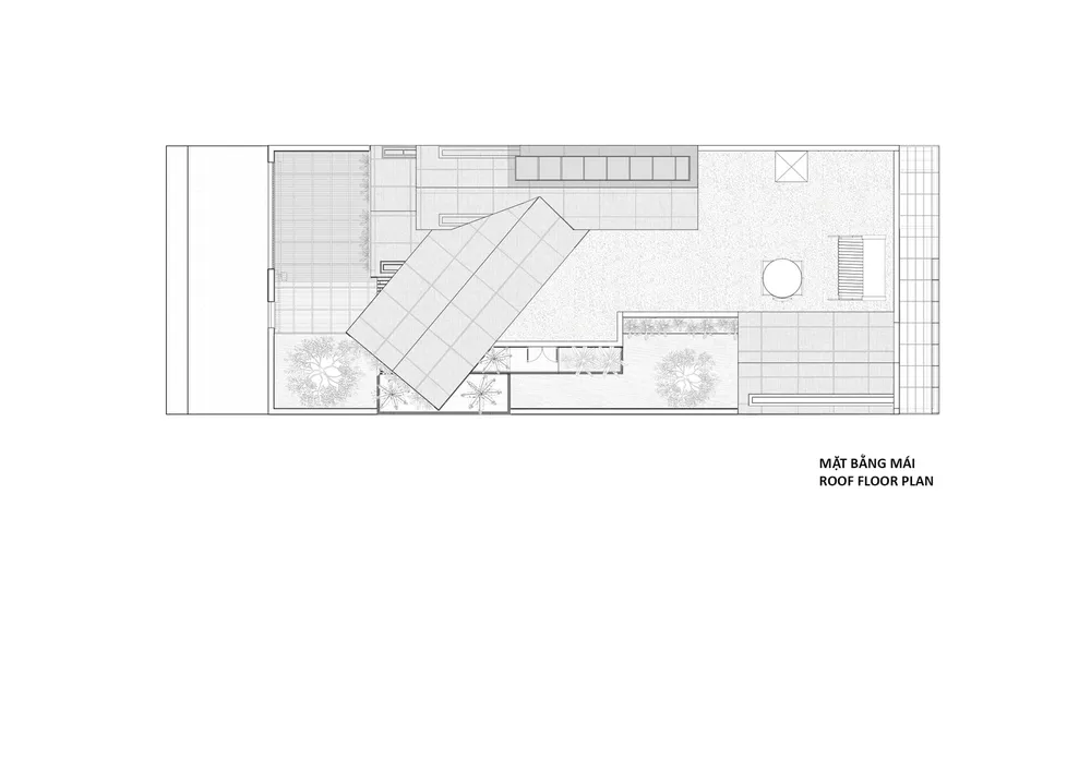
Thiết kế giếng trời giúp các không gian trong ngôi nhà phố ba tầng tràn ngập ánh sáng.
nha-pho-ba-tang-9.jpg
Nội thất làm từ gỗ tạo cảm giác ấm cúng.
nha-pho-ba-tang-10.jpg
Với các không gian nghỉ ngơi khác, giải pháp hệ cửa sổ lớn giúp mở ra các khoảng sân trời kèm mảng xanh tự nhiên.
nha-pho-ba-tang-11.jpg
nha-pho-ba-tang-12.jpg
Phòng ngủ còn được thiết kế “bẫy” ánh sáng từ sân vườn thông tầng.
nha-pho-ba-tang-13.jpg
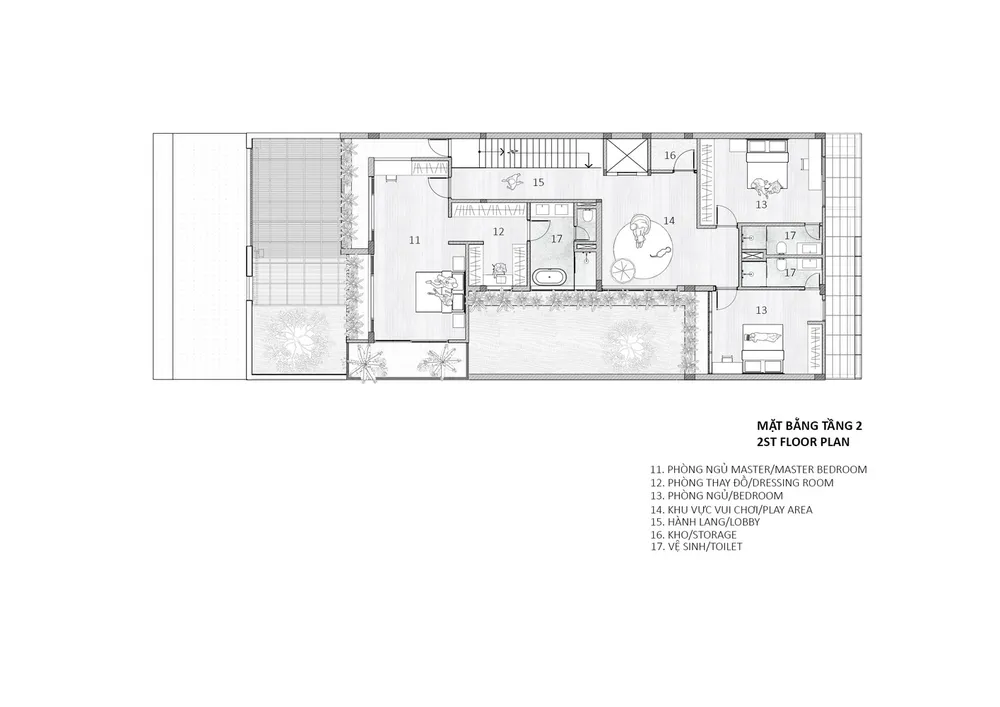
nha-pho-ba-tang-14.jpg
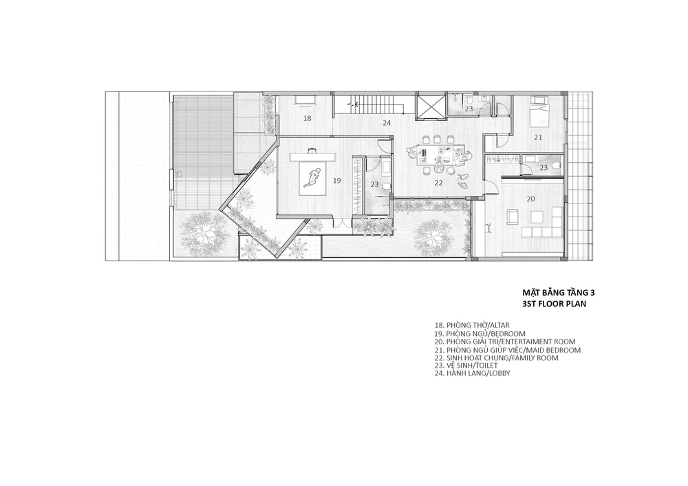
nha-pho-ba-tang-15.jpg
nha-pho-ba-tang-16.jpg
nha-pho-ba-tang-17.jpg

Đừng bỏ lỡ

Video đang xem nhiều

Đọc thêm