Thiết kế nhà phố sang trọng dành cho 7 thành viên

(PLO)- Dù có diện tích nhỏ hẹp nhưng Less house sang trọng, tinh tế và vẫn giữ lại được những yếu tố chức năng cần thiết dành cho bảy thành viên trong gia đình.

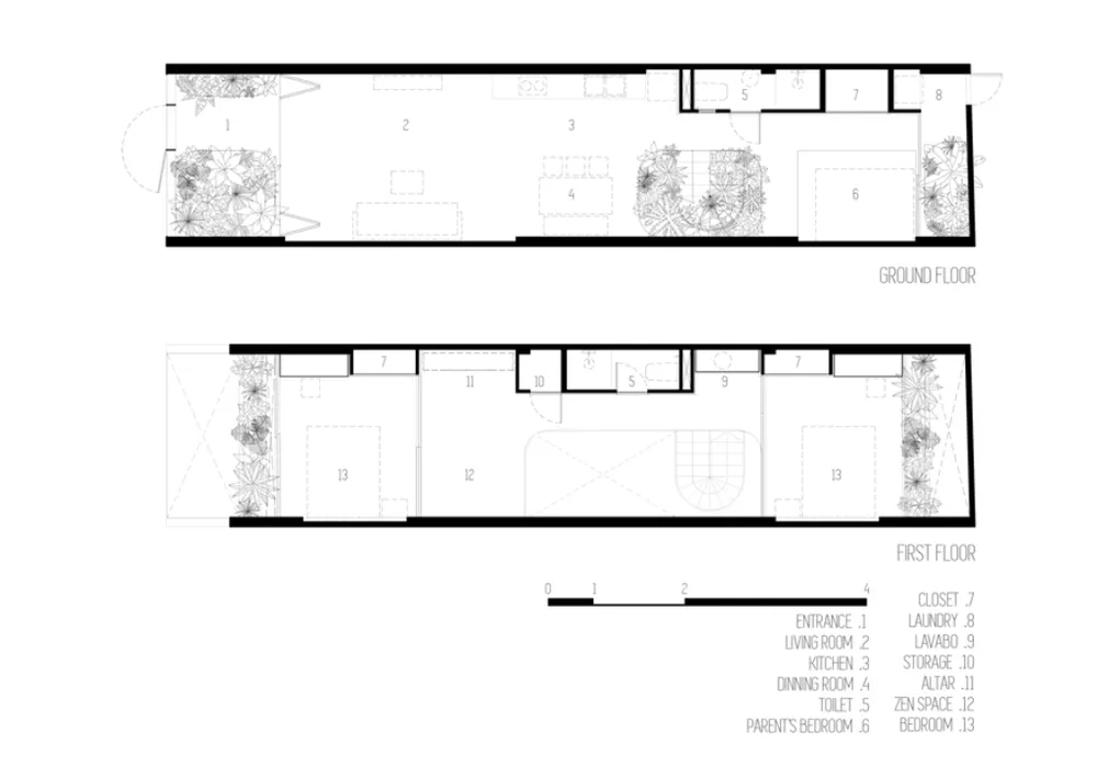
Less house là ngôi nhà nhỏ ở Sài Gòn với diện tích 72 m2, là tổ ấm của bảy thành viên. Gia chủ tìm đến nhóm thiết kế H.a workshop với yêu cầu được đặt ra là thiết kế làm sao cho ngôi nhà rộng nhất có thể.

Less House được thiết kế để xóa nhòa mọi giới hạn vốn có của ngôi nhà có diện tích hẹp. Nhóm thiết kế H.a workshop thiết kế những hệ vách ngăn di động, những khu vườn đan xen thấp thoáng trong nhà.

Ngoài ra, ngôi nhà còn có nhà vệ sinh ẩn mình trong hệ tủ gỗ. Ánh sáng ở mọi ngóc ngách trong nhà, gió thì thoang thoảng thoang thoảng khiến cảm xúc của con người cứ men theo vậy mà tan ra, rộng khắp, xuyên suốt toàn không gian.

nha-pho-bay-thanh-vien-1

Less house tọa lạc ở Sài Gòn là ngôi nhà phố dành cho bảy thành viên với diện tích hẹp chỉ 72 m2.

nha-pho-bay-thanh-vien-2

Từng mảng xanh được kết nối với từng không gian chức năng của ngôi nhà làm sao cho hợp lý và cảm thấy thoải mái nhất cho gia chủ.

nha-pho-bay-thanh-vien-3

Bước vào phòng khách, màu sắc của nền nhà được phối tone sur tone với nội thất như ghế sofa, đèn,...

nha-pho-bay-thanh-vien-4

Lối cầu thang được thiết kế xoắn ốc nối liền với mảng cây xanh phía dưới.

nha-pho-bay-thanh-vien-5

Phòng ngủ cũng được bài trí cây xanh bên cạnh.

nha-pho-bay-thanh-vien-6

Đây là điểm nhấn của ngôi nhà với những ô nhiều màu sắc.

nha-pho-bay-thanh-vien-7

Tầng 1 của ngôi nhà luôn tràn ngập ánh sáng nhờ hệ thông gió phía trên.

nha-pho-bay-thanh-vien-8

Tấm màn ở mặt tiền đã phần nào che chắn lượng nắng hắt trực tiếp vào nhà.

nha-pho-bay-thanh-vien-9

Từ trên nhìn xuống, chúng ta sẽ thấy không gian bếp gắn liền với không gian phòng khách.

nha-pho-bay-thanh-vien-10
nha-pho-bay-thanh-vien-11

Dù ngôi nhà có diện tích hẹp nhưng qua cách thiết kế của nhóm thiết kế H.a Workshop không gian trở nên thông thoáng, rộng rãi.

nha-pho-bay-thanh-vien-12

Về đêm, Less house trở nên ấm áp hơn.

nha-pho-bay-thanh-vien-13

Lối cửa ra vào ngôi nhà có biểu tượng của tôn giáo ngay cánh cửa.

nha-pho-bay-thanh-vien-14
nha-pho-bay-thanh-vien-15
Tránh nóng cho ngôi nhà bằng gạch nung
Tránh nóng cho ngôi nhà bằng gạch nung
(PLO)- Bỏ qua những chất liệu như bê tông, cốt thép hay kính, gạch nung như một tấm áo giáp bảo vệ cho ngôi nhà, khiến giúp ngôi nhà ở Đồng Nai luôn mát mẻ và ấm cúng.

Đừng bỏ lỡ

Video đang xem nhiều

Đọc thêm