Ấn tượng với ngôi nhà có không gian vòm lạ mắt

(PLO)- Để tạo được cảm giác mở cho ngôi nhà trong một khu vực đông đúc dân cư, nhóm thiết kế đã sử dụng cấu trúc dạng vòm.

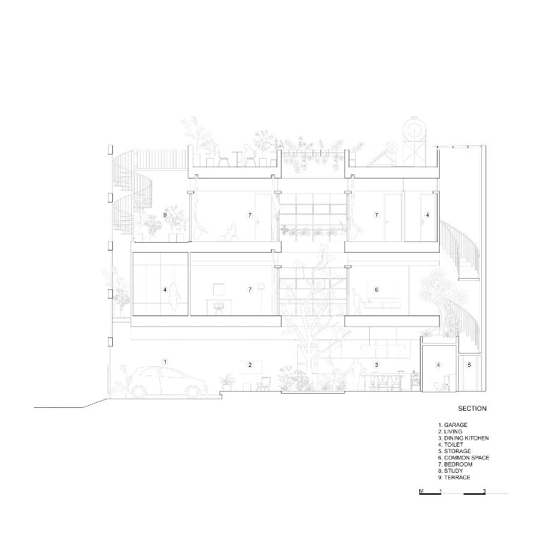
K house có diện tích 204 m², tọa lạc tại một khu dân cư thuộc trung tâm TP Thủ Đức, TP.HCM. Thách thức đặt ra cho nhóm thiết kế rear studio chính là làm thế nào để đảm bảo được sự riêng tư mà vẫn có thể tạo được cảm giác kết nối với bên ngoài.

Qua quá trình chia sẻ với chủ nhà, nhóm thiết kế nắm bắt được nhu cầu của chủ nhà với không gian sống. Chủ nhà mong muốn có một không gian riêng tư hoàn toàn với bên ngoài nhưng vẫn có thể tương tác được với các yếu tố tự nhiên.

ngoi-nha-co-cau-truc-vom-2

Những khoảng hở ở mặt tiền là điểm nhấn của ngôi nhà.

ngoi-nha-co-cau-truc-vom-3

Ngôi nhà được thiết kế ba tầng. Tầng trệt gồm nhà xe, phòng khách, bếp và phòng ăn; Tầng hai và ba gồm các phòng ngủ và sinh hoạt chung.

Đối với dự án này, nhóm thiết kế đề xuất các không gian đặc rỗng xen kẽ nhau. Lõi giếng trời được cấy vào giữa công trình để lấy được ánh sáng, gió tự nhiên và cả mưa.

Nhóm thiết kế cho biết, công trình này được nhấn mạnh bởi cấu trúc vòm. Với cấu trúc này đã tạo ra không gian nguyên thủy nhất có thể nhằm truyền tải bầu không khí tĩnh lặng.

ngoi-nha-co-cau-truc-vom-4

Các không gian chức năng được đan cài với các khoảng trống nhằm kết nối  theo cả chiều ngang và đứng.

ngoi-nha-co-cau-truc-vom-5

Không gian vòm lớn nhất có chức năng vừa là hiên nhà cho gia đình sinh hoạt chung, vừa là lối vào chính.

ngoi-nha-co-cau-truc-vom-6

Đây là nơi dễ dàng đón nhận các yếu tố tự nhiên như nắng, gió, và mưa.

ngoi-nha-co-cau-truc-vom-7

Không gian vòm thứ hai nằm ở tầng một có chức năng là phòng khách và bếp. Khi mở cửa có thể kết nối với không gian vòm lớn. 

ngoi-nha-co-cau-truc-vom-8

Phòng bếp và khu vực bàn ăn được bố trí ở giữa lối cầu thang cuối nhà và khoảng giếng trời.

ngoi-nha-co-cau-truc-vom-9
ngoi-nha-co-cau-truc-vom-10

Bên cạnh các giải pháp về không gian đã đề cập, nhóm thiết kế cũng đã đề xuất vật liệu chính xuyên suốt là bê tông dựa trên tính cách và sở thích của chủ nhà.

ngoi-nha-co-cau-truc-vom-11

Việc sử dụng vật liệu kính bao quanh giếng trời góp phần làm tăng tính kết nối của người sử dụng bên trong đối với các yếu tố tự nhiên và ngược lại.

ngoi-nha-co-cau-truc-vom-12
ngoi-nha-co-cau-truc-vom-13

Đồng thời, nhờ giếng trời các thành viên trong gia đình có thể dễ dàng tương tác với nhau ở các không gian khác nhau.

ngoi-nha-co-cau-truc-vom-14

Hầu như tất cả các không gian trong công trình đều được mở ra thiên nhiên một cách tối đa.

ngoi-nha-co-cau-truc-vom-15

Ở trong nhà nhưng chủ nhà vẫn cảm nhận được nắng, mưa thông qua khu vực giếng trời.

ngoi-nha-co-cau-truc-vom-16

Phòng khách có gam màu trắng chủ đạo được bố trí ở tầng hai.

ngoi-nha-co-cau-truc-vom-17

Không gian riêng tư sáng và thoáng.

ngoi-nha-co-cau-truc-vom-18

Khu vực trồng cây ở tầng trên cùng.

ngoi-nha-co-cau-truc-vom-19
ngoi-nha-co-cau-truc-vom-20
ngoi-nha-co-cau-truc-vom-21
ngoi-nha-co-cau-truc-vom-22

Đừng bỏ lỡ

Video đang xem nhiều

Đọc thêm