Căn gác gỗ giữa khu vườn xanh mướt ở TP Huế

(PLO)- Công trình được thiết kế hướng đến sự kết nối giữa con người với thiên nhiên và giữa con người với con người.
0:00 / 0:00
0:00
  • Nam miền Bắc
  • Nữ miền Nam
  • Nam miền Nam

SAHI W&D là một căn gác gỗ nhỏ có diện tích 75 m² được xây dựng như một không gian nghỉ ngơi cho khách du lịch. Công trình nằm trong một dự án homestay trong một nhà vườn tại TP Huế.

KTS SILAA Architect cho biết, SAHI W&D được thiết kế hướng đến sự kết nối giữa con người với không gian sống xung quanh cũng như sự kết nối giữa con người và con người với nhau.

Để thực hiện ý tưởng về sự kết nối, KTS SILAA Architect đã sắp xếp đan xen các không gian chức năng riêng biệt và cùng lúc tạo ra các khoảng trống giữa các không gian.

Kiểu không gian xen kẽ này làm gia tăng tính tương tác và làm rõ nét tính chất của dự án là một không gian lưu trú kiểu tập thể.

ngoi-nha-trong-khu-vuon-o-TP-Hue-2

Công trình SAHI W&D  là căn gác nhỏ phục vụ khách du lịch khi đến nghỉ ngơi, bao quanh công trình là khu vườn xanh mát.

ngoi-nha-trong-khu-vuon-o-TP-Hue-3

Công trình mộc mạc nhưng nổi bật với mái nhà lợp tranh dày, phảng phất mùi đồng nội trong những đêm gió vườn thổi nhẹ qua gác. 

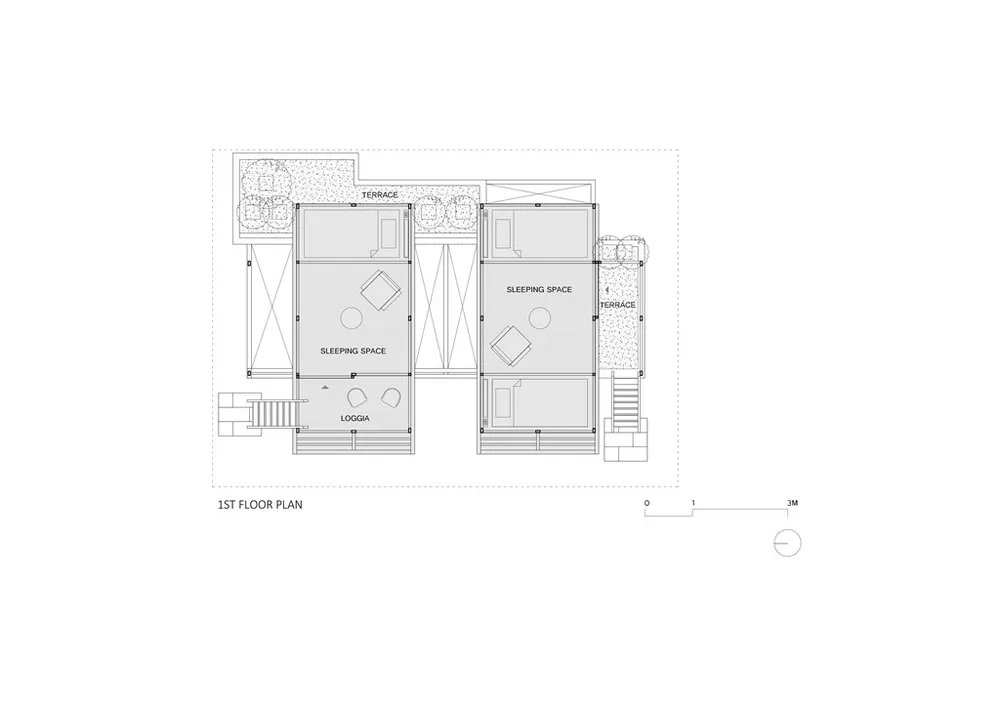
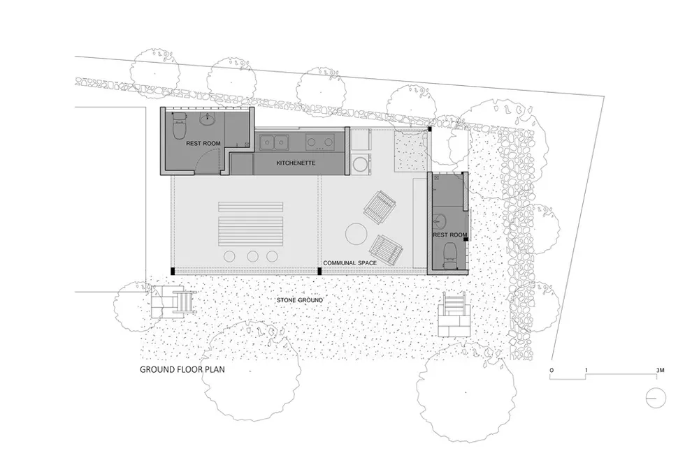
Sự sắp xếp đan xen các không gian riêng biệt bao gồm không gian ngủ, phòng vệ sinh và không gian bếp trên hai tầng gác giúp tạo ra các không gian mở như không gian chung. Các sân thượng và khoảng không gian đều thông tầng.

Thông qua các khoảng không gian mở này có thể cảm thấy sự kết nối với khung cảnh, không khí sân vườn xung quanh. Đồng thời, khách du lịch trải nghiệm sự đa dạng của các thể loại không gian của căn gác, được bao che bởi một mái nhà lớn có cửa sổ trời.

ngoi-nha-trong-khu-vuon-o-TP-Hue-4

Đá tự nhiên được khai thác gần công trình được sử dụng cho các bờ đá, sân trước của dự án.

ngoi-nha-trong-khu-vuon-o-TP-Hue-5

Khu vực sinh hoạt chung bao gồm khu vực bếp, bàn ăn và góc đọc sách...

ngoi-nha-trong-khu-vuon-o-TP-Hue-6

Khối không gian riêng tư được bố trí ở tầng hai.

ngoi-nha-trong-khu-vuon-o-TP-Hue-7
ngoi-nha-trong-khu-vuon-o-TP-Hue-8

Khu vực bếp đón nắng, đón gió trực tiếp từ thiên nhiên.

ngoi-nha-trong-khu-vuon-o-TP-Hue-9

Một góc được xem là phòng khách của công trình.

Các loại vật liệu tái chế, tái tạo, vật liệu địa phương được ưu tiên nghiên cứu và sử dụng. Các vật liệu này nhằm tăng thêm tính kết nối với tự nhiên, đơn giản việc xây dựng, tối ưu chi phí xây lắp, giảm thiểu ảnh hưởng đến môi trường trong quá trình xây dựng.

Hệ khung chính và nội thất của dự án sử dụng gỗ tái chế. Loại vật liệu này có giá thành thấp, độ ổn định cao, dễ thi công do tiết diện đã được định hình sẵn và đặc biệt có chất cảm rất tốt.

ngoi-nha-trong-khu-vuon-o-TP-Hue-10

KTS chủ yếu sử dụng vật liệu tái chế, tái tạo và vật liệu địa phương để tạo nên nét mộc mạc và đúng chất của một homestay.

ngoi-nha-trong-khu-vuon-o-TP-Hue-11

Các không gian có bệ đỡ hoàn toàn bằng gỗ.

ngoi-nha-trong-khu-vuon-o-TP-Hue-12

Hai không gian phòng ngủ được bao che bởi chất liệu polycarbonate..

ngoi-nha-trong-khu-vuon-o-TP-Hue-13
ngoi-nha-trong-khu-vuon-o-TP-Hue-14

 Tính chất trong mờ của loại vật liệu chất liệu polycarbonate giúp xóa nhòa ranh giới giữa không gian trong nhà và khu vườn bao quanh.

ngoi-nha-trong-khu-vuon-o-TP-Hue-15
ngoi-nha-trong-khu-vuon-o-TP-Hue-16

Từ những vật liệu đó mang ánh sáng tự nhiên và sắc màu của thiên nhiên xung quanh vào trong nội thất đồng thời đảm bảo tính riêng tư nhất định cho các không gian riêng biệt đó.

ngoi-nha-trong-khu-vuon-o-TP-Hue-17

Không gian về đêm của căn gác này thật yên bình và ấm áp.

ngoi-nha-trong-khu-vuon-o-TP-Hue-18

Khu vệ sinh được thiết kế có điểm nhấn là những viên gạch ngói lắp trên tường.

ngoi-nha-trong-khu-vuon-o-TP-Hue-19

Một góc vệ sinh khác

ngoi-nha-trong-khu-vuon-o-TP-Hue-20
ngoi-nha-trong-khu-vuon-o-TP-Hue-21
ngoi-nha-trong-khu-vuon-o-TP-Hue-22

Đừng bỏ lỡ

Video đang xem nhiều

Đọc thêm