Ngôi nhà vừa truyền thống vừa hiện đại nổi bật giữa lòng phố cổ

(PLO)- Dự án Maison de Ha nằm trong con ngõ nhỏ tại Nghi Tàm, TP Hà Nội, đây là một ngôi nhà phố đặc trưng tại Việt Nam.
0:00 / 0:00
0:00
  • Nam miền Bắc
  • Nữ miền Bắc
  • Nữ miền Nam
  • Nam miền Nam

KTS SA Studio cho biết, chủ nhà tìm đến KTS với mong muốn xây dựng một ngôi nhà cho bốn thành viên theo kiến trúc nhà vườn, kết hợp nét truyền thống Việt Nam nhưng vẫn hiện đại và tiện nghi.

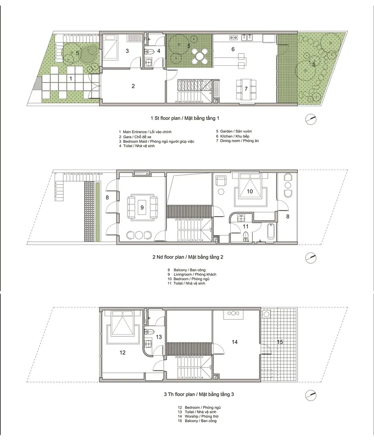
Từ đề bài được đặt ra, đội ngũ SA Studio đã thiết kế ngôi nhà thành hai khối không gian ở, xen kẽ ba khoảng sân vườn trước, giữa và sau.

Với mong muốn tạo không gian mở tiếp cận với thiên nhiên và không giới hạn tầm nhìn, KTS SA Studio đã thiết kế những mảng kính lớn và để tránh bức xạ nhiệt. KTS còn tạo ra những hàng hiên với mái che nắng đưa ra phía trước như một cách chống nắng tương tự mái hiên trong các ngôi nhà cổ.

ngoi-nha-noi-bat-giua-long-pho-co-2

KTS đã lựa chọn phong cách vừa truyền thống vừa hiện đại cho ngôi nhà giữa lòng phố cổ Hà Nội.

ngoi-nha-noi-bat-giua-long-pho-co-3

Từ cổng nhà có thể dễ dàng thấy những chi tiết quen thuộc của ngày xưa như lớp tường gạch mộc, cánh cửa sắt cách điệu họa tiết chữ Thọ. 

ngoi-nha-noi-bat-giua-long-pho-co-4

Tại khoảng sân vườn trước, KTS bố trí cầu thang bên ngoài để tạo thêm lối di chuyển lên các tầng trên.

ngoi-nha-noi-bat-giua-long-pho-co-5

Tầng một là không gian của chỗ để xe, khu bếp, bàn ăn, sân vườn...

ngoi-nha-noi-bat-giua-long-pho-co-6

Khu vực bàn ăn và bếp được thiết kế xen kẽ giữa nét truyền thống và hiện đại.

ngoi-nha-noi-bat-giua-long-pho-co-7

Gian bếp nhỏ, gọn gàng, tối giản

ngoi-nha-noi-bat-giua-long-pho-co-8
ngoi-nha-noi-bat-giua-long-pho-co-9

Một điểm thú vị phải kể đến trong ngôi nhà này chính là khoảng sân vườn ở giữa nhà. 

ngoi-nha-noi-bat-giua-long-pho-co-10

Khoảng sân này vừa đủ rộng để trồng cây, bố trí bàn ăn - góc thưởng trà dưới gốc cây, mang đến cho gia chủ cảm giác về mái nhà thời thơ ấu, yên bình dưới tán cây xanh.

ngoi-nha-noi-bat-giua-long-pho-co-12

Không gian cầu thang bố trí phía sau nhà dẫn lên các tầng trên.

Về vật liệu địa phương, KTS đặc biệt ưu tiên đá lát sàn từ Thanh Hóa, đá rối ốp tường từ Lai Châu, gạch gốm sứ Bát Tràng, ngói đất nung Quảng Ninh… Đó là những vật liệu phù hợp nhất với thời tiết tại Việt Nam và tạo tính thẩm mỹ và bền bỉ với thời gian.

KTS còn khéo léo tìm kiếm, chắt lọc những họa tiết, hình dáng mô phỏng các chi tiết cổ truyền dân gian Việt Nam đưa vào công trình.

Ví dụ như cửa gỗ Bức Bàn là loại cửa gỗ cổ xưa của người Việt; các họa tiết cách điệu từ chữ Thọ trên cửa sắt ban công, cổng chính căn nhà, tranh dân gian Đông Hồ...

Đặc biệt, tại khu vực vườn giữa là bức tranh gốm được vẽ tay và đặt làm thủ công tại làng gốm Bát Tràng như một món quà KTS gửi tặng cho gia chủ.

ngoi-nha-noi-bat-giua-long-pho-co-13

Trong các không gian sinh hoạt, chất xưa và hiện đại được đan xen hoàn hảo. 

ngoi-nha-noi-bat-giua-long-pho-co-14

Đan xen với những căn phòng toàn nội thất gỗ mộc hay hệ cửa gỗ Bức Bàn đúng chất xưa là những không gian mang tinh thần hiện đại, thư giãn đáp ứng nhu cầu cuộc sống.

ngoi-nha-noi-bat-giua-long-pho-co-15

Các họa tiết cách điệu từ chữ Thọ trên cửa sắt ban công, cổng chính căn nhà cũng làm cho ngôi nhà nổi bật hơn.

ngoi-nha-noi-bat-giua-long-pho-co-16

Một góc ban công kết nối với khoảng xanh phía sau nhà.

ngoi-nha-noi-bat-giua-long-pho-co-17

Lối cầu thang và giếng trời bố trí giữa nhà. Nhiều ngôi nhà ống áp dụng sân vườn kiêm giếng trời như một giải pháp lấy sáng, thoáng khí cho tổng thể.

ngoi-nha-noi-bat-giua-long-pho-co-18

 KTS đặc biệt ưu tiên như đá lát sàn từ Thanh Hóa, đá rối ốp tường từ Lai Châu, gạch gốm sứ Bát Tràng, ngói đất nung Quảng Ninh… 

ngoi-nha-noi-bat-giua-long-pho-co-19

Tại những không gian trống, KTS trang trí thêm  tranh dân gian Đông Hồ

ngoi-nha-noi-bat-giua-long-pho-co-20
ngoi-nha-noi-bat-giua-long-pho-co-21

Phòng ngủ có không gian thông thoáng. Để tiết kiệm diện tích phòng ngủ, KTS thiết kế hệ tủ áp tường, tivi treo tường và tối giản việc trang trí nội thất.

ngoi-nha-noi-bat-giua-long-pho-co-22

Một phòng ngủ khác mang phong khách truyền thống hơn với sàn lát bằng gỗ, họa tiết cách điệu từ chữ Thọ trên cửa sắt.

ngoi-nha-noi-bat-giua-long-pho-co-23

Khu vệ sinh, phòng tắm có tông màu xanh.

Đội ngũ SA Studio chia sẻ: “Thiên nhiên và văn hóa bản địa là yếu tố rất quan trọng trong đời sống con người. Chúng tôi luôn mong muốn đem đến cho khách hàng một không gian sống được bao bọc bởi sự tươi mát của cây xanh, cảm nhận sự thay đổi của nắng, gió, mưa và những trải nghiệm thú vị về văn hóa địa phương.”

ngoi-nha-noi-bat-giua-long-pho-co-24
ngoi-nha-noi-bat-giua-long-pho-co-25

Đừng bỏ lỡ

Video đang xem nhiều

Đọc thêm