Lạc bước vào ngôi nhà gỗ đẹp như mơ giữa làng bưởi ở TP Huế

(PLO)- Hachi Lily house là ngôi nhà gỗ kiểu bungalow cho một gia đình ba thế hệ, được xây dựng như một nơi để trở về của gia đình.
0:00 / 0:00
0:00
  • Nam miền Bắc
  • Nữ miền Bắc
  • Nữ miền Nam
  • Nam miền Nam

Nằm trong khu vườn bưởi tĩnh lặng của làng bưởi Thủy Biều, TP Huế, ngôi nhà được thiết kế với cấu trúc đơn giản, sử dụng những vật liệu mang nhiều tính tự nhiên như gỗ, đá, sỏi, đất nung…

Đó là những vật liệu mang lại cho chủ nhà cảm giác mộc mạc, giản dị, riêng tư và yên bình khi cách xa không khí náo nhiệt của TP.

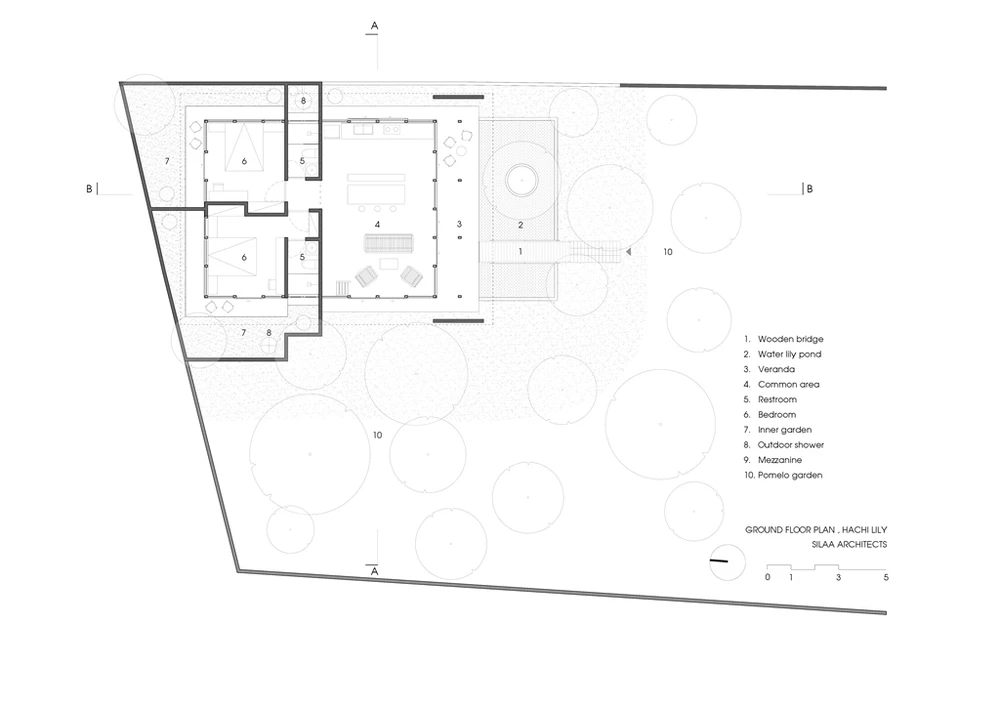
KTS SILAA Architects cho biết, Hachi Lily House có diện tích sàn khoảng 115 m2 được thiết kế có một không gian chung và hai phòng ngủ.

Không gian chung bao gồm khu vực ghế sofa, bàn ăn và một bếp nhỏ kết nối với hàng hiên chạy dọc theo mặt chính của nhà. Nơi có một chiếc cầu gỗ nhỏ bắc ngang qua hồ hoa súng đóng vai trò như lối vào chính.

ngoi-nha-dep-nhu-mo-trong-lang-buoi-2

Công trình là tổ ấm của một gia đình ba thế hệ, đây là một không gian sống nhẹ nhàng, tối giản, gần gũi với thiên nhiên.

ngoi-nha-dep-nhu-mo-trong-lang-buoi-3
ngoi-nha-dep-nhu-mo-trong-lang-buoi-4

Chiếc cầu nhỏ bắc qua hồ trồng hoa súng vừa là điểm nhấn của ngôi nhà vừa là lối đi chính dẫn ra bên ngoài thiên nhiên.

ngoi-nha-dep-nhu-mo-trong-lang-buoi-5

Không khí êm ả của khu vườn xanh mướt cỏ cây cùng không gian sống mở đã giúp kết nối gia đình với thiên nhiên xung quanh cũng như kết nối các thành viên trong gia đình với nhau. 

ngoi-nha-dep-nhu-mo-trong-lang-buoi-6

Ngoài ra, ngôi nhà sẽ là nơi gia đình quản lý công việc kinh doanh sắp tới với một công trình phục vụ lưu trú kiểu homestay đang dần được hình thành trong khu vườn này.

ngoi-nha-dep-nhu-mo-trong-lang-buoi-7

Hàng hiên chạy dọc theo mặt chính của nhà bảo vệ cho không gian bên trong nhà.

ngoi-nha-dep-nhu-mo-trong-lang-buoi-8

Để tăng thêm chất lượng không gian, một gác gỗ nhỏ áp mái được thiết kế làm thư viện nhỏ và kệ kho cho gia đình. Không gian gác gỗ như rực rỡ hơn bởi một cửa sổ trời chạy dài trên đỉnh mái.

Một mái dốc lớn và có diềm mái thấp được sử dụng để che chắn và bảo vệ cho các không gian bên dưới khỏi cái nắng gay gắt vào mùa hè và những cơn mưa lớn kéo dài vào mùa đông. Điều này được thực hiện nhằm thích nghi với khí hậu nhiệt đới và đặc biệt là khu vực miền Trung Việt Nam.

Khung kết cấu chính của ngôi nhà cũng như hệ thống cửa và phần lớn đồ dùng nội thất được làm từ gỗ tái sử dụng từ những cấu trúc gỗ của các công trình cũ.

ngoi-nha-dep-nhu-mo-trong-lang-buoi-9

Không gian phòng khách tiếp cận trực tiếp với thiên nhiên từ mọi phía. Tựa lưng vào chiếc ghế gỗ có đệm cũng như để phân chia phòng khách với khu vực bếp và ăn.

ngoi-nha-dep-nhu-mo-trong-lang-buoi-10

Bàn ghế ăn và bếp bằng gỗ đơn giản, mộc mạc, hài hòa với tổng thể chung của không gian sinh hoạt.

ngoi-nha-dep-nhu-mo-trong-lang-buoi-11
ngoi-nha-dep-nhu-mo-trong-lang-buoi-12

Từ không gian chính, KTS thiết kế thêm một gác gỗ nhỏ áp mái để làm thư viện nhỏ và kệ kho cho gia đình. 

ngoi-nha-dep-nhu-mo-trong-lang-buoi-13

Từ trên căn gác có thể thấy khung  kết cấu chính, hệ thống cửa và phần lớn đồ dùng nội thất gỗ.

ngoi-nha-dep-nhu-mo-trong-lang-buoi-14

KTS bố trí thêm các khu vực tắm ngoài trời, tăng thêm cảm giác thiên nhiên cho người sử dụng.

ngoi-nha-dep-nhu-mo-trong-lang-buoi-15

Một góc làm bếp của người bà.

ngoi-nha-dep-nhu-mo-trong-lang-buoi-16
ngoi-nha-dep-nhu-mo-trong-lang-buoi-17

Một bức tường bằng đá tự nhiên bao quanh các phòng ngủ và restroom tạo ra các khoảng vườn nhỏ cho mỗi không gian.

ngoi-nha-dep-nhu-mo-trong-lang-buoi-18

Không gian riêng cũng tràn đầy ánh sáng và hòa hợp với thiên nhiên bên ngoài.

ngoi-nha-dep-nhu-mo-trong-lang-buoi-19

Nhà vệ sinh thông thoáng, sạch sẽ.

KTS SILAA Architects chia sẻ: "Những chất liệu tự nhiên của ngôi nhà cùng với chất cảm và màu sắc của chúng, tất cả tạo nên một bảng màu mộc mạc, thanh nhẹ, hòa quyện vào khung cảnh thiên nhiên xung quanh".

ngoi-nha-dep-nhu-mo-trong-lang-buoi-20
ngoi-nha-dep-nhu-mo-trong-lang-buoi-21

Đừng bỏ lỡ

Video đang xem nhiều

Đọc thêm