Ngắm biệt thự đẹp đến xiêu lòng ở ngoại ô Sài Gòn

(PLO)- Đó là căn biệt thự mang phong cách vừa truyền thống vừa hiện đại tọa lạc tại huyện Củ Chi, TP.HCM.
biet-thu-dep-o-Cu-Chi-2

Villa T có diện tích 350 m², được thiết kế bởi kiến trúc sư (KTS) Nguyễn Duy cùng các đồng nghiệp của Time Archiects.

Đây là tổ ấm của gia đình ba thế hệ với sáu thành viên. Chủ nhà mong muốn ngôi nhà có không gian mở hướng tới một hình thức hiện đại. 

biet-thu-dep-o-Cu-Chi-3

Từ bên trong nhà, chủ nhà cảm nhận được thiên nhiên bên ngoài lan rộng vào nhà.

biet-thu-dep-o-Cu-Chi-4

KTS thiết kế ba cửa ra vào hòa hợp với thiên nhiên của khoảng sân vườn rộng phía trước.

biet-thu-dep-o-Cu-Chi-5

Cửa ra vào được lắp kính cường lực.

biet-thu-dep-o-Cu-Chi-6

Tầng một là không gian của khu bếp có hình ê líp - đây cũng là thiết kế độc đáo của KTS.

biet-thu-dep-o-Cu-Chi-7

Các không gian chung như phòng khách, khu vực ăn uống, phòng ngủ... bao quanh khu vực bếp này.

biet-thu-dep-o-Cu-Chi-8

Không gian chung ấm áp, dễ tiếp cận cũng là tiêu chí mà chủ nhà đưa ra cho các KTS.

biet-thu-dep-o-Cu-Chi-10

KTS thiết kế nhiều khoảng tường bằng gạch thông gió đem lại giá trị thẩm mỹ cho căn biệt thự này.

biet-thu-dep-o-Cu-Chi-11
biet-thu-dep-o-Cu-Chi-12

Gạch thông gió còn đem lại cảm giác dễ chịu và thú vị khi ánh nắng xuyên qua bức tường đem lại hiệu ứng bóng đổ.

biet-thu-dep-o-Cu-Chi-13

Không gian riêng còn được lấy sáng bởi các giếng trời nhỏ.

biet-thu-dep-o-Cu-Chi-14
biet-thu-dep-o-Cu-Chi-15

Sàn, cửa, nội thất bằng gỗ là những chất liệu gần gũi mà KTS đã sử dụng.

biet-thu-dep-o-Cu-Chi-16
biet-thu-dep-o-Cu-Chi-17

Khoảng sân thượng nhỏ là nơi các thành viên có thể ngắm bình minh và hoàng hôn trong ngày.

biet-thu-dep-o-Cu-Chi-18

Bản vẽ mặt cắt của ngôi nhà.

biet-thu-dep-o-Cu-Chi-19
biet-thu-dep-o-Cu-Chi-20

Bản vẽ mặt bằng tầng trệt

biet-thu-dep-o-Cu-Chi-21

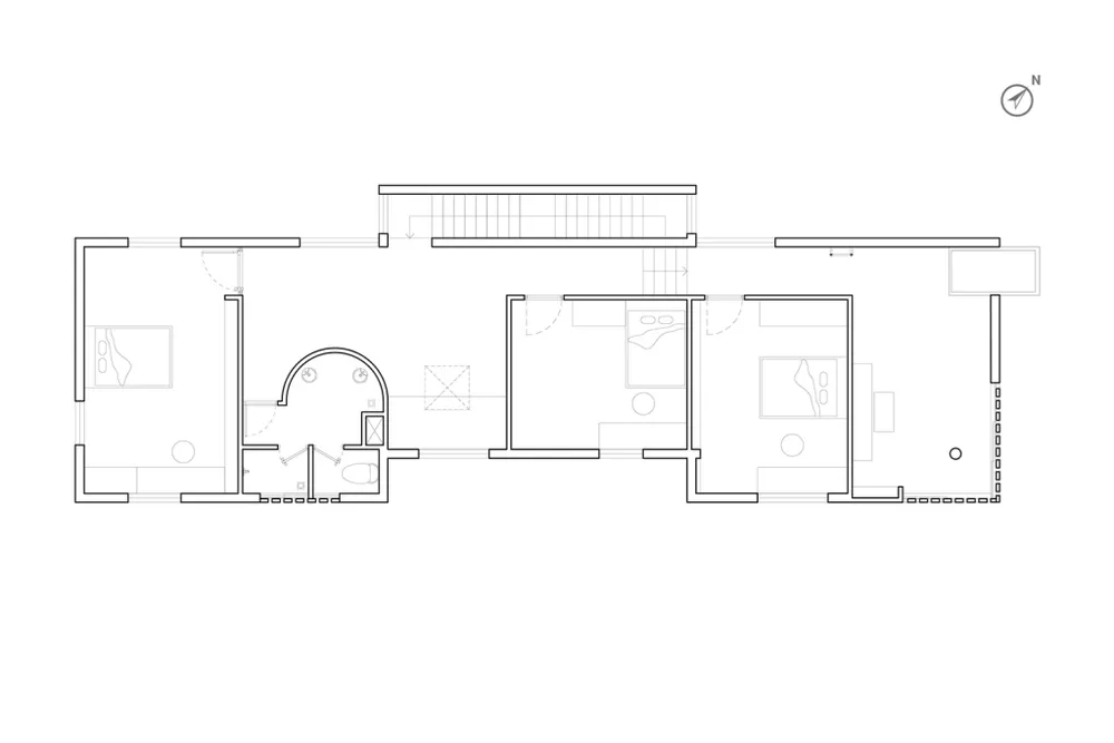
Bản vẽ mặt bằng tầng hai.

Đừng bỏ lỡ

Video đang xem nhiều

Đọc thêm