Ngôi nhà 30 m² ở Hà Nội mát mẻ nhờ tấm da lưới

(PLO)- Tấm da lưới ở mặt tiền hướng Tây của Maison Q giúp cản bớt ánh nắng trực tiếp vào nhà.

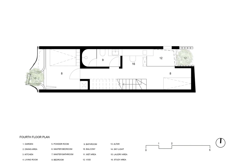
Maison Q là tổ ấm của một gia đình bốn người trên mảnh đất chỉ 30 m² nằm khuất trong một con ngõ nhỏ ở quận Hoàng Mai, TP Hà Nội.

Kiến trúc sư Nghia-Architect đã chọn một giải pháp không chỉ đáp ứng nhu cầu cơ bản của gia chủ mà còn nâng cao trải nghiệm sống bằng cách đưa thiên nhiên và ánh sáng tự nhiên vào công trình.

mau-nha-dep-1

Những kiểu nhà này thường khó nhận thấy trong các con hểm. Đồng thời, các ngôi nhà thường dài và hẹp nằm cạnh nhau nên không gian sống bị hạn chế

mau-nha-dep-2

Kiến trúc sư Nghia-Architects đã thiết kế các không gian khác nhau liên tục mở và đóng theo cả chiều dọc và chiều ngang trong toàn bộ tòa nhà.

mau-nha-dep-23

Mặt tiền nhà là điểm khác biệt với các công trình lân cận.

Các kiến trúc sư đã quyết định thiết kế mặt tiền vát chéo để tạo giếng trời, đồng thời nới rộng không gian cho phần hiên mang lại nhiều ánh sáng cho sân trước.

Ngôi nhà này tuy có diện tích nhỏ nhưng có thể đáp ứng mọi nhu cầu của chủ nhân và còn nâng cao điều kiện sống của họ.

mau-nha-dep-3

Mặt tiền vát chéo giúp nới rộng phần hiên tạo không gian cho khoảng sân trước.

Với một cách tiếp cận kiến trúc mới và táo bạo, mặt tiền được thiết kế trông giống như một tác phẩm điêu khắc đương đại bằng cách kết hợp bê tông, thép 

Do ngôi nhà này quay mặt về hướng Tây nên kiến trúc đã sử dụng tấm da lưới được tạo hình nghiêng ra ngoài về phía ngõ, giúp cản bớt ánh nắng trực tiếp mà còn tạo ra một lớp đảm bảo sự riêng tư cho nơi ở.

mau-nha-dep-4

Tấm da lưới như lớp màng bọc bảo vệ ngôi nhà.

mau-nha-dep-5

Tấm da lưới cản lượng nhiệt lớn vào nhà khiến tổ ấm Maison Q mát mẻ hơn.

mau-nha-dep-6
mau-nha-dep-7

Dù công trình chỉ có diện tích 30 m² nhưng qua bàn tay thiết kế, không gian bếp trở nên rộng hơn và đủ sáng.

mau-nha-dep-8
mau-nha-dep-9

Không gian riêng tư được kết nối với nhau bằng các khoảng nghỉ giữa các tầng.

mau-nha-dep-10

Cấu trúc của nhà tạo ra những khu vườn nhỏ xanh tươi bên trong tràn ngập ánh sáng mặt trời. 

mau-nha-dep-11
mau-nha-dep-12
mau-nha-dep-13

Những góc vệ sinh nhỏ gọn điểm tô thêm cây xanh cũng là điểm nhấn của ngôi nhà.

mau-nha-dep-14

Dù có diện tích nhỏ nhưng ngôi nhà này vẫn tràn ngập ánh sáng tự nhiên, gió trời và những khoảng xanh nội khu.

mau-nha-dep-15
mau-nha-dep-16
mau-nha-dep-17
mau-nha-dep-18
mau-nha-dep-19
mau-nha-dep-20
mau-nha-dep-21
mau-nha-dep-22

Đừng bỏ lỡ

Video đang xem nhiều

Đọc thêm