Ngôi nhà lệch tầng của gia đình 6 người ở Sơn La

(PLO)- Chủ nhà gộp hai lô đất thành một để có ngôi nhà lệch tầng rộng rãi cho gia đình nhiều thế hệ sinh sống.

Ngôi nhà nằm tại trung tâm tỉnh Sơn La, gần quảng trường tây bắc. Với đặc điểm khu đất là phân lô nên chủ nhà phải ghép hai lô đất có diện tích 5 m x14,8 m (tổng diện tích đất 148 ) để đáp ứng gia đình công năng sử dụng cho gia đình nhiều thế hệ, bao gồm bốn đứa con, hai vợ chồng cùng với bố mẹ.

Chủ nhà là một người yêu thiên nhiên cây cỏ, vì vậy bài toán đặt ra đơn giản chỉ cần nhà có cây xanh, ánh sáng và nhiều chỗ chơi cho bốn đứa con nhỏ.

Với những mong muốn trên, KTS Trần Mạnh Trung đã thiết kế ngôi nhà dành phần lớn cho không gian công cộng, giếng trời và đan xen với nhiều bồn trồng cây xanh. 

ngoi-nha-lech-tang-2

Chi phí hoàn thiện công trình T-SL khoảng 6 tỉ đồng.

ngoi-nha-lech-tang-3

Diện mạo ngôi nhà khác biệt so với các công trình lân cận.

ngoi-nha-lech-tang-4

Mặt tiền nhà có tông màu trăng nhưng không hề nhàm chán bởi những bồn cây được trồng nhiều cây xanh mô phỏng đôi bàn tay đang nâng niu từng mảng xanh mỏng manh.

ngoi-nha-lech-tang-5

Hành lang giữa các gian phòng và khối cây xanh ở mặt tiền tạo nên bước chuyển thú vị khi mở gian cửa ra.

Ngôi nhà thiết kế lệch tầng để tạo nên độ chênh cao, điều này cho phép nhiều luồng gió mát được lưu thông đến mọi nơi trong nhà.

Mặt ngoài ngôi nhà là toàn bộ bồn cây được mô phỏng đôi bàn tay đang nâng niu từng mảng xanh mỏng manh nhưng đem lại rất nhiều giá trị cho sự sống.

Toàn bộ giếng trời được đưa về cuối nhà, nơi thường nhận được ít ánh sáng nhất. Các mảng cây xanh và giếng trời đan xen vào nhau, vây quanh các phòng ngủ và nơi sinh hoạt chung, tạo thành những bức tranh của màu xanh và ánh sáng thay đổi liên tục theo từng giờ trong một ngày.

ngoi-nha-lech-tang-6

KTS thiết kế lệch tầng với các độ cao chênh lệch, giúp mọi không gian trong nhà đều đón được ánh sáng tự nhiên.

ngoi-nha-lech-tang-17

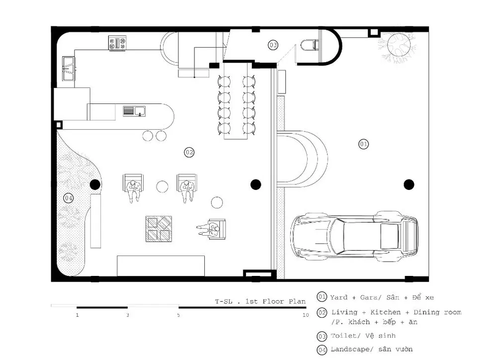
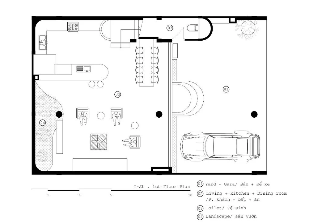
Sơ đồ tầng một.

ngoi-nha-lech-tang-7

Tầng một là không gian của phòng khách, khu vực ăn và bếp và khoảng sân vườn trước nhà.

ngoi-nha-lech-tang-16

Phòng khách rộng rãi, điểm nhấn là hệ trần bằng gồ uốn lượn đẹp mắt.

ngoi-nha-lech-tang-22

Những đường cong trong nhà nhằm xóa đi các vách tường thô cứng.

ngoi-nha-lech-tang-8

Khu bếp thông thoáng, tiện nghi.

Mỗi phòng ngủ trên các tầng đều nhận được đủ lượng ánh sáng và gió giúp lưu thông đem lại cảm giác trong lành thanh mát.

Các tầng đều có nơi sinh hoạt chung cho các thành viên trong gia đình tạo nên sự kết nối giữa các thành viên, sự gắn kết cần có mà ngày nay nhiều ngôi nhà không thể có được.

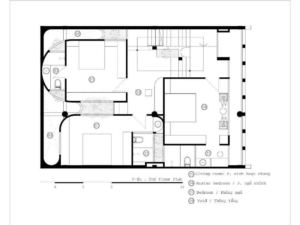
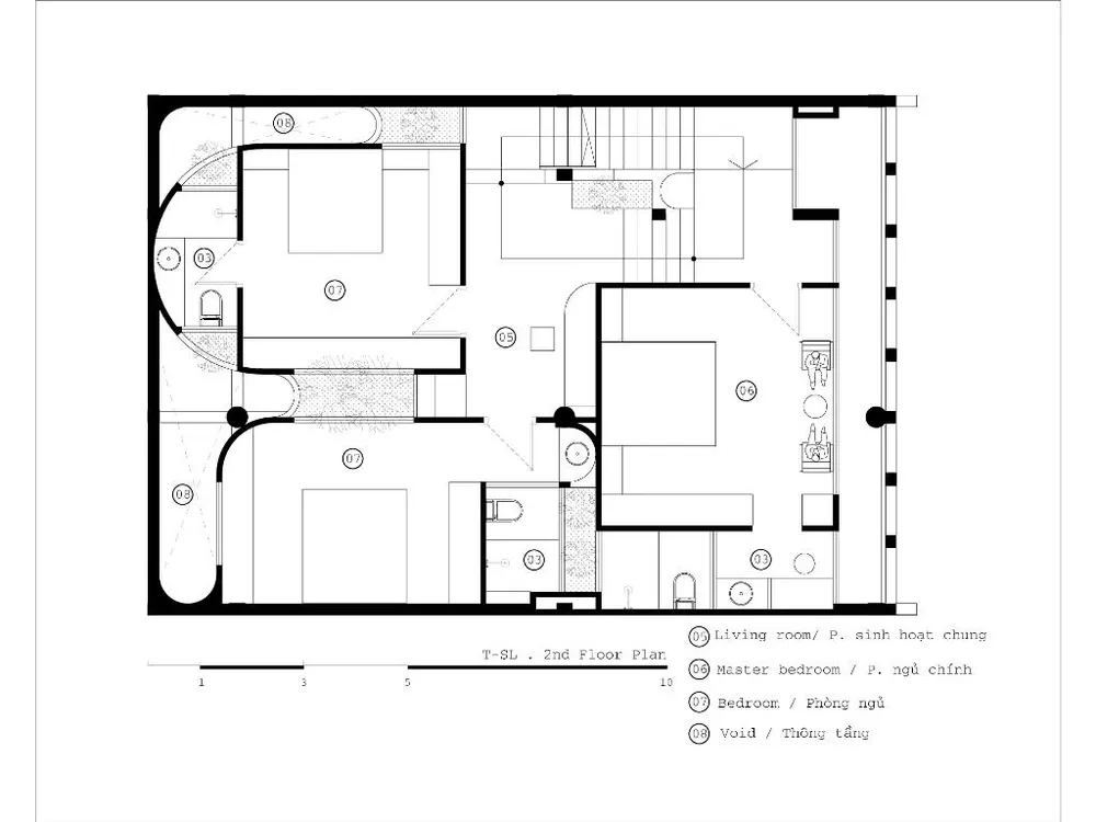
ngoi-nha-lech-tang-17

Sơ đồ tầng hai

ngoi-nha-lech-tang-9

Giữa các tầng trong nhà đều có khoảng không gian sinh hoạt chung cho cả gia đình nhất là những đứa trẻ.

ngoi-nha-lech-tang-10

Tuy là không gian chung nhưng vẫn đủ ánh sáng và gió để các vui chơi thoải mái.

KTS thiết kế bậc thang phù hợp để khi vui chơi các con có thể leo trèo.

ngoi-nha-lech-tang-11
ngoi-nha-lech-tang-12

Một góc nhỏ trong nhà, KTS thiết kế thành kệ sách, kệ đồ chơi cho các bé nhỏ.

ngoi-nha-lech-tang-13

Phòng ngủ toàn màu hồng của các con trong gia đình.

Trên mái tầng ba dành gần một nửa làm vườn rau, nửa còn lại là nơi thưởng trà và trò chuyện vào những đêm trăng rằm.

Ngôi nhà là tình yêu của người con giành cho bố mẹ anh ấy và những đứa con đang lớn dần lên trong tình yêu thương của gia đình, cây cỏ và những ngọn gió mát lành .

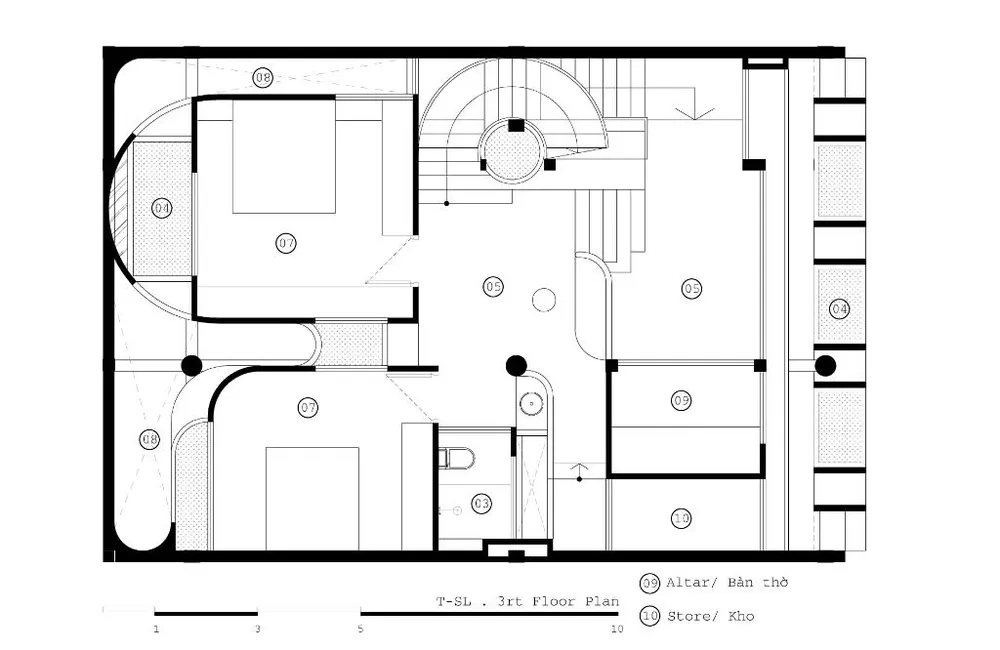
Sơ đồ tầng ba gồm khu vực thờ và kho.

ngoi-nha-lech-tang-14

Bàn thờ trang nghiêm được bố trí ở tầng ba.

Đừng bỏ lỡ

Video đang xem nhiều

Đọc thêm