Ngôi nhà lợp mái tôn vẫn mát rười rượi ở TP.HCM

(PLO)- Nhờ hệ mái tôn hai lớp và giếng trời, ngôi nhà luôn xanh mát dù xây dựng trên khu đất khá hẹp ở TP.HCM.

Nhà hai mái tôn được thiết kế trên khu đất có chiều rộng 4 m và chiều sâu 17 m. Chủ nhà muốn chừa ra phần sân khoảng 5 m để buôn bán có quầy pha chế nhỏ và phần khu sinh hoạt của gia đình đẩy thụt lùi về phía sau.

Nhà chỉ có ba thành viên nên nhu cầu xây cất cũng không quá nhiều. Chủ nhà ưu tiên không gian thông thoáng, tự nhiên và không dùng máy lạnh.

KTS của Khuôn studio cho biết, đây là một cơ hội quý báu để suy nghĩ về một hệ mái thông gió, cách nhiệt tốt lại nhẹ nhàng như hệ mái tôn hai lớp.

mau-nha-dep-2

Nhà hai mái tôn tọa lạc ở quận 9, TP.HCM, có diện tích 68 m2.

mau-nha-dep-3

Ngôi nhà có hệ mái hai lớp đã hoạt động rất hiệu quả, giúp giảm cái nóng oi bức vào mùa hè.

Cấu trúc ngôi nhà khá đơn giản, vuông vắn với giếng trời giữa nhà và úp lên toàn khối là hệ mái tôn hai lớp.

Cấu tạo hệ mái hai lớp bao gồm hai lớp mái tôn chồng lên nhau để trống ở giữa. Khe trống này cho gió thổi vào làm nhiệm vụ thổi đi khối khí nóng từ mặt trời chiếu lên lớp mái trên cùng.

mau-nha-dep-4

Mặt tiền công trình với những ô ban công lệch tầng mở ra và nhìn xuống phần sân vườn phía trước nhà.

Phần phòng khách ở tầng trệt có cửa mở rộng tối đa, đóng vai trò như phần cơi nới cho khu buôn bán ở sân trước khi cần thiết.

Cuối cùng ngôi nhà có một phòng ngủ cho người bà khi bà ghé thăm gia đình.

mau-nha-dep-5

Phòng khách, phòng bếp...được của gia đình đẩy thụt lùi về phía sau phục vụ cho việc kinh doanh ở khoảng sân trước.

mau-nha-dep-6

Trồng cây ngay giếng trời cũng là một giải pháp điều hòa không khí trong ngôi nhà.

mau-nha-dep-7

Giếng trời giữa nhà.

mau-nha-dep-8

Tôn, cầu thang và tường nhà đều mang màu sắc tươi trẻ.

mau-nha-dep-9

Từ giếng trời nhìn xuống là không gian đọc sách lý tưởng cho thành viên trong gia đình.

mau-nha-dep-10

Lầu một là không gian riêng tư.

Giếng trời như một lõi xanh tạo cảm giác thư thái khi nghỉ ngơi trên lầu.

Lầu một có phòng ngủ bố mẹ, nơi được bố trí một ô cửa sổ lớn để ngồi đọc sách thư giãn nhìn ra giếng trời. Từ ô cửa sổ này có thể quan sát được khu sinh hoạt hoặc tập của cậu con trai nhỏ .

mau-nha-dep-11

Lầu một có phòng ngủ bố mẹ, nơi được bố trí một ô cửa sổ lớn để ngồi đọc sách.

Cấu trúc phòng sinh hoạt học tập và ngủ của con trai được bố trí lệch tầng, tạo cảm giác thú vị cho người sử dụng. Đây cũng là không gian điểm nhấn với những ô ban công lệch tầng mở ra mặt tiền và nhìn xuống phần sân vườn phía trước nhà.

Những ngày hè oi bức ở TP.HCM, hệ mái hai lớp đã hoạt động rất hiệu quả, đem lại một trải nghiệm sống thoải mái cho gia đình.

Một công trình không quá cầu kỳ về hình thức nhưng KTS rất tâm đắc vì những yếu tố xử lý liên quan tới vi khí hậu mà nó đã đạt được.

mau-nha-dep-12

Gia đình với ba thành viên nên công năng sử dụng cũng đơn giản, không quá cầu kỳ.

mau-nha-dep-13

Phòng ngủ của người con.

mau-nha-dep-14

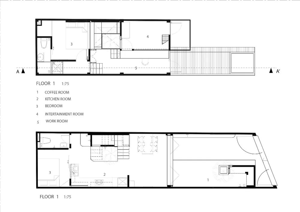
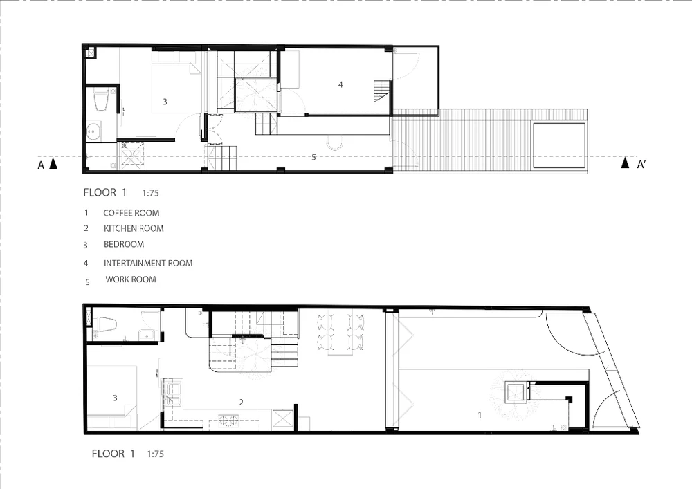
Sơ đồ lầu một.

Đừng bỏ lỡ

Video đang xem nhiều

Đọc thêm