Thiết kế nhà đẹp trên khu đất chữ L

(PLO)- Ngoài sử dụng giải pháp lệch tầng, KTS còn khai thác ánh sáng, thông gió tự nhiên theo phương đứng để hóa giải những khó khăn khi xây nhà trên khu đất chữ L.

LVS.house là công trình có sự khác biệt so với các nhà ống khác. Ngôi nhà có bề ngang hẹp nhưng lại có một khoảng diện tích rộng ở phía sau, trông giống như chữ L.

Điều này đã mở ra hướng phát triển không gian thú vị cho công trình. Chủ đầu tư mong muốn toàn bộ không gian sinh hoạt chung hay cá nhân điều mở tối đa và tạo được sự kết nối tốt nhất. Ngoài ra, ba mẹ cũng có thể quan sát các hoạt động của hai con ở độ tuổi còn nhỏ.

giai-phap-khu-dat-chu-L-2

 LVS.house được xây dựng trên khu đất hình chữ L ở quận Tân Bình, TP.HCM.

giai-phap-khu-dat-chu-L-3
giai-phap-khu-dat-chu-L-4

Bên ngoài công trình nổi bật với ba đường cong màu trắng che chắn công trình bằng sắt.

giai-phap-khu-dat-chu-L-5

KTS AD9 Architects còn bố trí dàn cây leo ở tầng một rũ xuống ở mặt tiền nhà.

giai-phap-khu-dat-chu-L-6

Ngoài giải pháp lệch tầng, KTS AD9 Architects khai thác ánh sáng, thông gió tự nhiên theo phương đứng.

Các khoảng không gian chuyển tiếp hay giếng trời tạo nên các lớp kết nối con người và thiên nhiên.

Với công trình này KTS gần như tối giản trong việc sử dụng vật liệu, mong muốn tìm thấy những thẩm mỹ chân phương của kiến trúc và tạo ra một đời sống mới tích cực, tốt đẹp hơn cho gia đình chủ nhà.

giai-phap-khu-dat-chu-L-7

Không gian ở tầng trệt là không gian của phòng khách, phòng bếp và phòng ăn và khu vực thang lên các tầng trên.

giai-phap-khu-dat-chu-L-8

Phòng ăn, phòng bếp bố trí vào phần góc nhỏ của chữ L.

giai-phap-khu-dat-chu-L-9

 Phòng bếp và phòng ăn được ngăn chia với phòng khách bằng vách ngăn nhằm ngăn mùi lan tỏa ra phòng khách mỗi khi nấu nướng.

giai-phap-khu-dat-chu-L-10

Lối cầu thang dẫn lên các tầng trên ở phía sau nhà.

giai-phap-khu-dat-chu-L-11

Tầng trệt và các tầng khác cũng liên thông với nhau bởi giếng trời do KTS khai thác ánh sáng và gió theo phương thẳng đứng.

giai-phap-khu-dat-chu-L-12
giai-phap-khu-dat-chu-L-13
giai-phap-khu-dat-chu-L-14

Một góc không gian để thành viên trong gia đình vui chơi.

giai-phap-khu-dat-chu-L-15

Phòng ngủ thiết kế gắn liền với giếng trời hòa nhập với cây xanh xung quanh giếng trời.

giai-phap-khu-dat-chu-L-16

Phòng ngủ tràn ngập ánh sáng và gió, cách với giếng trời bởi lớp kính trong suốt.

giai-phap-khu-dat-chu-L-17

Cầu thang dẫn lên tầng tum (tầng trên cùng của ngôi nhà).

giai-phap-khu-dat-chu-L-18

Tầng tùm KTS thiết kế mái che có nhiều lỗ, từ đó ánh nắng có thể xuyên qua mái che cung cấp nắng cho cây xanh bên dưới.

giai-phap-khu-dat-chu-L-19

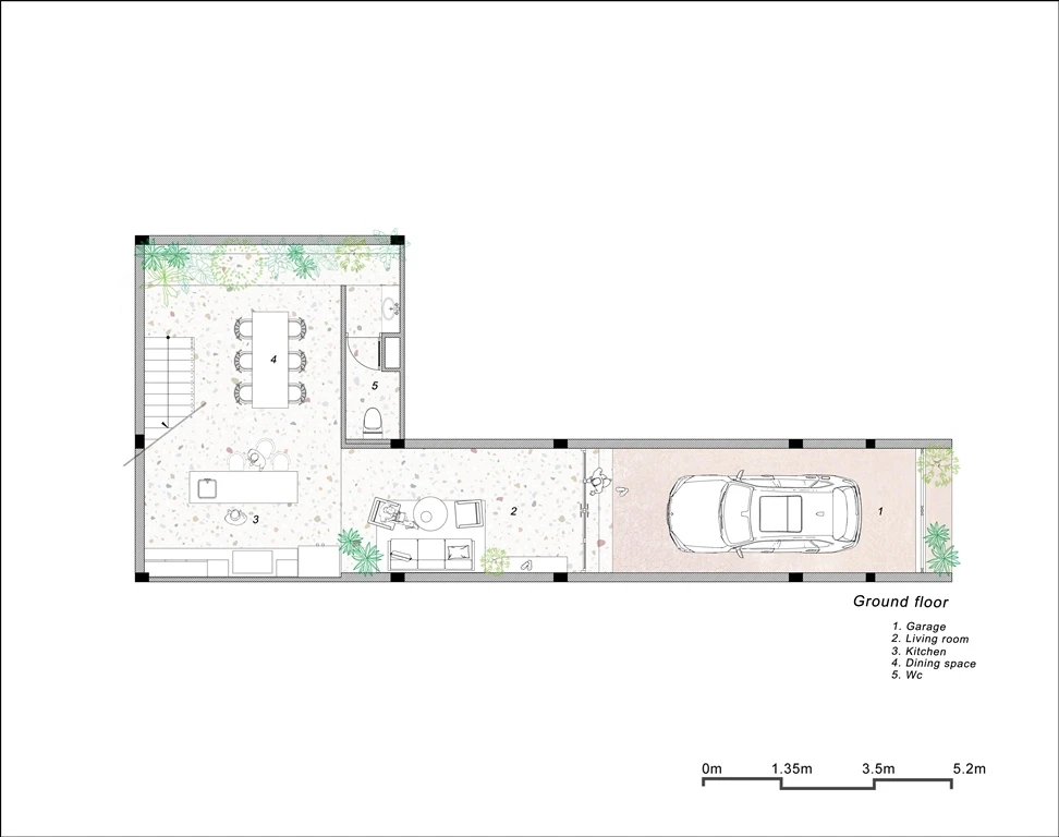
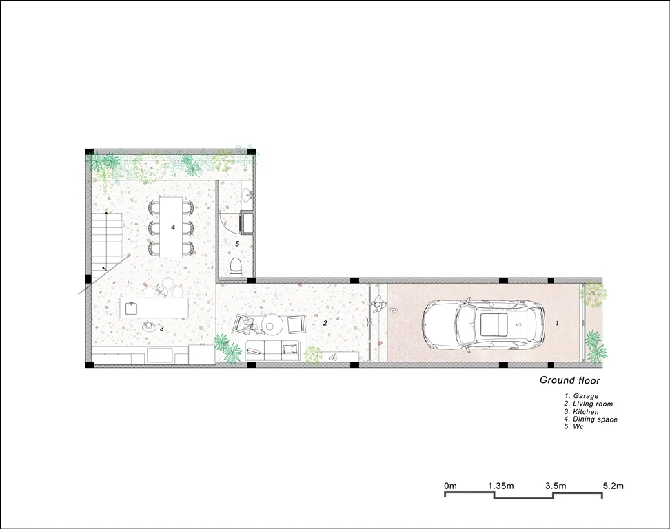
Mặt bằng tầng trệt

giai-phap-khu-dat-chu-L-20

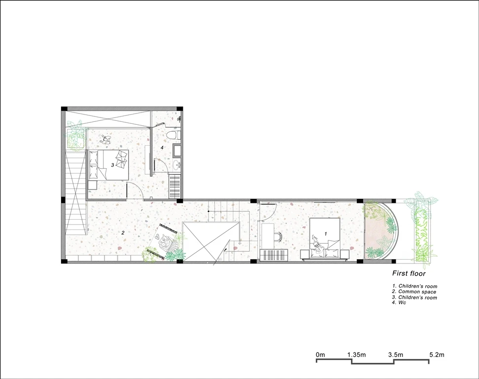
Mặt bằng tầng một

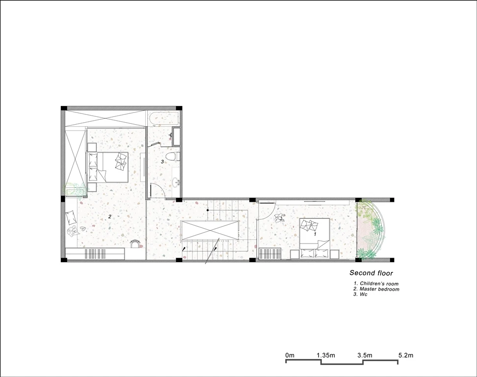
giai-phap-khu-dat-chu-L-21

Mặt bằng tầng hai

Đừng bỏ lỡ

Video đang xem nhiều

Đọc thêm