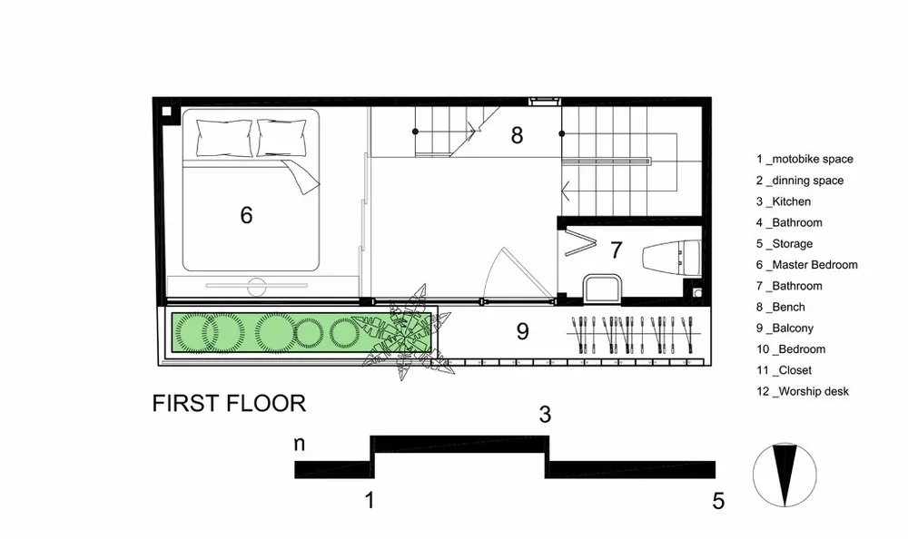
Ngôi nhà là tổ ấm của gia đình trẻ gồm ba thành viên. Tầng trên và một gác lửng gồm hai phòng ngủ cho bố mẹ và người con.
Công trình được thiết bởi KTS Khuôn Studio với ý tưởng thiết kế hướng đến các phòng ngủ có không gian mở có ánh sáng và thông gió tốt. Đồng thời, KTS cũng rất chú trọng về việc mở rộng không gian trong nhà.
Theo đó, không gian riêng tư được bao bọc bởi cửa tre trượt linh hoạt. Khu vực phòng ngủ, sàn nâng được sử dụng để chừa không gian bên dưới làm kho và toàn bộ diện tích trống bên trên.
Tất cả những điều này là yếu tố then chốt giúp không gian ấm cúng dường như rộng hơn và nhẹ nhàng hơn.
Bên ngoài ngôi nhà được bao bọc bởi bức tường bê tông hoa văn.

Chủ nhà thích ánh sáng tự nhiên và thực vật nên KTS thiết kế một nửa ban công là bồn cây, thêm chút màu xanh cho tầm nhìn từ phòng ngủ chính.
Dù nằm trong con hẻm khá khiêm tốn nhưng qua bàn tay của KTS công trình có thể lấy sáng và gió theo chiều dọc của khu đất.
Khu vực bếp kết hợp với chiếc bàn ăn ngồi bệt vừa là khu vực ăn, vừa là phòng khách của gia đình trẻ.
Các khách hàng trẻ, những người có lối sống hiện đại cho phép KTS loại bỏ lan can cầu thang giống như hàng rào và các chi tiết phức tạp khác để xóa bỏ mọi giới hạn về không gian.
KTS tận dụng không gian bên dưới cầu thang làm nhà kho.
Ánh sáng kết hợp tốt với hộp tưới cây tự động trên mái cùng mang lại ánh sáng và đổ bóng xuống tầng trên, tạo cảm giác thú vị cho gia chủ khi ở phòng ngủ.